您现在的位置: 首页 >> 答疑变更 >> 安徽公共资源交易集团项目管理有限公司 >> 工程
一、原公告主要信息
原项目名称: 中国(合肥)国际智能语音产业园一期孵化园B区5号、6号、7号楼施工
原项目编号: 2020BFFGZ00684
原公告日期: 2020年05月12日
二、公告内容(更正事项、内容及日期等)
中国(合肥)国际智能语音产业园一期孵化园B区5号、6号、7号楼施工招标工程量清单、最高投标限价编制补疑
项目编号:2020BFFGZ00684
各投标人:
重要提示
1、人工费执行《关于贯彻执行2018版安徽省建设工程计价依据的通知》(合造价【2018】13号文)。其中定额人工费参与取费、取税,其相对于定额人工费增加的部分 0 元只计取税金。
2、本工程取费按“建筑工程取费标准”中“ 工业建筑 ”的费率计取;其中房屋建筑、市政工程中挖或填土石方量大于5000m3的大型土石方工程,其企业管理费率8%、利润率8%,措施项目费率和不可竞争费率按房屋建筑工程或市政工程相应费率乘0.6系数。
按业主要求,现对本项目招标工程量清单、最高投标限价编制作出如下补充:
第一部分:招标需求
一、招标范围:
本项目共分为一个标段,项目位于合肥市高新区复兴路与石莲路交口中国声谷创业园内,总建筑面积约为72125.43m2,结构形式为框架结构。主要建设内容为5#、6#、7#楼、人防地下室、7#楼地下室、室外连廊及其相关配套。本次招标内容包含土方工程、基坑支护工程、土建工程、幕墙工程、公区精装修工程、安装工程等设计图纸及答疑范围内的全部内容。
单位工程如下:
1、土石方工程:主要内容包含红线范围内的平衡土方、土建基坑土方、基坑降水等设计范围内的全部施工内容。
2、基坑支护工程:主要内容包括钻孔灌注桩、钢管土钉支护、钢格构脚撑、冠梁等设计范围内的全部施工内容。
3、土建工程:主要内容包括主体钢筋砼结构、墙体、保温、室外台阶、防水、门窗、非公共区域装饰等设计范围内的全部施工内容。
4、幕墙工程:主要内容包括5#、6#、7#楼外墙玻璃幕墙、铝板幕墙以及依附在幕墙上的门窗和室外连廊的铝板幕墙及5#、6#、7#楼汽车坡道的钢化玻璃雨棚等设计范围内的全部施工内容。
5、公区精装修工程:主要内容包括首层大厅楼地面铺装、电梯厅地面铺装、走道地砖铺装、楼梯间地面石材铺装、公共卫生间和工具间及开水房地砖铺装、首层大厅墙面装饰、电梯厅墙面装饰、走道墙面装饰、楼梯间涂料墙面、公共卫生间和工具间及开水房墙砖铺贴、首层大厅天棚装饰、电梯厅及走道吊顶天棚、楼梯间涂料天棚、公共卫生间和工具间及开水房防水石膏板吊顶、卫生间抗倍特板隔断、公区木饰面门、公区临幕墙边玻璃栏板等设计范围内的全部施工内容。
6、安装工程:
6.1 给排水工程:(1)5#、6#楼给水系统从室外水表井(不含水表井,含井内水表、阀门)至末端点位全部按图计入,包括冷水管道及阀门、卫浴洁具,不包含洗衣机、空调及开水器;排水系统按图计算至出单体楼墙外1.5m处;(2)7#楼给水系统从室外水表井(包括水表井及井内水表、阀门)至末端点位全部按图计入,包括冷热水管道及阀门、卫浴洁具、变频给水设备、QL型紫外线消毒器、生活水箱等,不包含洗衣机、空调及开水器等;排水系统计算至出单体楼墙外1.5m处均按图计入,压力排水工程穿剪力墙1.5m以内均按图计入,包含镀锌钢管、阀门、潜水泵,软连接等;热水工程从一层+0.45mm至出屋顶1.0m至包括管道、阀门、混合水箱等;(3)地下车库战时给水引入管从室外水表井处(含水表,不含井)计算至第一个防护密闭阀门处(含防护密闭阀门、防护密闭套管);密闭通道的冲洗龙头(含防护密闭套管和密闭阀门)、电站内的给排水管线在本次招标范围,其余给水管平时不安装;平时排水按图计入,战时仅按图预埋防爆地漏、防爆地漏连接管道、套管,战时排污泵及相关附件均不在本次招标范围;(4)智能喷雾系统在本次招标范围内。
6.2 电气工程:(1)5#、6#楼从单体内第一个配电箱(含箱)后开始全部计入,箱前仅预留预埋(电井内桥架按图计入,入户预埋管计算至外墙1.5m,电井内母线槽不计),包括第一个配电箱至所有末端所涉及的配电箱、电表箱(含表)、控制箱、桥架、管线、灯具、开关、插座等全部内容;空调配电(2)7#楼从单体内第一个配电箱(含箱)后开始全部计入,箱前仅预留预埋(电井内桥架按图计入,电井内母线槽不计),包括第一个配电箱至所有末端所涉及的配电箱、电表箱(含表)、控制箱、桥架、管线、灯具、开关、插座等全部内容;(3)地库内平时所有配电箱、控制箱、桥架、管线、灯具、开关、插座、充电桩等全部内容均按图计入;战时仅计预留预埋;通风方式信号及通信系统按图纸仅预留预埋。
6.3 消防电工程:(1)5#、6#、7#楼火灾自动报警系统、电气火灾监控系统、消防设备电源监控系统 、防火门监控系统应急照明控制系统按图全部计入(其中,端子箱进线从4#楼消防控制室主机开始计算,不包含消控室主机;各单体外墙至端子箱之间的线缆在单体楼,外墙和消控制之间的线缆在室外消防电工程)。(2)地下室火灾自动报警系统、剩余电流报警系统、消防设备电源监控系统 、应急照明控制系统、一氧化碳监控系统按图全部计入(其中,端子箱进线从4#楼消防控制室主机开始计算,不包含消控室主机;地库外墙至端子箱之间的线缆在单体楼,外墙和消控制之间的线缆在室外消防电工程)。
6.4 消防水工程:(1)5#、6#楼消火栓及喷淋系统由外墙外1.5m处开始计取,至所有末端点全部按图计入,包括管道、消火栓、灭火器、阀门、喷头、水流指示器等;(2)7#楼消火栓及喷淋系统由外墙外1.5m处开始计取,至所有末端点全部按图计入,包括管道、消防栓、灭火器、阀门、喷头、水流指示器、泵房的管道、消防泵、喷淋泵、屋顶稳压泵、气压罐、止回阀等;(3)地下车库内所有管道、阀门、末端点位等全部内容均按图计入。
6.5 暖通工程:(1)5#、6#、7#楼消防排烟系统按图全部计入,包括风管、风机、阀门、风口等(不包括空调系统和新风系统的风管、阀门、风口等);(2)地下车库平时的设备、阀门、风管、风口等所有内容均全部按图计入,战时仅计预留预埋套管。
6.6 室外工程:消防电系统由消防控制室开始按图计算至各单体外墙位置(不含消防控制室内设备),消防控制室内线缆预留半周长。
通风空调系统:消防排烟系统按图计入,空调系统(含新风系统和电梯机房空调)不计入。空调系统配电系统仅计预埋管。
图纸上已设计,但不计入本次招标范围的有:
1、人防防护防化、标识标牌、种植土回填。
2、空调系统(含新风系统和电梯机房空调)、由低压配电房至单体的进线电缆、母线槽、T接箱、插接箱、普通客梯、货梯、消防电梯。
3、战时安装的配电箱、线缆、水箱、水泵、设备、衔接管道、阀门、风机、风管、风阀等。
4、CAHP-PI-42空气能热泵电热水系统(含设备及配电箱)。
二、暂定项目:
(一)以下项目按照业主要求,以暂定工程量计入分部分项工程量清单,投标人综合考虑报价,标后按实际工程量结算。
无
(二)本项目按照业主要求,暂列金额为0万元。
(三)执行暂估价的材料、设备、专业工程及其金额如下:无。
三、按项列入清单的内容,标后不予调整:
以下项目按照业主要求,按项计入,投标人自行踏勘现场,综合考虑报价,中标后不予调整。
1、墙体留洞及封堵:内容为设计范围内的墙体留洞与封堵,按1项计入基坑支护分部分项清单中,控制价按30000元计入,投标人自行踏勘现场,综合考虑报价,中标后不予调整;
2、降排水:内容为基础施工期间的降排水,按1项计入大型土石方工程分部分项清单中,控制价按477099.55元计入,投标人自行踏勘现场,综合考虑报价,中标后不予调整;
3、苗木移植:内容为厂区内绿化苗木移植,按1项计入基坑支护分部分项清单中,控制价按22849.29元计入,投标人自行踏勘现场,综合考虑报价,中标后不予调整;
4、小足球场拆除:内容为足球场内的绿化、围网、球门等拆除清理,按1项计入基坑支护分部分项清单中,控制价按42232.11元计入,投标人自行踏勘现场,综合考虑报价,中标后不予调整;
5、洗车房、自行车棚及围挡拆除:内容为洗车房、自行车棚、地面及围挡拆除及清理,按1项计入基坑支护分部分项清单中,控制价按42210.17元计入,投标人自行踏勘现场,综合考虑报价,中标后不予调整;
6、园区路面拆除:内容为洗车房东侧道路面层基层等拆除清理,按1项计入基坑支护分部分项清单中,控制价按21740.25元计入,投标人自行踏勘现场,综合考虑报价,中标后不予调整;
7、凉亭拆除:内容为厂区内凉亭拆除清理,按1项计入基坑支护分部分项清单中,控制价按2000元计入,投标人自行踏勘现场,综合考虑报价,中标后不予调整;
8、混凝土地面拆除:内容为5#6#楼位置混凝土地面及建筑垃圾清理,按1项计入基坑支护分部分项清单中,控制价按19497.98元计入,投标人自行踏勘现场,综合考虑报价,中标后不予调整;
9、室外雨水管:内容为地下雨污水管线保护,按1项计入基坑支护分部分项清单中,控制价按20000元计入,投标人自行踏勘现场,综合考虑报价,中标后不予调整。
10、基坑观测:内容为基坑变形观测点预埋及检测费,按1项计入基坑支护分部分项清单中,控制价按10000元计入,投标人自行踏勘现场,综合考虑报价,中标后不予调整。
11、沉降观测:内容为沉降观测,按1项计入基坑支护分部分项清单中,控制价按10000元计入,投标人自行踏勘现场,综合考虑报价,中标后不予调整。
12、泥浆池:内容为泥浆、泥浆沉淀池制作,按1项计入基坑支护分部分项清单中,控制价按20000元计入,投标人自行踏勘现场,综合考虑报价,中标后不予调整。
13、智能喷雾系统:内容为临时围挡智能喷雾系统,按1项计入室外消防电分部分项清单中,控制价按70000元计入,投标人自行踏勘现场,综合考虑报价,中标后不予调整
14、塔吊及人货梯基础:内容为塔吊及人货梯基础,按1项分别计入5#、6#、7#楼地上(土建)分部分项清单中,控制价中每栋分别按60000元计入,投标人自行踏勘现场,综合考虑报价,中标后不予调整
四、补充图纸及修改图纸的说明:
本工程在第一次发放图纸后,有补充图纸,具体详见图纸目录。
五、总承包服务费:详见招标文件。
六、 业主的其他要求及提示
1、本项目土方为综合类土(含淤泥、青苗、渣土、植被、土方、建筑垃圾等)。投标人须自行踏勘现场,多余土方、淤泥、植被、建筑垃圾等须外运出场,运距自定。若需外借(购)土方,自行解决取土点,回填土质须满足施工图纸设计及相关规范要求,运距自定。投标人应考虑各方面因素后审慎报价,综合报价应考虑土方施工中的渣土费、渣土运输清理费、外购土方费用、保洁费、办证、现场苗木、建筑垃圾等杂物的清理及其他可能发生的一切费用,中标后不予调整。
2、本工程的施工用水电接引点位于园区内,投标人应详细踏勘现场,投标单位中标后负责自行将施工用水用电引入各施工单体,水、电接引穿过厂区道路时必须埋设暗管。施工用水电接引(含电线电缆、临时配电房、配电箱、水管等)施工及使用期间所有维护费用不再单独列项,请投标人自行踏勘现场,涉及费用请投标人在投标报价时综合考虑,不再单独列项,中标后不再因此增加任何费用。
3、中标人进场后,为发包人提供5间办公现场办公用房(包括但不限于办公家具、空调等办公设备),且相关水电费用由承包人免费提供,需费用在投标报价中综合考虑。临时设施搭建的位置必须经招标人确认同意后方可实施。若中标人自行选择临时设施的位置影响其他项目的正常进行,则中标人应立即自行拆除原有临时设施,并重新搭建,由此造成所有相关费用的增加均由中标人自行承担。
4、安全文明施工中封闭围挡、大门、值班室、门楼、图牌、施工场地、宣传等必须符合当地主管部门相关文件及业主要求(详见《高新区建筑工程施工围挡指导手册》),不再单独列项,费用由投标人在措施费中考虑。
5、本次招标工程内各项检验试验费、试验费、四性试验、沉降观测费、各类施工(安全)方案评审、竣工档案扫描及归档费用、验收等所发生的费用由中标人支付,在投标报价中综合考虑。
6、防雷接地的检测费、防雷技术服务费由中标人支付,投标人在投标报价中自行考虑。
7、投标人应综合考虑各类施工车辆、机械、设备设施的进场路线、作业面的加固处理及周边道路的情况,相关费用综合在投标报价中。
8、完全按照《合肥市住宅工程质量通病防治导则》执行。投标人应充分考虑相关费用,综合到投标报价中,中标后施工单位不得以任何理由办理经济签证。
9、真石漆、乳胶漆颜色最终以招标人确认现场样板色为准,调色费包含在投标报价内。
10、施工中实施的建设工程施工扬尘治理措施费用以建设单位认可的签证为确认依据,否则在工程结算时按照合造价(2018)13号文等相关文件规定扣除相应费用。
11、施工场地内临时施工便道宽度、铺设长度及布置情况请投标人结合现场实际情况及结合业主要求综合考虑;投标人应自行踏勘现场,涉及费用在投标报价中综合考虑,竣工移交前中标人必须破除并外运出场,否则结算时将控制价措施项目清单中的“临时设施费”全额扣除。
12、投标人提供的消防产品必须符合当地消防管理部门要求,确保施工内容通过消防验收。消防验收等费用不单独列项,由投标人在报价中自行考虑。
13、现场如存在与其他工程交叉施工的情况,中标人在施工过程中注意成品保护,如有损坏,必须无条件原样修复,并承担因此造成的其他损失费用,如拒不修复的,招标人自行修复的费用由中标人承担,并在项目结算时直接等额扣除。
14、图纸中如有φ6钢筋,实际直径为6.5mm。
15、图纸中如有C10混凝土,实际为C15混凝土。
16、本项目砼采用商品砼,砂浆采用预拌砂浆。
17、图纸设计与审图意见及答复有冲突的,以审图意见及答复为准;审图意见及答复与本次招标答疑有冲突的,以本次招标答疑回复为准。
18、本标段施工中,对相邻建(构)筑物的防护措施由中标人负责,不单独列项,所需费用在投标报价中综合考虑。
19、对于现场沟渠、水塘等的清淤换填,投标人须结合地勘报告、图纸,在实地勘踏现场后进行报价,所涉及的施工降排水、清淤,土方、淤泥、垃圾等的外运,外购土方,换填,压实,可能发生的支护等工作内容所须的费用均含在投标报价内,一次性包死,结算不予调整。
20、现场情况及地形复杂,投标人须充分考虑材料二次搬运费,由投标人自行踏勘现场,综合考虑,自行报价,标后不予调整。
21、投标人要充分考虑品牌和性能兼容问题,综合在投标报价内,中标后不得以此要求增加任何费用。
22、幕墙工程包含幕墙清洗,要求质保期内每半年清洗一次,费用由投标人自行考虑,综合在投标报价内,中标后不得以此要求增加任何费用。
24、本项目招标范围内涉及二次深化设计产生的一切费用(包括深化设计费用及按照深化设计后施工的费用),由投标人在投标报价时综合考虑,中标后不予调整。二次深化设计方案须经业主同意后方可实施。
25、如遇后期有增值税税率调整,按政府相关文件执行;
26、桩长暂按图纸长度计入,后期施工中无论实际桩长为多少,均按投标报价中的相应综合单价进行结算,工程量按实结算。投标报价中应包含截桩、接桩、送桩、填芯等一切费用,并按相关图集及相关规定要求对桩顶与承台连接进行施工,以上相关费用均包含在投标报价内。其他未尽事宜按图纸和相关规范、图集计入投标报价。投标人应综合考虑各类施工机械、设备的进场路线、作业面的加固处理,相关费用综合在投标报价中。
27、投标人投标前须实地踏勘现场,结合相关资料综合考虑土方开挖、回填、平衡、外运等相关工程量,回填土压实度必须满足图纸设计要求,此项内容一次性包死,结算时不予调整。园区红线范围内不允许堆放土方,所有土方须外运出场,费用含在投标报价内。
28、本工程完工后,承包人应做到“工完料尽场地清”,工程所产生建筑垃圾应全部清运出现场(不得堆放在场区周边),恢复施工场区及周边区域原状,由此发生的费用由投标单位综合考虑在投标报价中,中标后不予调整。
29、现场原有围挡必须按照《高新区建筑工程施工围挡指导手册》改建或新建,投标单位需仔细勘察现场,涉及费用由投标单位综合考虑在投标报价中,中标后不予调整。
30、本工程必须严格遵行国家现行相关规定确保安全文明施工。必须严格执行国务院393号令《建设工程安全生产管理条例》。必须严格执行《合肥市创建文明城市责任考评办法(试行)》、《合肥市建设系统创文明城市工作实施细则》、《合肥市建设工程扬尘污染防治暂行规定》等有关安全、文明施工的规定和招标人针对本工程所作出的安全、文明措施,确保符合合肥市创建文明卫生城市要求。施工现场卫生保洁自开工至工程竣工卫生移交。
31、招标范围内涉及到所有拆除的材料,如业主要求须搬运到指定地点,中标单位须无条件配合,涉及费用在投标报价中综合考虑,后期不予调整。
七、温馨提示:
投标人投标报价还须仔细阅读本项目招标文件,慎重报价。
第二部分:设计文件及技术补充说明
一、共性问题
1. 请明确现场地貌是否满足设计图纸室外标高,如否,请提供土方平衡图纸。
答:场地已平整,具体标高由投标人自行勘察现场,费用综合考虑。详见测绘图(附件1)、现场照片(附件2)。
2. 请明确本工程现场是否满足堆土要求,如否,请明确本工程土方运距。
答:土方运距按20公里计入,此数据仅供投标人参考,投标人应仔细勘察现场情况,综合报价。
3. 请明确本工程是否有甲供材,如有,请明确甲供材材料及单价。甲供材单价是否计入本次控制价。
答:本项目无甲供材料。
4. 请明确本工程是否需考虑降水,如是,请提供相应降水图纸。
答:本工程需要降水,请投标人仔细阅读地勘报告,由投标人根据地勘报告的地下水位置,按照相关规范要求进行降水处理,相关费用由投标人综合考虑在投标报价中。

5. 请明确人防防护防化部分是否在本次招标范围。
答:人防防护防化及预埋件不在本次招标范围内。
6. 请明确减速带、反光带、墙柱阳角护角、标识标线、车档、号楼标识标牌等是否在本次招标范围,如在,请提供相关设计图纸。
答:不在本次招标范围内。
7. 电梯是否在本次招标范围
答:不在本次招标范围内。
8. 室外工程是否在本次招标范围
答:不在本次招标范围内。
9. 门窗是否在本次招标范围。
答:在本次招标范围内。
10. 卫生间洁具隔断是否在本次招标范围
答:在本次招标范围内。
11. 请明确桩基是否在本次招标范围。
答:在本次招标范围内。
12. 请明确精装修区域安装工程是否在本次招标范围内。
答:在本次招标范围内。
13. 连廊地面是否在本次招标范围。
答:在。
14. 请提供现场需拆除部位明细及规格数量
答:投标人自行勘查现场,综合报价,因现场量无论多少,后期不予调整
15. 场地范围内是否需要管道迁移及保护,若有请明确范围数量
答:投标人自行勘查现场,综合报价,因现场量无论多少,后期不予调整

16. 请明确地下室所有混凝土构件是否均为膨胀混凝土且需掺入膨胀纤维抗裂防水剂。
![]()
答:底板、顶板、外墙需要。
17. 人防部分结构图与建筑图土方回填要求材质不一致,应已何为准。

![]()
答:以人防为准。
18. 主楼部分未见CAD版结构说明,请提供
答:在(室外连廊)结构图纸中结施通1-4。
19. 主楼部分未见CAD版建筑说明,请提供
答:详见WORD版建筑说明。
二、个性问题
(一)土建部分
1. 请提供原始场地标高到设计室外标高的土方十字网格图
答:7#楼按照测绘土取平均标高减去该位置混凝土拆除量计算,超出部分由投标人自行承担。5#、6#见附件1。
2. 6#楼节点F在标高43.00处结构图和建筑图存在差异,请设计明确采用500mm高挡墙+700mm高玻璃防护栏杆还是采用1400mm高挡墙?


答:以结构为准。
3. 请明确7#楼主楼与配套用房地上、地下轴线范围划分(地下为整个地库,墙柱等级不一样轴线划分不清晰)?
答:按上部主楼范围。
4. 请明确7#梁后浇带增补钢筋的钢筋信息?

答:按照梁纵向钢筋的一半。
5. 请提供7#下列风井的结构及建筑大样图?


答:排风做法参建施-19第13号节点,7#入口立面详见建施-21 ,10号墙身大样。结构见相应节点图。
6. 7#楼、5#楼梯根据剖面图可以看出,门上方有雨棚,屋面有女儿墙,建筑、结构未提供女儿墙及雨棚大样图,请明确?

答:5#楼详见建施-19,1/7号图,7#楼屋顶雨蓬大样详见建施-19,12号图。结构见相应节点图。
7. 7#装修做法表中以下房间未注明装修做法,请明确?




答:具体做法均同宿舍。
8. 请明确7#地上水井、弱电井的墙面及天棚做法?
答:水井、弱电井墙面采用内墙5,顶棚采用顶棚5。
9. 请明确电梯机房楼面及墙面的做法?
答:楼面采用楼面6,墙面采用内墙5。
10. 请明确7#地下车库此房间的装修做法?

答:参考电梯前室做法。
11. 请明确7#地下室通风、排水井的装饰做法?
答:墙面采用内墙3,地面顶棚结构面交付。
12. 请明确φ700灌注桩As1、As2的钢筋根数是否有误?

答:没错,φ700的为承压桩,下部钢筋减半。
13. 结构说明中明确人行通道处需要设置马凳筋,请明确筏板和其他楼板是否不设置马镫筋,如设置请明确其他楼板及筏板马凳筋的钢筋信息?

答:要设,其他楼板根据相关施工规范执行。
14. 请明确本项目是否采用砖胎膜,如采用请明确砖模材质及厚度?
答:

15. 请提供7#电梯基坑的大样图?

答:可参结施-02集水井大样详图。
16. 建筑图与结构图中集水坑位置及尺寸不一致,7#多出存在此类问题,排水沟也存在此类问题,请明确以何为准?


答:以结构为准。
17. 请提供排水沟、吸水坑节点大样配筋图?

答:详见“结施-02”相关详图。
18. 请提供7#机房层屋面节点大样、从剖面图可以看出机房顶有一圈女儿墙,建筑及结构未提供女儿墙大样,请明确?

答:做法详见建施-19,12号大样图。结构相应节点。
19. 7#楼配套用房门联窗高度为3.4m,梁底标高为3m,窗顶标高为3.35m,窗顶高于梁底高度,请明确?


答:建筑调整窗高为3.35
20. 7#楼请明确此处为何构件?

答:防雨铝合金百叶。
21. 请提供7#楼及配套用房外墙保温线范围图?
答:补充保温线范围图。
22. 7#结施-30,主楼屋顶及机房层梁配筋图此梁未标注尺寸及钢筋信息,请明确?


答:同XL1
23. 请明确7#排水沟、集水坑盖板尺寸及材质?
答:排水沟盖板参图集05J927-1,48页4号铸铁篦子盖板,
集水坑盖板为混凝土盖板。
24. 7#有多个室内外台阶,请明确台阶的做法?



答:为砖砌台阶。
25. 请明确屋面防水上翻高度?
答:不小于250mm。
26. 请提供7#卫生间排气道出屋面做法?
答:宿舍排气道参16J916-1,F-W1-28型号,出屋面做法参16J916-1的44页,选用F-FF-400型号风帽。
27. 请明确7#楼幕墙处外墙面采用哪种墙面做法?

答:详见建施通-03内墙1做法。
28. 设计图纸中坡道剖面图做法与建筑说明不一致,应已何为准?


答:以设计说明为准。
29. 请明确7#地下室内墙砌体材质是否为MU10煤矸石多孔砖,M7.5混合砂浆砌筑。

答:是。
30. 1、6#楼结施-02“一~二层墙柱平法施工图”YBZ07大样图与平面图尺寸对不上,请设计明确。


答:YBZ07大样图中1800标注尺寸错误,应为平面尺寸300。
31. 2、结构说明与建筑说明中砌体墙材质做法不一,请明确砌体墙材质。

答:以结构为准。
32. 请提供马镫筋牌号直径大小。
答:马镫筋选用牌号HRB400直径14或16的钢筋,当板厚较厚时,钢筋直径取大值。
33. 结构说明中外墙施工缝处止水钢板有两种规格大小,请明确具体规格尺寸。

答:钢板止水带以右图为准,采用4mm厚钢板止水带,止水带展开宽360mm。
34. 结构说明中不同材质交界处采用镀锌钢丝网或耐碱玻璃网布,建筑说明中只要求采用玻璃网布,请设计明确。

![]()
答:采用镀锌钢丝网处理,加强带与个基体的搭接宽度不应小于250mm,镀锌钢丝网直径1mm,网孔尺寸不大于20mm。
35. 建筑说明中地下室防水要求采用两道防水,地板防水做法采用一道防水卷材,前后说明存在冲突,请明确。

答:按照地下室底板做法来做,1.5厚预铺反粘强力交叉膜防水卷材为高分子卷材,一级防水也一道即可。
36. 屋面做法中保温厚度需增加1.5倍厚度指的是80*(1+1.5)=200mm还是80*1.5=120mm,请明确

答:按照80*1.5=120。
6#楼电梯井道内爬梯是否在本次范围,若在本次范围请提供做法
答:不在本次招标范围内。
6#楼屋面排水沟盖板是否在本次范围,若在本次范围请提供具体做法

答:在本次招标范围内,排水沟盖板参见图集12J201-D16。
37. 6#楼建筑图三层及屋面爬梯无具体做法,请提供做法图纸


答:爬梯做法参见图集15J401-A4。
38. 请提供6#楼屋面台阶踏步做法

答:砖砌踏步宽300高150。
39. 7#楼电梯基坑给出了装饰做法5#楼、6#楼基坑未给出装饰做法,是否同7#楼电梯基坑做法


答:按照7#楼做法。
40. 7#楼屋面消防水箱是否在本次招标范围

答:在本次招标范围内。
41. 人防车库坡道护栏是否在本次招标范围,若在本次招标范围请提供做法图纸

答:在本次招标范围内,护栏做详见图中索引图集。
42. 请明确阳台墙面的做法
答:按照建筑材料做法表中内墙3。
43. 7#楼LT4在1.9m位置处TZ1、TKL2与C1515冲突,请明确



答:1.900标高,TL2均上翻,C1515做在平台板底。
44. 请明确厨房卫生间防水反梁的混凝土等级

答:C25砼翻边。
45. 请明确7#楼地下室配电间、强电间的墙面及天棚做法,地下室楼梯间墙面、天棚做法
答:7#楼地下室配电间强电间强电间参见建筑施工图设计说明(地下部分)中内墙1,顶棚1。地下室楼梯间墙面、天棚做法详见室内公区部分图纸中说明。
46. 请明确7#楼设备管井的楼面及天棚做法
答:按照建筑材料做法表中楼面1及建筑施工图设计说明(地下部分)中顶棚1。
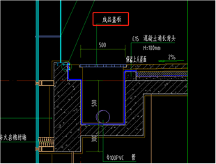
47. 请明确排水沟、集水坑的防水做法
答:按照建筑施工图设计说明(地下部分)中内墙2。
48. 请明确7#楼地下车库顶棚的装修做法
答:建筑施工图设计说明(地下部分)中顶棚1。
49. 以下做法表中未注明部位,请明确为哪些房间
![]()
![]()
答:地下室汽车库。
50. 7#楼以下门窗图纸中未给出尺寸及材质大样图,请明确具体尺寸及材质(FM丙1018,M1221,M1423、FM甲1523)




答:FM丙1018 1000X1800,丙级木制防火门。M1221 1200X2100,钢板门。M1423 1400X2300,铝合金外门。FM甲1523 1500X2300,甲级木制防火门)
51. 5#楼结施02剪力墙墙表中无400厚剪力墙.5-1/3轴交5-D轴中剪力墙厚度为400,请明确


答:400厚剪力墙配筋水平筋12@150,竖向筋为10@150。
52. 5#楼结施01基础平面图中5-B*5-5轴处只有一个集水井,而人防结构图纸中结施-04此处有两个集水井。6#楼存在相同问题


答:按人防结构图纸。
53. 人防结构图纸中无电梯井做法,是否参照集水井做法

答:详见平时结构基础平面图。
54. 地下建筑装饰做法以哪版图纸为准?
答:以建施通02 建筑施工图设计说明(地下部分)为准。
55. 幕墙及铝板干挂处外墙面采用哪种做法?
答:按照外墙2做法。
56. 屋面砖砌台阶,请明确砖规格等级、砌筑砂浆等级以及面层水泥砂浆等级?
答:砖的规格等级砌筑砂浆等级同内墙砖,面层做法同相应室内地面做法。
57. 防火门材质为木质还是钢质?
答:地上采用木制防火门,人防车库及7#楼地库采用钢制防火门。
58. 请明确号楼首层回填材料?
答:泡沐混凝土。

59. 雨棚及风井顶板采用什么做法?
答:参照下列做法。

60. 7#楼配套房卫生间这个位置按照什么门计入。

答:按照M0824。
61. 道路排水沟是否在本次招标范围,如是请明确具体位置?

答:不在本次招标范围。
62. 幕墙处栏杆采用什么做法?
答:按照下图做法计算。

63. 7#楼此处房间采用什么做法?

答:按照水井间做法。
64. 装饰做法选用表与建筑材料做法表有误,以哪种做法为准?

答:以建筑做法表为准。
65. 电梯机房采用什么油漆
答:采用环氧地坪漆。
66. 7#楼消防水池是否需要贴砖,如是请明确具体规格与材质?
答:采用普通防滑面砖。
67. 请明确车库顶板种植土范围?
答:素土回填。
68. 请明确本工程独立柱是否需要装饰处理?
答:控制价按照相应房间装饰做法计取,若过程中未施工,结算予以调整。
69. 砖胎膜是否需要抹灰
答:砖胎膜贴基础一侧抹灰
70. 请明确结构说明6.4.17中现浇混凝土带是素砼还是钢筋混凝土。

答:钢筋混凝土,内配4C8/C6@200
(二)精装修工程
1.请明确ST-01水磨石为预制水磨石还是现浇?
![]()
答:成品预制。
2.请明确水磨石、法国灰大理石、芝麻白石材、人造石的具体厚度各为多少。

答:地面石材20厚。
3.请明确ST-04 白色人造石的具体品种。
![]()
答:样式后续由投标人报送几种供招标人选择,最终以选样为准。
4.请明确防尘地毯下水泥砂浆找平层的具体厚度

答:30mm。
5.请明确MT-01黑钛不锈钢的具体厚度
![]()
答:1.2厚。
6.请明确MT-02银色拉丝不锈钢的具体厚度。
![]()
答:1.2厚。
7.请明确MT-03拉丝不锈钢的具体厚度。
![]()
答:1.2厚。
8.请明确MT-04穿孔铝板的具体厚度及表面处理方式。
![]()
答:直径6mm冲孔率12.5%;板厚:1.2mm,激光穿孔(材料选样定)。
9.请明确GL-02 6+6mm夹胶玻璃的胶片规格机夹胶厚度。
![]()
答:6+1.14PVB+6mm。
10.请明确楼梯间楼梯间前室墙面做法

答:墙面找平粉刷,刷白色无机涂料。
11.5#楼一层精装图纸与建筑图墙体不符,是否存在墙体拆除?如存在,请提供墙体拆除图


答:建筑墙体砌筑以精装墙体定位图为准。
12.5#楼2层及以上公区如图标示部位精装图墙体与建筑图墙体不符,是否存在墙体拆除及新砌,如有,请提供墙体拆除及新砌图纸


答:建筑墙体砌筑以精装墙体定位图为准。
13.6#楼公区各层均存在精装图墙体与建筑图墙体不符,是否存在墙体拆除及新砌,如有,请提供墙体拆除及新砌图纸

答:建筑墙体砌筑以精装墙体定位图为准。
14.请明确钢化玻璃门是否在本次招标范围内?如在,请明确钢化玻璃门的钢化玻璃规格。

答:在本次招标范围内,10厚钢化玻璃。
15.请明确钢化玻璃门节点中成品拉手的具体材质及拉手规格。

答:不锈钢成品拉手,样式后续由投标人报送几种供招标人选择。
16.请明确木饰面的具体厚度。

答:均是成品木饰面10厚,金属件干挂木饰面15厚。
17.请明确5#、6#、7#楼的木饰面门是否均在本次招标范围内?
答:在本次招标范围内。
18.请明确卫生间墩台节点中加气混凝土砌块的具体规格。

答:10-03-600*200*100-A GB11968-89
19.请明确卫生间隔断是否在本次招标范围内?如在,请明确成品卫生间隔断的具体材质品种。

答:在本次招标范围内,18mm仿木纹抗倍特板
20.请明确卫生间小便器隔断是否在本次招标范围内?如在,请明确卫生间小便器隔断的具体材质规格及尺寸。

答:在本次招标范围内,仿木纹抗倍特板,尺寸详见下图
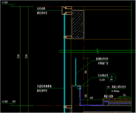
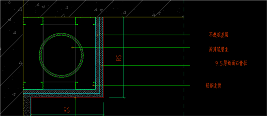
21.请明确轻钢龙骨石膏板包管节点中竖龙骨及横龙骨的具体规格和布置间距以及不燃板基层的具体厚度。

答:3000*50*30*0.5mm找平,覆12厚不燃板,竖龙骨间距≤400mm,横龙骨间距小于1000mm。
22.请明确窗边玻璃栏板是否在本次招标范围内?

答:在本次招标范围内。
23.请明确5#楼一层钢化玻璃隔断是否在本次招标范围内?如在,请提供相关节点做法。

答:在本次招标范围内,具体做法由隔断厂家深化,投标人要综合考虑二次深化设计产生的一切费用(包括深化设计费用及按照深化设计后施工的费用),中标后不予调整。
24.请明确5#楼干挂石材节点中10厚镀锌角钢的具体尺寸及布置间距。

答:10厚热镀锌钢板,根据大理石的规格以及采用的干挂方式确定预埋件的规格、间距等要求;一般情况下在结构上对应大理石的中上部一点位置预埋一块埋件就可以了,埋件的锚筋可以参照预埋件图集的要求;一般常用250×200mm的预埋件。
25.请明确6#楼节点图纸各节点的基层阻燃板的厚度、多层板的厚度以及40*60镀锌方管的壁厚。


答:18厚阻燃板,40*60*4mm镀锌方管。
26.请明确7#楼节点图纸各节点的基层阻燃板的厚度以及40*60镀锌方管的壁厚。

答:18厚阻燃板,40*60*4mm镀锌方管。
27.请明确7#楼木饰面造型墙基层的具体做法(横竖龙骨规格、间距等)

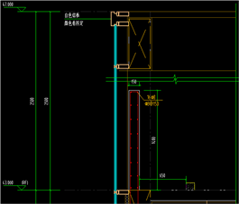
答:3000*50*30*0.5mm找平,覆18厚阻燃板,再用木饰面专用金属挂件挂成品木饰面。竖龙骨间距按图,横龙骨间距小于1000mm。
28.如图所示电梯门门套,立面图为黑钛不锈钢材质,节点图FD-01中为干挂石材,请明确门套的具体材质。


答:电梯门套为黑钛不锈钢材质。
29.请明确工具间、开水间及卫生间前室墙面的具体做法。
答:同卫生间墙面做法。
30.请明确楼梯间及楼梯间前室踢脚线做法。
答:20mm厚芝麻白石材,高度80mm。
30.幕墙是采用后置埋件和预埋件?
答:采用预埋件。
31.请明确残疾人卫生间内坐便器扶手、小便器扶手及台盆扶手是否在本次招标范围内?如在请明确扶手材质及规格。

答:在本次招标范围内,不锈钢扶手,具体样式由投标人报送几种供招标人选择,最终以选样为准。
(三)安装部分
1. 电气图纸中未明确吊顶区域吊顶高度,请明确。
答:电缆桥架等吊顶内敷设,梁下100mm敷设,灯具和消防灯具,烟感等吸顶安装。
2. 如下图所示,图纸说明消防控制室在已建4#一层,本次消防电干线是否在本次招标范围内,若在,请提供室外干线平面图纸。

答:补充图纸。
3. 如下图所示,请明确给水系统(热水)是否从减压阀后开始计入?若不是,请明确具体计算起点。

答:否,供水公司施工至项目红线内,总包从供水公司接驳点往后施工。
4. 请明确,CAHP-PI-42空气能热泵电热水系统是否在本次招标范围内。
答:不在本次招标范围内。
5. 如下图所示,请明确图纸说明中管道穿越楼板预埋套管材质。

答:钢套管。
6. 图纸说明未明确消防泵房水泵吸水管道材质及连接方式,请明确?
答:镀锌钢管,法兰连接。
7. 请明确空调系统是否在本次招标范围内。
答:不在本次招标范围内(含新风系统)。
8. 请明确抗震支吊架是否在本次招标范围内。
答:在本次招标范围内。
9. 7#图纸说明中未明确风管材质及厚度,请明确。
答:防排烟系统风管采用钢板制作。钢板风管板材厚度按《通风与空调工程施工质量验收规范》GB50243-2016表4.2.3-1高压系统确定。
10. 如图示风井内是否考虑风管,若考虑,请明确材质及尺寸、厚度?

答:除防排烟系统外,风井可不设置内衬风管。需要内衬风管的井道已在图中注明内衬规格。
11. 空调系统不在本次招标范围内,强电图纸中空调室内机和室外机的配管、配线和桥架是否计入?
答:配线和屋顶的桥架不计入本次招标范围,竖井内桥架在本次招标范围。
12. 图纸上未明确风管穿墙套管的材质及厚度,请明确?
答:1.6mm钢制套管。
13. 抗震支吊架具体深化设计由专业公司完成,本次如何考虑计入?
答:抗震支架按照规范要求设置,由中标人委托专业单位制作,费用综合考虑进投标报价。
14. 如图示能耗监测系统是否在本次招标范围内,若在,设备是否计入,请明确?

答:在本次招标范围内,需要计入。
15. 4.20日答疑回复消防控制室在本次招标范围内,请提供消防控制室平面图及设备参数?

答:4.20答疑有误,消控室设在已建4#楼,不在本次招标范围内。

16. 如下图所示:应急照明控制系统是否在本次招标范围内,如在,请提供应急照明集中电源配线平面图?

答:在本次招标范围内,信号线缆路由,从消控室到每个单体应急照明分配电箱。电源配线设计单体设计图纸中已经有了。
17. 请明确屋面雨水斗材质。
答:87型铸铁雨水斗。
18. 如图示:7#楼图例表未明确此灯具名称及规格型号,请明确?

答: 此处有误,与右侧双管荧光灯规格型号相同。
19. 如图示:7#楼APE-XF1/2安装高度图纸未注明,请明确?

![]()
答: 底边距地1.2米。
20. 如图示:7#楼图纸中未明确AC-QW1控制箱位置,请明确?

答: 此箱子取消。本回路改为备用回路。
21. 如图示:7#楼图纸中未明确ZAP1动力柜位置,请明确?

答:平面图中未表示,安装位置,在一层的强电井内。
22. 如图示:7#楼此回路平面图未画出,请明确?

答:此回路,断路器保留,作为备用回路,平面不设置插座。
23. 如图示:7#楼负一层平面图未明确此回路的配电箱,请明确?

答:此回路,修改为从一层AE1B备用回路引出。
24. 如图示:7#楼图纸未明确配电箱AE1-E2回路走向,是否考虑走桥架敷设,请明确?

答:穿管明敷。不可与公共照明共用桥架敷设。
25. 如图示:7#楼图纸未明确配电箱AE2-E1回路走向,请明确?

答:沿着走廊公共区域,穿管明敷。
26. 如图示:7#楼空气能热泵电热水系统不在本次招标范围内,请明确空气源热泵控制箱AP-KQ及出线是否也不再本次招标范围内。


答:不在本次招标范围内。
27. 5#、6#、7#楼无强电井桥架大样图,请提供?
答:6#南、北区首层平面图变配电房至强电井一段强电桥架规格改为400*200cm, 变配电房至强电井增加200*150cm消防桥架,变配电房至强电井增加2条630A 150*150cm封闭母线,裙房首层平面图由变配电房至强电井增加1条630A 150*150cm封闭母线,变配电房至强电井增加200*150cm消防桥架。电井大样如下:



5#电井大样如下:

7#电井大样如下:


28. 如图示:7#楼APE1配电柜进线是否计入,若计入,请明确变电房低压馈电柜的位置?

答:不计入。
29. 如图示:7#楼AP1始端箱进线是否仅计预埋,若否,请明确变电所出线柜位置?

答:仅计预埋。
30. 如图示空气能热泵电热水系统不在本次招标范围内,请明确此位置热水供水管及热水回水管是否计入,若计入,算至什么位置?


答:计算,算到距离设备接口1米。
31. 如图示混合水箱是否在本次招标范围内,请明确?

答:在本次招标范围内。
32. 如下图:人防地下室中箭头所示线缆是否在招标范围内,如在,请提供非人防区专变主用电源位置及配电平面图?

答:不在本次招标范围内。
33. 如下图:室外消防水泵接合器是否在本次招标范围?

答:属于室外工程,不在本次招标范围内。
34. 如图示5#AP1配电柜进线是否计入,若计入,请明确变电房低压馈电柜的位置?

答:仅计预埋。
35. 如图示ELS箱进线由智能电池主站引来,请明确智能电池主站位置?

答:由智能电池主站引来此回路删除,自带电池。
36. 如下图所示:消防接线端子箱线路引自园区消防控制室,请明确园区消防控制室的位置并提供配线平面图?

答:详见补充的消防干线总图。
37. 如下图:5#楼图例表中壁灯无安装高度,请明确?
![]()
答:距地1.8米。
38. 请提供精装修灯具及开关图例表;
答:灯具图例见装修图,开关图里见补充图例。
39. 如图示5#-RF-ZY1旁Z箱是否为消防模块箱,请明确?

答:不是,消防模块箱平面不用示意。这个是智能压差控制器。具体看系统图,和压差控制器原理图。
40. 如图示5#-RF-ZY1、2、3箱平面图无K11、K13回路,请明确?

答:K11取消,K13是到消控室,在消防平面图中体现。
41. 如图示5#-RF-PY1箱平面图无K11、K13、K14回路,请明确?
答:K11取消,K13到模块箱,消防平面图中的I/O模块箱,K14在消防平面图中体现。
42. 如图示5#AP1、3、4箱系统图出线回路为桥架敷设未注明配管规格,而5#-1AL进线为SC32-CT,请明确5#AP1、3、4箱出线配管是否与5#-1AL进线配管一致?

答:5#-1AL以分系统图为准。

此配管为SC100计算。
43. 如图示低压配电干线图5#AP3、4 至T接箱电缆无规格型号,请明确?
答:出线规格如图:

44. 5#楼如图示压力传感器无系统图,请明确?

答:由正压送风机控制箱的智能压差控制器引来,配电控制详见下图

45. 如下图所示:配电干线图(图1)上由5#AP1至AL箱的电缆为WDZB-YJY-4*25+1*16,而5#AP1系统图(图2)中至AL箱的电缆为WDZB-YJY-5*16,(图3)AL箱的进线电缆为WDZB-YJY-5*6,这三个图纸同一配电箱电缆规格不同,请明确?
(图1)
(图2)
(图3)
答:以系统图为准,干线为WDZB-YJY-5*16,T接箱之前为WDZB-YJY-5*16,T接箱之后为WDZB-YJY-5*6。
46. 5#楼如下图所示:箭头所指桥架未注明规格尺寸,请明确?

答:至图面表达的位置即可。
47. 6#系统图纸有1ELS2、1ELS3箱,平面图纸没有画出1ELS2、1ELS3箱的位置,请明示位置?

答:相应层的电井内。详见电气干线图。
48. 6#楼如下图所标记的灯具没有图例,请明确灯具的型号和参数?

答:灯具图例见装修图;型号和参数成品灯具采购。
49. 7#如图示机房层照明平面图此处是否也考虑控制开关,若考虑,请明确控制开关的位置及安装高度?

答: 机房底层,具体1.2米,电梯井道门口内侧。
50. 7#如图示一层平面图无无障碍居室及活动室的电气平面图,请提供?

答:插座和灯具布置与宿舍相同即可。
51. 7#如图示APE-XF1/2动力柜系统图每个回路未明确配管,请明确?


答:5*6和5*4按SC32管计算。4*35+1*16和4*25+1*16按SC50管计算。
52. 7#如图示-1ALG、ALG1、SHB、ZAP1配电箱干线图与系统图电缆型号不一致,请明确?

答: 以分系统图为准,其中SHB电缆规格应为:4*25+1*16,电缆不在本次招标范围内。
53. 7#如图示图纸说明未明确地下室底板是否采用双面钢筋焊接,还是单面钢筋焊接,请明确?

答:双面焊接。
54. 7#空气源热泵控制箱AP-KQ进线是否仅计桥架,请明确?
答:是。

55. 7#如图示电动挡烟垂壁控制箱 AC-DYCB是否属于设备自带,请明确?
答:是。
56. 7#如图示二层此处卫生间是否漏一个LEB 箱,请明确?

答:是。
57. 7#如图示二层此处配套用房是否漏一个LEB 箱,其他楼层均有LEB箱,请明确?

答:不需要。
58. 7#如图示负一层弱电机房是否漏一个LEB箱,请明确?
![]()

答:是。
59. 如下图所示:7#楼一、二层图中所圈出的线引至哪个接线端子箱,请明确?

答:该井道内要设置接线端子箱,未画出。
60. 人防地下室中如下图所示:1FO在图例表上无,请明确?

答:图例如下图所示:

61. 人防地下室中充电桩本次是否不计入,仅电源预留到位?
答:需安装到位,计入。
62. 人防地下室中2~3ATpy1配电箱无系统图,是否同1ATpy1配电箱?
答:同1ATpy2~3ATpy2配电箱系统图。
63. 人防地下室中如下图所示:1ATpy1、1~3ATpy2、3ATjf配电箱的WL1回路是风机房插座,平面图中风机房无插座,请明确?

答:风机房内配电箱附近就近安装。
64. 空气质量监控系统中YK-S系统主机及YK-R参数表及平面图中无,请明确具体参数及安装位置?

答:系统主机位于消控室内,不在本次设计范围内,具体参数咨询设备厂家。
65. 如下图所示:5#楼总包图纸公共照明配电箱为5#-1AL,而精装修图纸公共照明配电箱为1ALG,两个配电箱是否为同一个,若否,请提供5#精装修公共照明配电箱进线干线图及系统图?

答:是,以精装修图纸为准。
66. 如下图所示:5#楼精装修图纸中不规则三角形条形灯是否在计算范围内?若是如何计量?

答:根据图纸的灯具长度计算量
67. 如下图所示,5#弱电井未显示桥架如何布置,请提供5#楼弱电井桥架大样图?

答:智能化弱电暂未进行设计。
68. 5#楼有屋顶防雷平面图,无接地平面图,请提供?
答:详见人防院电气专业部分设计图纸。
69. 7#如图示消防线型表与系统图线型不一致,请明确参照哪一个?




答: 以分系统图为准。消防线型表仅仅是平面图的的线型图例。
70. 如下图所示:箭头所示的热回水管道采用何种材质、连接方式如何,请明确?


答:采用钢塑复合管,DN≤65mm的丝扣连接,DN>65mm卡环或沟槽式连接。
71. 如下图:人防地下室潜污泵配电箱系统图中显示配管为SC20,而潜污泵平剖面图显示配管为SC25,请明确以哪个为准?


答:以系统图为准。
72. 人防地下室消防报警系统图上线型K为WDZBN-KYJY-7*1.5,而线型图例上K未WDZBN-KYJY-3*1.5,请明确?


答::WDZBN-KYJY-3*1.5。
73. 如下图所示:人防地下室给排水平时设计及施工说明中对于喷淋管道的连接方式有两种说法,请明确以哪个为准?


答:自喷管道,当管径小于等于DN50时,应采用螺纹和卡压连接,当管径大于DN50时,应采用沟槽连接件连接、法兰连接。
74. 如下图所示:4.20日答疑回复战时地库暖通仅计预埋,设计说明中战时也需安装到位,请明确该部分内容是否在本次招标范围?还是以后在防化设备里面单独招标?


答:在以后防化设备里单独招标。
75. 如下图所示:4.20日答疑回复战时给排水仅计预埋,图纸说明与原理图下面的注1说明不一致,战时给水管道(比如:箭头所指管道)是否在本次招标范围?
![]()



答:战时使用的给水引入管(防护密闭套管和阀门)、口部的冲洗龙头(防护套管密闭和阀门)、电站内的给排水管线、平时均应安装到位,其余给水管平时不安装(如箭头处)。
76. 如下图所示:挡烟垂壁的高度是多少,请明确?

答:此处挡烟垂壁高度为1.65米。
77. 人防地下室火灾报警系统图上有三个火灾显示盘,平面图未找到,该部分是否按照系统图计入?
答:按照系统图计入。
78. 室外弱电消防排管规格图纸未标注,请明确?
答:采用七孔梅花管DN32。
79. 请提供配电房低压柜出线至各单体的电缆及配管路径图。
回复:由当地电力设计院设计。
80. 请提供室外消防杆线总图。
回复:第二次答疑的时候,已经提供消防弱电干线图。
81. 请提供从消控室至每个单体应急照明分配电箱的配线配管路径图。
回复:路径图同消防弱电干线图。

82. 请明确上图中桥架的型号及规格。
回复:300x150mm。
83. 5#-1AK-8AK配电箱WP1支路辅房排风机磁力启动器无平面图,请明确。
回复:此回路是卫生间的大功率排风机用。
84. 5#-2AP-8AP配电箱WS2支路茶水间电源箱CZX无平面图,请明确。
回复:此回路需要设置,为大功率开水机用。
85. 请明确5#-AP-KT1~3配电箱的进线是否在本次招标范围内。
回复:不在本次招标范围内。
86. 请明确5#APE1、2配电箱WPE3~7支路配管的型号及规格。
回复:WPE3/WPE7回路为SC32,WPE4~WPE6回路为SC40.
三、附件
答疑发布日期:2020年05月12日