您现在的位置: 首页 >> 答疑变更 >> 安徽公共资源交易集团项目管理有限公司 >> 工程
一、原公告主要信息
原项目名称: 新站高新区淮海大道(新蚌埠路-文忠路)绿线绿化及淮海大道(前岭路-毕昇路)污水管道修复工程
原项目编号: 2020BFXGZ00720
原公告日期: 2020年06月30日
二、公告内容(更正事项、内容及日期等)
新站高新区淮海大道(新蚌埠路-文忠路)绿线绿化及淮海大道(前岭路-毕昇路)污水管道修复工程
招标文件补疑1
(项目编号:2020BFXGZ00720 )
各投标人:
重要提示
1、人工费执行《关于贯彻执行2018版安徽省建设工程计价依据的通知》(合造价【2018】13号文)。其中定额人工费参与取费、取税,其相对于定额人工费增加的部分 / 元只计取税金。
2、本工程取费按“ 园林绿化 工程取费标准”中“ 绿化、景观工程 ”的费率计取。其中土石方工程,其企业管理费率8%、利润率8%,措施项目费率和不可竞争费率按园林绿化工程相应费率乘0.6系数。
按业主要求,现对本项目招标工程量清单、最高投标限价编制作出如下补充:
第一部分:招标需求
一、招标范围:
本项目分为一个标段,招标范围西起新蚌埠路,东至文忠路,全长4910米,两侧绿线各宽20米。主要建设内容为20米宽绿线范围内绿化栽植、移植、养护;园路铺装;景观小品;庭院灯安装;淮海大道(前岭路-毕昇路)污水管道修复等。单位工程包括:
(一)大型土石方工程:包括种植土换填、改良;绿地堆坡造型、多余土方外运;污水修复工程土方开挖、回填等内容。
(二)绿化景观工程:包括绿化栽植、移植、养护;园路铺装;景观小品等内容。
(三)污水修复工程:包括管道铺设、顶管、接收井、工作井、中间井等内容。
(四)室外照明工程:包括电气管线敷设、庭院灯安装等内容。
二、暂定项目:
(一)以下项目按照业主要求,以暂定工程量计入分部分项工程量清单,投标人综合考虑报价,标后按实际工程量结算。
无
(二)按照业主要求,暂列金额 400 万元,计入绿化景观工程其他项目中,投标人应按招标人所列的金额计入投标总价。
三、按项列入清单的内容,标后不予调整:
以下项目按照业主要求,按项计入,投标人自行踏勘现场,综合考虑报价,中标后不予调整。
1、施工时对已有的道路、绿化、综合管线等拆除:本项目在施工过程中可能涉及到的所有拆除工程,包含但不限于现状老路、铺装、侧石、绿化、杆管线、围墙、房屋、设施基础、因拆除引起的或沿线单位弃置的建筑垃圾和生活垃圾等清理外运,按1项列入绿化景观工程分部分项清单中。
2、施工排水、降水、施工导流:包括沉井井外降水,绿化工程及污水修复工程等施工现场排水,降水。同时施工时需采取导流措施,保证既有管道污水排放。按1项列入绿化景观工程分部分项清单中。
3、现状杆管线迁移及保护:周边供水、供电、排水、燃气、弱电等线路多且复杂,投标前需仔细勘察,做好相应的保护方案,施工过程中注意查明现状各类地下管线位置,避免影响施工,对施工范围内现状杆管线进行迁移及保护,按1项列入绿化景观工程分部分项清单中。
4、绿化迁移及恢复:对施工范围内的现状苗木进行迁移及恢复,按1项分别列入污水修复工程、室外照明工程分部分项清单中。
四、补充图纸及修改图纸的说明:
本工程在第一次发放图纸后,6月22日重新发布图纸,以6月22日重新发布的图纸为准。
五、总承包服务费:
无
六、业主的其他要求及提示:
1、该项目控制价中土方运距按20km计入,实际弃土运距、弃土点及外借土运距、借土点(包括取土场清表、便道、取弃土点平整、保洁费、运输通道等)等由投标人自行踏勘现场,综合考虑,自行报价,含渣土费、土源费、市容部门办理证照等所有相关费用,中标后不再作签证调整,并确保验收移交。场内外多余弃土、建筑垃圾等须及时清运,不得堆放于施工现场,做到工完料清,余土外弃必须运出项目用地范围3km之外的弃土场,同时必须满足合肥市文明创建及防治扬尘污染相关规定。
2、淮海大道增加两道过路管道非开挖修复,位置①淮海大道(荆山路~大禹路)之间,168中学门口现状d500过路污水管,管道长度约55米,位置②淮海大道与前岭路交口现状d700过路污水管,管道长度约50米。采用碎管法非开挖修复,对此两段管道进行更换,管材采用PE材质,更新管道的标准尺寸比(内径/壁厚)应小于17。其余应符合《城镇排水管道非开挖修复更新工程技术规程 CJJ/T210-2014》的要求。工程量:碎管法非开挖修复,DN560为55米;DN800为50米;具体施工点位与要求应以业主确定为准,施工完成后应根据情况对管道与土壤缝隙进行注浆加固,确保管道与道路安全,施工前及完成后均应进行CCTV检测,确定管道状况,费用中应包括污水封堵、导流等一切措施费用。
3、淮海大道道路中央绿化带增加1050m2爬藤月季,规格同工程数量表中爬藤月季的规格。
4、园路、休闲广场铺装面层仿石砖规格改为300mm*600mm*60mm。
5、排水工程施工一段检测一段,中标人需委托专业公司,对完工管道进行成像检测(采用管道机器人、电法测漏仪、声呐检测成像系统、潜望镜QV成像检测系统等检测设备)并提供成套影像资料,作为验收和移交的附件资料(排水工程需满足合肥市排水导则及网格化普查等有关要求)。因上述要求所产生的费用,投标人须详细了解合肥市有关规定,综合考虑在报价中,清单不再单独列项,中标后不予调整。
6、设计范围内保留的与设计路段衔接的现状排水管(涵),排水检查井等相关排水设施均需疏通、清淤,投标人自行勘察现场,综合考虑在报价中,清单不再单独列项,中标后不予调整,并确保验收移交。
7、为确保施工及周边环境的安全,需对施工影响范围内的建、构筑物等进行沉降、变形监测,沉降、变形监测需委托有相关资质的单位实施,定期出具监测报告,监测费用投标人应根据施工方案及现场情况计算,上述所产生的费用,投标人综合考虑在报价中,清单不再单独列项,中标后不予调整。
8、临时交通组织设施:施工过程中做好行人、社会车辆的通行、交通警示、疏导工作,在相关路口须按道路交通主管部门的要求设立警示牌、导向牌、公示牌、太阳能信号灯、临时照明等,包含封路、安排专人进行交通疏导(人员数量及相关要求按照道路交通主管部门要求为准)等,该项清单中不单独列项,投标人自行踏勘现场,结合图纸,综合考虑在投标报价内,中标后不予调整。
9、新建管道与现状管道连接要考虑现状管网的通水状态,采取措施确保管道通水并安全接入,投标人自行勘察现场,综合考虑在报价中,清单不再单独列项,中标后不予调整,并确保验收移交。
10、临时水电接引:本工程不提供施工用水、电接引,投标人自行勘察现场,综合考虑在报价中,清单不再单独列项,中标后不予调整,并确保验收移交。
第二部分:设计文件及技术补充说明
绿化景观工程
1、 平面图中标注的苗木数量与工程数量表中数量不一致,以哪个为准?
答:以工程数量表中数量为准。
2、 不符合种植土要求的土壤更换数量81635m3中是否已包含微地形土方量51831m3?
答:不符合种植土要求的土壤更换数量改为29497m3,不包含微地形土方量。
3、 工程数量表中泥炭土数量为48981m3是否有误?
答:所有绿化区域内洒15cm泥炭土与现状土拌合均匀,拌合深度30cm。泥炭土数量改为22280.25m3。
4、 请明确养护等级及养护期。
答:养护等级二级,成活养护期三个月,保存期养护及日常养护合计1年,投标人自行考虑报价,后期不得调整。
5、 工程数量表中有多项按暂定量计入,清单控制价是否按数量表中数量以暂定量计入?
答:不以暂定量计入,种植土换填数量按29497m3计算,其余按照工程数量表中数量计入清单控制价。
6、 园林15-1-1图纸说明中遇软弱土、膨胀土段采用灰土换填并设置防渗膜,本次招标是否考虑?
答:不考虑。
7、 园林23-1-1图纸非机动停车场是否考虑划车位线?
答:非机动停车场采用热熔标线涂料划车位线,尺寸为2m*0.9m,线宽10cm。
8、 桩号46+00处南侧
是否为树凳座椅?
答:该处为文忠苑现状花坛。
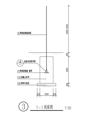
9、 耐候钢景墙碎石垫层宽度是多少?
答:尺寸详见下图:

10、 工程数量表中第85项花岗岩铺装在图纸中哪些部位?
答:花岗岩铺装包括淮海大道(新蚌埠路-荆山路)北侧绿线内铺装及台阶、淮海大道-新蚌埠路交口游园(东南交口)(因增设台阶破除和恢复的工程量)以及陶冲湖公园入口广场等,具体位置见下图,总面积为2310平方米。

11、 现状乔木移植、养护的苗木规格为多少?
答:现状乔木移植、养护的苗木规格为胸径20cm以下。
12、 请给出工程数量表中第96、97项排水管的基础做法,砼包管做法。
答:第96、97项排水管均采用C25砼包管,如下图:

13、 平面图中
雨水井是新建还是现状保留?
答:利用现状保留雨水井。
污水修复工程
1、沥青道路破复及接头做法是否均参考非机动车道路面结构示意图做法?
答:位于辅道上的沉井参考非机动车道道路结构断面做法,位于主道上的沉井路面破复做法如下,面积各110m2:

2、请给出路面结构示意图中粘层、透层、下封层的做法。
答:(1)透层
根据《公路沥青路面施工技术规范》JTG F40-2004在水泥稳定碎石基层上必须喷洒透层油,透层油采用慢裂乳化沥青(PC-2)。透层油在基层养生具有一定的强度后,采用智能沥青洒布车喷洒。用量控制在0.7~1.5L/m2的范围内(包括稀释剂和水分等在内的乳化沥青总量,乳化沥青中的残留物含量以50%为基准)。乳化沥青的技术要求见下表。
喷洒透层前,路面应清扫干净,对路缘石及人工构造物应遮挡防护,以防污染。如遇大风或即将降雨时,不得喷洒。气温低于10℃,不宜浇洒透层油。应按确定的用量一次性浇洒均匀,当有遗漏时,应用人工补洒。喷洒透层油后,严禁车辆、行人通过。在铺筑下封层前,若局部地方尚有多余的透层沥青未渗入基层时,应予清除。
在基层上浇洒透层沥青后,为保护透油不被运输车轮破坏,可立即撒布用量为2~3m3/1000m2的石屑。当不能及时铺筑面层,并需开放施工车辆通行时,撒布石屑后应用6~8t钢筒式压路机稳压一遍。通行车辆应控制车速(小于5Km/小时),不得刹车和调头。铺筑沥青下封层前如发现局部地方透层油剥落,应予修补;有多余的浮动石屑,应予扫除。透层油洒布后应尽早铺筑下封层。
封层、透层、粘层乳化石油沥青的技术要求
试 验 项 目 透层(PC-2) 下封层、粘层PCR
破乳速度试验 慢裂 快裂
粒子电荷 阳离子(+)
筛上剩余量(%) 不大于 0.1 0.1
粘度 道路标准粘度计C25,3(s) 8~20 8~25
恩格拉度E25 1~6 1~10
蒸发残留物性质 含量(%) 不小于 50 50
针入度(25℃,100g,5s) (0.1mm) 50~300 40~120
残留延度15℃(cm) 不小于 40 -
残留延度5℃(cm) 不小于 - 20
软化点℃ 不小于 - 50
溶解度(%) 不小于 97.5 97.5
贮存稳定性 5d (%) 不大于 5 5
1d (%) 不大于 1 1
与矿料的粘附性裹附面积 不小于 2/3 2/3
(2)封层
合肥市属多雨潮湿地区,为防止雨水下渗到基层以下;保护基层不被施工车辆破坏,在洒透层油后,应及时铺筑下封层。下封层采用改性乳化沥青表面处治,采用智能洒布车喷洒PCR改性乳化沥青,技术要求见上表所示,数量按纯沥青量0.5~0.7kg/m2控制。下封层的厚度不宜小于6mm,且做到完全密水。当封层改性乳化沥青喷洒后,立即用集料撒布机撒布集料,数量按3~5m3/1000m2控制,粒径为5~7mm,其级配见下表。
改性乳化沥青表面处治下封层矿料级配(方孔筛)
筛孔尺寸(mm) 9.5 4.75 2.36 1.18 0.6 0.3 0.15 0.075
通过率(%) 100 95~100 65~90 45~70 30~50 18~30 10~21 5~15
(3)粘层
路缘石、雨水口等构筑物与新铺沥青混合料路面接触部分,必须涂刷粘层油。
在热拌热铺沥青混合料路面的沥青层之间必须喷洒粘层油,粘层采用阳离子改性乳化沥青(PCR)。用量宜为0.3~0.6L/m2。粘层油应采用智能沥青洒布车喷洒,并选择适宜的喷嘴,气温低于10℃时,不得喷洒粘层油,当路面潮湿时亦不得喷洒粘层油。路面上有脏物、尘土时应清除干净,当有沾粘的土块时,应用水洗刷后需待表面干燥后喷洒。喷洒的粘层油必须成均匀雾状,在路面全宽度内均匀分布成一薄层,不得有洒花漏空或成条带状,也不得有堆积。喷洒不足的应补洒,过量处应刮除。喷洒粘层油后,严禁运料车外的其他车辆和行人通过。粘层油宜在当天洒布,待乳化沥青破乳、水分蒸发完成后,紧跟着铺设沥青层,确保粘层不受污染。
3、工程数量表中第6项顶管工作井尺寸6500mm*4500mm是否有误?
答:是,内径应为5500mm*3500mm。
4、结构-18图纸中
340*300圈梁M10水泥砂浆砌筑是否有误?泄水管的布置间距及长度是多少?
答:圈梁为钢筋砼,泄水管间距@2000mm,长度为壁厚+50mm。
5、结构-20图纸中管道下压密注浆区域长度、高度尺寸不明。

答:尺寸详见下图:


6、图纸说明中Φ4500砖砌倒挂井适用于北污8、南污14?平面图中无南污14,请复核。
答:Φ4500砖砌倒挂井适用南污13和北污9。北污8为Φ6000顶管工作井。
室外照明工程
1、图中穿过淮海大道部分的管道是否按图计入?
回复:穿淮海大道过路管采用高密度聚乙烯双壁波纹管(HDPE)拉管施工,管径为De110;并取消原图纸侧分带中的手井。
注:此补疑视同招标文件的组成部分,与招标文件具有同等法律效力。
2020年6月30日
三、附件
答疑发布日期:2020年06月30日