您现在的位置: 首页 >> 答疑变更 >> 安徽公共资源交易集团项目管理有限公司 >> 工程
一、原公告主要信息
原项目名称: 涡阳县天静宫街道初中工程
原项目编号: 2020BFWGZ02067
原公告日期: 2020年09月03日
二、公告内容(更正事项、内容及日期等)
涡阳县天静宫街道初中工程
招标文件补疑1
(项目标段编号:2020BFWGZ02067)
各投标人:
重要提示
1、人工费执行安徽省住房城乡建设厅《关于发布2018版计价依据的通知》(建标【2017】191号文)。其中定额人工费参与取费、取税,其相对于定额人工费增加的部分 0 元只计取税金。
2、本工程取费按“建筑工程取费标准”中“民用建筑”的费率计取;“安装工程取费标准”中“工业管道、通风空调、给排水、采暖、燃气、消防工程;电气设备、自动化控制仪表、建筑智能化工程”的费率计取;“市政工程取费标准”中“道路、排水、桥涵工程”的费率计取;“园林工程取费标准”中“绿化、景观工程”的费率计取;其中房屋建筑、市政工程中挖或填土石方量大于5000m3的大型土石方工程,其企业管理费率8%、利润率8%。
按业主要求,现对本项目招标工程量清单、最高投标限价编制作出如下补充:
第一部分 招标需求
一、招标范围
(一)建筑工程
房建专业: 本项目分为一个标段,其中包含教学楼A区、教学楼BC区、男生宿舍、女生宿舍、综合楼、风雨操场及食堂、门卫、操场看台、景观绿化、室外排水、室外安装。除特殊说明外,图纸设计范围内的所有内容,均按图计入。
(一)建筑工程
1、土建工程:土石方工程、基础工程、主体结构工程、二次结构工程、砌体工程、屋面、建筑节能及绿色建筑工程、无障碍设施、散水、出入口台阶、钢结构雨棚、操场看台钢膜结构等按图纸相关设计计入。
2、装饰工程:室内外门窗工程、外墙面、幕墙工程;户内装修包含户内墙面、地面及天棚的装修饰面;公共部位的内墙面、地面及天棚的装修饰面等按图纸相关设计计入,操场看台地面及墙面装修饰面。
(二)安装工程
1、强电工程:自第一个配电箱后计起(含配电箱),箱前计预埋保护管(室外有强电手井,算至强电手井,不含井;无井的算至出外墙1.5米处。)、套管;防雷接地系统按图计入;
2、弱电工程:弱电部分(综合布线系统(网络、语音)、教学广播系统、IP网络电视系统、视频监控系统)仅计预留预埋配管、接线盒。
3、消防工程:火灾自动报警、消防控制室设备、消防报警及系统联动系统图、消防电源监控系统、电气火灾监控系统、防火门监控系统、气体灭火系统、喷淋系统、排污泵系统、消火栓系统(含消防泵房)按图计入。
4、给排水工程:单体给水系统、污废水系统、雨水系统、冷凝水系统、外廊排水系统按照图纸设计全部计入;太阳能热水系统按照图纸设计计入。
5、暖通工程:按图纸设计全部计入。
6、卫生洁具:卫生洁具按照图纸设计全部计入。
7、电梯:按图计入。
(三)室外总体及附属工程
1、道排工程:道路、雨污水系统、各类检查井、各类池槽、化粪池按图计入本次招标范围。
2、室外给水工程:生活给水系统按图算至市政给水处,含与市政给水碰头及与单体系统连接;消防给水按图计入本次招标范围。
3、室外电工程:景观照明和充电桩系统从配电箱后计入本次招标范围(含配电箱)。
3、室外弱电工程:本次仅计入预埋管道、井。
4、室外园林景观工程:图纸设计范围内的所有内容,均按图计入。
5、绿化工程:图纸设计范围内的所有内容,均按图计入。
二、暂定项目:
(一)以下项目按照业主要求,以暂定工程量计入分部分项工程量清单,投标人综合考虑报价,标后按实际工程量结算。
1、砂垫层暂定量100m3计入室外安装工程(安装)分部分项工程量清单中;
2、挖一般土方(场地现状挖土方)暂定量5000m3计入土方工程(土建)分部分项工程量清单中;
3、余方弃置(场地现状挖土方)暂定量5000m3计入土方工程(土建)分部分项工程量清单中;
4、挖一般土方(场地现状回填土方)暂定量1000m3计入土方工程(土建)分部分项工程量清单中;
5、机械运土方(场地现状回填土方)暂定量1000m3计入土方工程(土建)分部分项工程量清单中;
6、回填方(场地现状回填土方)暂定量1000m3计入土方工程(土建)分部分项工程量清单中。
其中第2至6条的暂定量为场地现状标高至各单体及室外图纸设计标高的土方挖填。
(二)以下项目按照业主要求,暂列金额为0元。
(三)执行暂估价的材料、设备、专业工程及其金额如下:
1、风雨操场中的篮球场成品座椅按暂定价320元/套,计入风雨操场(土建)分部分项工程量清单中。
2、风雨操场中的篮球场标志标线按暂定价10000元一项,计入风雨操场(土建)分部分项工程量清单中。
3、风雨操场、室外的篮球场中的篮球架按暂定价12000元/个,计入风雨操场(土建)、景观绿化工程(园林)分部分项工程量清单中。
4、风雨操场、室外的乒乓球场地中的乒乓球台按暂定价6000元/座,计入风雨操场(土建)、景观绿化工程(园林)分部分项工程量清单中。
5、室外足球场中的足球门按暂定价5000元/座,计入景观绿化工程(园林)分部分项工程量清单中。
6、室外羽毛球球、排球场中的羽毛球/排球网柱按暂定价1000元/套,计入景观绿化工程(园林)分部分项工程量清单中。
7、室外杠杆区中的双间肋木按暂定价4000元/座,计入景观绿化工程(园林)分部分项工程量清单中。
8、室外杠杆区中的高低三位单杠按暂定价5000元/座,计入景观绿化工程(园林)分部分项工程量清单中。
9、室外杠杆区中的双杠按暂定价2500元/座,计入景观绿化工程(园林)分部分项工程量清单中。
10、室外运动场等标志标线按暂定价100000元一项,计入景观绿化工程(园林)分部分项工程量清单中。
11、风雨操场成品字按暂定价300元/个,计入风雨操场(土建)分部分项工程量清单中。
12、综合楼成品字按暂定价500元/个,计入综合楼(土建)分部分项工程量清单中。
13、门卫一、门卫二成品电动伸缩门按暂定价14000元/套,计入门卫一(土建)分部分项工程量清单中。
以上暂定价均为综合单价。
三、按项列入清单.措施费的内容,中标后不予调整:
以下项目按照业主要求,按项计入工程量清单,投标人综合考虑,自行报价,标后不予调整:
1、高大模板:投标单位自行深化设计论证高大模板方案,投标单位根据图纸资料、招标文件和施工规范等资料,充分考虑,一次性报价,中标后不得调整,该费用按一项10万元计入风雨操场(土建)分部分项工程量清单中。
2、垃圾清除及外运:施工范围内地上建筑物、建筑垃圾、及地下不明障碍物清除及外运;施工范围内苗木移植,杂草枯枝、乔灌木(苗)、水生植物、地被植物、色带、草坪等清理;施工范围内现状非供电产权的杆线迁移费用;建筑垃圾(含现场拆除物)、生活垃圾(稻壳),含建筑垃圾(施工)处理费等。该费用按一项 40万元 列入土方工程(土建)单位工程分部分项清单中。投标人自行踏勘现场,综合考虑报价,标后不予调整。
3、临时水电接引:投标人需自行向供电部门申请基建电的设计安装事宜,确定下火点,采用YJV22-8.5/15KV-3*95电缆,现场安装两台不小于400kva基建变压器,沿途所有设施的破除及恢复,做好相应的高压防护措施等所有工作;临时用水费含市政管网引至施工点的管道、计量表安装及开户等所有费用;工程完工后,水电设施应在发包人要求的时限内无条件完成拆除、清运并确保移交验收。该费用按一项 40万元 列入土方工程(土建)单位工程分部分项清单中。投标人自行踏勘现场,综合考虑报价,标后不予调整。
4、地下管线保护:对施工范围内不可预见的各类地下(含各类井)进行保护,现状检查井升降等,该费用按一项 5万元 列入土方工程(土建)单位工程分部分项清单中。投标人自行踏勘现场,综合考虑报价,标后不予调整。
5、道路接头、协调及处理:市政道路开道口和小区出入口道路接头、新老路面衔接,含场地内沥青道路搭接,协调及处理等,确保道路顺接,该费用按一项10万元列入土方工程(土建)及单位工程分部分项清单中。投标人自行踏勘现场,综合考虑报价,标后不予调整。
6、新旧管网对接费:对施工范围内新旧管网连接接入市政并保护修复等费用。该费用按一项 10万元 列入土方工程(土建)单位工程分部分项清单中。投标人自行踏勘现场,综合考虑报价,标后不予调整。
7、建筑垃圾(施工)处理费:投标人必须按照涡政(2008)76号文件《涡阳县城市生活垃圾处理费征收管理办法》第十八条规定,缴纳相关费用至主管部门。控制价中按1.8元/m2计入;该费用按一项 98784元 列入土方工程(土建)单位工程分部分项清单中。投标人自行踏勘现场,综合考虑报价,标后不予调整。
8、给水管道市政搭接费用:2处给水管道接入市政官网,包括给水管道、碰头、挖土方、填方、余方弃置、道路绿化破除恢复、与相关部门协调等全部费用。该费用按一项5万元列入室外安装工程(安装)单位工程分部分项清单中。投标人自行勘察现场,综合考虑报价,中标后不予调整。
9、抗震支架制作安装:包含本项目各单体内风、水、电、动力各专业所涉及到的所有抗震支架,满足《建筑机电工程抗震设计规范》GB50981-2014;控制价中按30元/m2计入;该费用按一项分别计入各单体安装工程分部分项工程量清单中,投标人综合考虑,自行报价,标后不予调整。
10、室内环境检测费:需确保验收合格,控制价中按3元/m2计入;该费用按一项项分别计入各单体土建工程分部分项工程量清单中,投标人综合考虑,自行报价,标后不予调整。
11、沉降观测费:需确保验收合格,控制价按一项分别计入各单体土建工程分部分项工程量清单中,投标人综合考虑,自行报价,标后不予调整。
四.补充图纸及修改图纸的说明:具体详见图纸目录。
五.总承包服务费(总承包配合费):无
六、温馨提示:投标人投标报价还须仔细阅读本项目招标文件,慎重报价。
第二部分 设计文件及技术补充说明
一.土方工程
1、施工范围内土方的挖、填、运等须参考各施工图纸及现场实际情况,涉及费用及工程量在土方工程中充分考虑。施工现场不得堆土。多余土方、淤泥、排水、植被、建筑垃圾等须外运至招标人指定的弃土点(如招标人没有指定的弃土点,投标人自行解决)。若需外借土方,自行解决取土点,回填土质须满足施工图纸设计及相关规范要求。投标人须自行踏勘现场,根据现场实际情况,自行考虑各方面因素后审慎报价,综合报价应考虑土方施工中的运距、渣土费、弃土场、弃土点的平整、渣土运输清理费、降排水、外购土方费用、保洁费、办证、现场苗木、建筑垃圾等杂物的清理及其他可能发生的一切费用由投标单位勘察现场后自行考虑,中标后量、价均不予调整。本次最高限价编制土方运距按5KM考虑。
2、各单体结构说明中,基础两侧应采用粘性土或砂土分层回填夯实至设计地面,以哪个为准?请明确。
答:采用粘性土回填
二.共性问题
(一)土建工程
1、砖砌墙体材料是否以建筑图为准?
答:是。
2、请明确滴水线的材质。
答:粉出滴水线。
3、建筑说明中架空层保温板下侧需加设一层抗裂砂浆复合热镀锌电焊网8厚(用塑料锚栓双向@500固定),装修表中为碱玻纤网格布,是否以装修表为准?请明确。
答:是,以装修表为准。
4、建筑总说明做法和建筑构造做法表不一致的,是否以建筑构造做法表为准
答:是。
5、结构设计总说明中描述
,请明确具体需要涂抹沥青砂浆的部位。
答:此条取消不做。
(二)安装工程
1、请明确下图箭头所指构件名称是否计入,若计入,请提供相关参数。

答:大风力吊顶风扇,220V,功率约40W。
2、请明确局部等电位安装图集及页数。
答:参图集(15D501-2)P15。
3、如下图所示,箭头所指图例安装高度?请明确?



答:插座面板高度为+0.3m,摄像头吸顶安装,扩音器为黑板上方300安装。
4、如下图所示,箭头所指配管规格型号?请明确?

答:pc25,WC,CC。
6、如下图所示,箭头所指PVC管的规格型号?请明确?
![]()
答:PC32。
7、埋地出户的污水排水管及负一层排水横管采用柔性机制排水铸铁管与PVC-U的分界点在哪里,请明确?
答:埋地出户的污水排水管及负一层排水横管均用硬聚氯乙烯(PVC-U)管。
8、请明确UPVC排水立管管径等于或大于110mm时,立管穿越楼层处是设置阻火圈还是防火套管?
答:阻火圈。
9、如下图所示,箭头所指是否需沿墙开槽?请明确?

答:竖管沿墙开槽,横管不需。
10、如下图所示未见设计及管线,请补充图纸?
![说明: RBXH)UQ@2X]4`K`_}DNZ5BJ](/uploadfile/6f30503a-507a-4871-90cc-cc2f778aa5b4/20200904170504851011.jpg)
答:感应冲洗阀采用电池供电与设备成套。
11、请明确消火栓内磷酸铵盐手提式灭火器MF/ABC3型(3Kg)几具?
答:2具磷酸铵盐手提式灭火器MF/ABC3型(3Kg)。
12、请明确消防管阀门是明杆闸阀还是蝶阀,材质连接方式?
答:蝶阀,球墨铸铁、法兰连接。
13、如下图所示,箭头所指无图例,请明确名称、材质及连接方式?

答:不锈钢软管,法兰连接。
14、如下图所示,给水阀门系统图与平面图不一致请明确以那个为准?

答:以系统图为准。
三.个性问题
男、女生宿舍楼
1、请明确此处100厚混凝土板指的是否是空调板?

答:此处100厚混凝土为造型柱做法,100厚为竖板厚度,高度为当前层高。
2、屋顶梁KL3,图纸说明中为在16-17轴线打断,但水箱基础是在13-14轴线,请明确是否打断位置有误?

答:图纸说明中打断位置为笔误,图中L6(1)和KL3(9)位于13~14轴线之间的跨度,梁上翻,梁底同板底标高。
3、此处保温节点是否为100mm煤矸石空心砖?

答:100混凝土板。
4、在墙身大样图未见高矮墙具体做法。

答:1800矮墙为内衬砌体墙。
5、请明确阳台墙裙面砖、 地砖规格?
答:500x500mm。
6、请明确隔断的具体做法、高度?
答:见02J915 39页型号GB11a 宽500 高1700,18mm厚复合板
7、请明确小便槽参照02J915第71页的哪一种做法?并且是水磨石隔断还是混凝土隔断?
答:混凝土隔断。
8、阳台栏板在建筑图中为1250mm高,但是在结构图中为1130mm,请明确以那副图纸为准?
答:阳台栏板高度以建筑为准,高度为1250mm。
9、阳台栏板在墙身大样图中为150mm宽,但在平面图中只有80mm宽,请明确插入点以什么地方为准?

答:150宽,沿轴线插入
10、请明确下图图例标注的是什么?

答:真石漆。
11、请明确防火门是否全部为钢质防火门?
答:钢制防火门。
12、请明确C1418应该布置在什么部位?

答:无此窗。
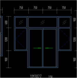
13、此处已有YM3027门,请明确应怎么设置JYC1418?

答:此处推拉门M1621,在做JYC1418。
14、请明确门窗表中次处编号是什么?

答:C1812。
15、请明确C2721具体规格型号及材料种类?

答:铝合金普通中空玻璃窗(6+12A+6)。
16、檐口大样图中,在建筑图中檐口节点大样图中高度为1.4m,在结构图中为1.6m,请明确以哪幅图纸为准?

答:檐口高度以结构为准,高度为1600mm。
17、结构柱位置与建筑柱位置不同,请明确以那副图纸为准?
答:以结施柱定位为准,建筑图柱位置为示意。
18、在屋面楼梯间,窗C1612位置与结构柱位置重叠,请明确以哪副图纸为准?
答:以结构为准,窗C1612位置相应平移避开结构柱。
19、结构图中无阳台栏杆基础混凝土节点做法。

答:阳台栏杆基础为素混凝土,混凝土等级同本层楼板。
20、请明确卫生间地面20厚1:3水泥砂浆找平或最薄处30厚C20细石混凝土向地漏找平,使用哪一种做法?
答:30厚C20细石混凝土。
21、请明确踢脚线、墙裙是釉面砖还是通体砖?
答:釉面砖。
22、请明确男浴室、更衣室、盥洗室装饰做法是否同卫生间做法?
答:同卫生间做法。
23、请明确电井与配电间内墙与天棚、踢脚线等装饰做法?
答:内墙:5厚1:2.5水泥砂浆磨平
9厚1:3水泥砂浆打底扫毛
素水泥浆结合层一道内掺3%108胶
混凝土与砖墙连接处钉钢丝网(宽度200)
顶棚:3厚1:2.5水泥砂浆找平
5厚1:3水泥砂浆打底
素水泥浆结合层一道,内掺3%108胶
混凝土结构基层打磨、修补平整。
24、请明确空调栏杆具体壁厚。
答:100X100X2mm铝合金方管,横杆间距100mm。立杆间距1000mm。
25、请明确更衣室外栏杆是否同空调栏杆?
答:是。
26、建筑在公共卫生间处有1.4m、1.8m、1m高矮墙,但是在墙身大样图中未见,并且墙身大样图中为栏杆,请明确以什么部位为准?

答:卫生间部分矮墙均为1.8m煤矸石烧结空心砖。
27、请明确屋面防水上翻高度?
答:见所引用图集。
28、请明确此处装饰做法是否同楼梯间?

答:是。
29、请明确值班室内装饰做法?
答:同宿舍做法。
30、请明确阳台栏板,装饰做法是按照墙裙做法还是外墙装饰做法?

答:墙裙做法。
31、请明确此处房间是否参照走廊?

答:参照走廊。
32、此墙体在结构图中无,请明确此处是否为混凝土墙体?高度是否同楼层。

答:砖砌墙体,高度同楼层。
33、请明确盲道砖及垫层做法。
答:计入。做法参03J926第152页,材质为陶瓷地砖。
34、请明确护窗栏杆做法是否同楼梯间护窗栏杆做法?
答:是。
35、卫生间大便槽无做法,请明确具体做法。
答:大便槽详见02J915第82页,隔断参考宿舍楼隔断02J915第39页型号GB11a宽500mm,高1700mm,18mm厚复合板。装修参见下图。(砌体采用烧结实心砖)。

操场看台
1、在建筑说明中煤矸石烧结多孔砖墙厚为200mm,但是在平面图中,为240mm,请明确以哪一种厚度为准?
答:煤矸石烧结多孔砖墙厚为200mm。
2、请明确此处节点做法?

答:此处为素混凝土翻边,混凝土等级同梁板。
3、请明确XG2的100*100钢方管厚度。
答:4mm
4、请明确钢结构防火涂料的颜色。
答:白色。
5、在图纸中白色膜结构是否使用进口材料?
答:否。
6、请明确此处台阶具体做法?

答:砖砌台阶,砖种类同墙体材料。
7、请明确外墙是采用热镀锌电焊网还是使用加强型耐碱玻璃网格布?
答:按建筑说明。
8、操场看台墙体钢丝网建筑图与结构图说明不同,以哪副图纸为准?

![]()
答:以建筑为准。
9、建筑图说明中的钢丝网,是否以此规格为准“镀锌铁丝网抹灰进行处理(眼目规格不大于20x20,钢丝直径不小于1.0)”?
答:可以。
10、墙体材料是否以建筑图为准?
答:以建筑为准。
11、除主席台外看台所有楼面做法是否同外墙真石漆做法?

答:见立面标注。
12、看台是否仅外围一圈柱子需进行真石漆装修?

答:看台背面柱、梁需进行真石漆装修,底面不用粉刷。
14、请明确基座是采用C30无收缩细石混凝土还是铁屑砂浆?
答:C30无收缩细石混凝土。
教学楼A区
1、教学楼乙级防火门是钢制的还是木质的?请明确。
答:钢制。
2、教学楼A区结构标高与建筑标高不符,以哪个为准?请明确。


答:以建筑为准。
3、生物实验室、器材室、准备室、化学实验室、器材室、医务室、校史展览室、资料室、教具存放室装修做法是否同教室做法?请明确。答:同教室做法。
4、开水间是否同卫生间做法?请明确。
答:是。
5、平面图中保温与非保温外墙是否以红色与白色线条划分?请明确。(其中有的内墙为红色线条,有的外墙为白色线条)
答:按颜色划分。
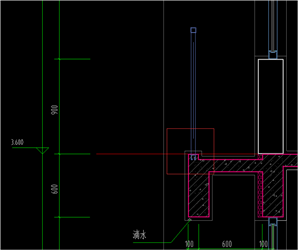
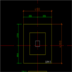
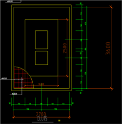
6、基础平面图中7轴交F轴DJPM-15尺寸与大样对不上,请明确。


答:参见DJJ13,尺寸见平面图2050x2050,把DJJ13的第一个台阶改为900.
7、如图所示,100厚混凝土墙的混凝土强度是多少?是否含钢筋?请明确。

答:按200厚填充墙计入.
8、如图所示标注是否有误,是否为16页3节点?请明确。

答:见下图
。
9、建筑与结构栏板不一致,以哪个为准?请明确。


答:栏板高度按建筑1200mm,宽度按结构130mm,一层栏板伸入地下-0.8m位置,配筋参考结构。
10、基础梁中有部分梁悬空,是否有误?请明确。
答:主次梁高差悬空部分设混凝土梁垫,宽度同主梁,长度同次梁出边50mm,混凝土强度同梁。
11、储藏室的门大小、材质如何?请明确,并提供装修做法。

答:普通门2100高,普通木门,装修同所在教室做法。
12、结构说明中不同材料交接处内、外墙均设热镀锌电焊网(直径不小于1mm)或加强型耐碱玻璃网格布,内墙每边不应小于150mm,外墙每边不应小于250mm;建筑说明中外墙设300mm宽镀锌铁丝网,内墙300mm宽耐碱玻纤网格布一层。以哪个为准?请明确。
答:外墙设300mm宽镀锌铁丝网,内墙300mm宽耐碱玻纤网格布一层。
13、结构说明防水反梁与建筑说明反梁不一致,以哪个为准?请明确。

![]()
![]()


答:以建筑为准,卫生间C20,200mm高;出屋面反梁C30。
14、如图所示是否意思为外廊墙面面层为无机涂料,基层为外墙基层?请明确。

答:是。
15、轻钢结构雨棚是否计入?如计入,请提供具体做法。
答:计入,见补充图纸。
16、卫生间墙面和踢脚是否重复?且做法不一致,以何为准?请明确。


答:以内墙为准。
17、请明确电井装修做法。
答:楼面:现浇钢筋混凝土楼板表面清扫干净
水泥浆一道(内掺建筑胶)
最薄处10厚1:3水泥砂浆找平
20厚1:3水泥砂浆,表面撒适量水泥粉抹压平整
地面:100厚碎石垫层,素土夯实
80厚C15混凝土垫层
水泥浆一道(内掺建筑胶)
最薄处10厚1:3水泥砂浆找平
20厚1:3水泥砂浆,表面撒适量水泥粉抹压平整
墙体:基层墙体
12厚1:3水泥砂浆随砌随抹
5mm厚1:3水泥砂浆抹面,表面压光
顶棚:现浇钢筋混凝土楼板修补平整
素水泥浆结合层一道,内掺3%108胶
5厚1:3水泥砂浆打底
3厚1:2.5水泥砂浆找平。
18、教学楼独立柱是否按外墙面做法?请明确。
答:按照外墙做法.
19、楼梯间顶层女儿墙无节点大样,是否为混凝土女儿墙?请明确。

答:混凝土女儿墙。
20、建筑说明仅给出外墙自保温抹灰做法,外墙非自保温部分抹灰做法是什么?请明确。

答:所有外墙均按外墙自保温墙体抹灰做法。
21、楼梯间盲道无做法,请明确具体做法。

答:计入。做法参03J926第152页,材质为陶瓷地砖。
22、雨篷底板等外露板底、外廊栏板内侧做法是否需要抹灰?如需要,请提供做法。

答:不需,直接按照图纸做法。
23、YT5和YT6窗部位GRC轻质隔墙高度与平面图不符,1100mm还是1000mm?请明确。
答:改为1100高100厚煤矸石空心砖砌体。
24、卫生间大便槽无做法,请明确具体做法。
答:大便槽详见02J915第82页,隔断参考宿舍楼隔断02J915第39页型号GB11a宽500mm,高1700mm,18mm厚复合板。装修参见下图。(砌体采用烧结实心砖)。

25、教室中(讲台、黑板、储物柜、多媒体讲台、实验台等)无具体参数是否计入本次招标范围?如计入,请明确计入哪些?并明确具体做法。
答:不计入。
26、如图所示部位是否为墙体?请明确。

答:无墙体。
27、请明卫生间确隔断的具体做法、高度?
答:同宿舍楼,见02J915 39页型号GB11a 宽500 高1700,18mm厚复合板。
28、盥洗台是否需要计入,如计入请提供做法。是否有梳妆镜?,如有,请提供做法。
答:规格做法参02J915第48页,梳妆镜参考宿舍楼图集02J915第50页。
29、风管出屋面无做法,请提供具体做法。
答:
,百叶为400*400mm防雨百叶。
30、屋面采用抗渗混凝土,请明确抗渗等级?
答:屋面无需抗渗砼。
教学楼BC区
1、YT1剖面图显示有60厚轻质隔墙1400高,1层平面图无显示。2-4层平面图为1200高护窗栏杆,请明确以哪个为准



答:1200mm高护窗栏杆.
2、4#楼梯间左边办公室箭头指出,是否有护栏杆,如有请明确高度

答:1200mm高。
3、2#楼梯间保温墙体,楼层平面图与楼梯间平面图表示不一致,请明确以哪个为准。


答:平面图为准。
4、平面图13轴交BC轴处为1200高护窗栏杆,剖面图YT5处为轻质隔墙涂外墙涂料,两处表示不一致,请明确以哪个为准。


答:大样图为准。
5、请明确一层到三层13轴交C、D轴的外墙面涂何种乳胶漆做法。
答:外墙真石漆做法。
6、请明确图示箭头处柱内侧的装修是否同立面图中柱的外侧。

答:抹灰后真石漆面层。
7、屋面采用抗渗混凝土,请明确抗渗等级?
答:屋面无需抗渗砼。
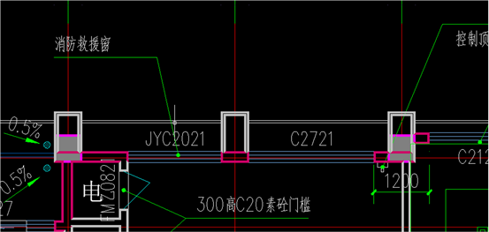
8、请明确请弱电门槛的具体材质等级及高度。


答:200高素砼门槛
9、请明确一层门厅的具体装修做法。
答:
。
10、请明确图示外墙非自保温墙体的抹灰做法。



答:同自保温。
11、无障碍坡道参照图集建筑设计说明与一层平面图表述不一致,请明确以哪个为准。


答:以说明为准。
12、图中箭头处,结构图与建筑施工图表述不一致,请明确。


答:结构图为准。
13、图示箭头窗户尺寸,平面图与1-1剖面图不一致(一至四层),请明确。


答:以平面标注为准。
14、图示箭头窗户尺寸,平面图与2-2剖面图不一致(一至四层),请明确。


答:以平面标注为准。
15、请明确G轴交2-10轴之间窗户的离地高度(即G轴立面图)。
答:1000mm高。
16、请提供C轴立面图?
答:同H轴立面。
17、请明确甲、乙、丙防火门的材质是木质还是钢制。
答:甲、乙防火门为钢制,丙防火门为木质。
18、请明确图示窗的离地高度。
-
答:此窗上部顶至梁底,内侧做护窗栏杆。
19、1#、3#楼梯图示窗户型号表述不一致,请明确。

答:C2125。
20、建筑装修表中的屋面1挤塑聚苯乙烯泡沫塑料板厚度与节能设计一览表表述不一致,请明确。
答:以节能设计一览表为准。
21、教室中讲台、黑板、储物柜、多媒体讲台、实验台等无具体参数是否计入本次招标范围内,请明确?
答:不计入。
22、架空层楼板装修表中岩棉复合板厚度、加强网格布材料与设计说明不一致,请明确。
答:65mm厚岩棉复合板、碱玻纤网格布。
23、请明确空调栏杆具体壁厚。
答:100X100X2mm铝合金方管,横杆间距100mm。立杆间距1000mm。
景观绿化工程
1、基肥用量如何设置?(乔木、灌木地被、灌木球类、草皮)请明确。
答:按绿化施工规范设置,乔灌木按0.5kg/株,草坪宜控制在10kg/平方。
2、种植土是否掺入30%泥炭土?请明确。
答:仅种植土换填,不掺入泥炭土。
3、苗木成活养护、保存养护、日常管理养护时间分别是多少?几级养护?请明确。
答:成活养护一个月、保存养护一个月、日常管理养护二十二个月,一级养护。
4、平面图中索引排水沟参见景施-07,景施-07无此索引,是否应参照景施-21中内外排水沟索引?请明确。


答:标注有误,应参照景施-21中内外排水沟。
5、铺装平面图中P05三种石材无法确定如何布置,请明确。


答:见下图
。
6、P11与标注不符,以哪个为准?请明确。



答:以铺装图为准。
7、球场排水盲沟平面图中未标注盲沟位置,请明确。
答:已标注尺寸,以球场中心线为参照点。
8、杠杆区含哪些体育设施?请明确数量及做法。
答:双间肋木、高低三位单杠、双杠各一座。
9、沙坑是否在本次招标范围?若在,请提供详细做法。
答:详细做法参见国标08J933-1,v22-1,跳板采用V20-1,硬橡胶跳板。
10、铺装平面图中P10、P11收边无标注,收边是否为300x300x50中国黑花岗岩收边(火烧面)?请明确。
答:是的。
11、铺装平面图中P09两种石材无法看出如何布置,请明确


答:尺寸3000的位置为1000*300*30厚芝麻灰花岗岩烧面。
12、如图所示空白区域无铺装标注,是否有铺装?若有,请明确是何种铺装。


答:篮球场和排球场周围到排水沟为止都是硅pu,杠杆区材质为8厚混合型塑胶面层。
13、如图所示位置1.4m*1.4m树池是否为树池四?请明确。


答:是的。
14、花坛节点、景观坐凳给出相邻铺装下基层做法与铺装大样节点做法不一,以哪个为准?请明确。
答:以铺装大样节点为准。
15、P05铺装中的走边铺装做法是什么?请明确。

答:300x300x50中国黑花岗岩收边(火烧面)。
16、花池一高度为450mm,参考图集选择A/H3、 B/H3还是C/H3,如选择B/H3、C/H3,请明确地下部分H的高度。

答:H高度为600mm。
17、请明确外排水沟底板和垫层混凝土强度等级。排水沟内是否抹灰?请明确。

答:混凝土强度等级底板C25,垫层C15,排水沟内20厚1:2.5防水砂浆抹灰。
18、内排水沟两侧砌体无做法,请明确具体做法。

答:M7.5水泥砂浆砌MU15实心混凝土普通砖。
19、请明确内、外排水沟盖板混凝土强度。
答:混凝土强度等级C25。
20、非机动车棚下基础高度是多少?请明确。

答:非机动车棚下基础高度H为750mm。
21、曲形坐凳深入地下部分高度H是多少?并明确砌体种类,砌体强度和砂浆强度。

答:曲形坐凳深入地下部分高度H为400,M7.5水泥砂浆砌MU15实心混凝土普通砖。
22、铺装中P12防腐木地板龙骨采用木龙骨还是角钢管龙骨?垫层是灰土垫层还是砂垫层?并明确龙骨规格以及如何布置。

答:用3*50*50方通长2000龙骨,间距600mm,用M8镀锌膨胀螺栓及L50X50X4,L=150角钢固定,天然砂砾。
23、请明确树池一石墩花岗岩种类和高度,60*50木板条是否为防腐木?

答:200*400灰色光面花岗岩,防腐木。
24、请明确宣传栏玻璃种类及厚度,玻璃边框背框材质规格。

答:10厚钢化玻璃,边框为50x50x4厚方钢,面饰深灰色氟碳漆,背筐为2厚钢板,面饰深灰色氟碳漆。
25、玻璃钢坐凳是否计入本次招标范围?如计入,请明确玻璃钢坐凳中玻璃钢的厚度。
答:玻璃钢为成品订制。
27、旗杆采用手动还是电动?请明确。
答:手动。
28、非机动车棚聚碳酸酯采光板厚度是多少?请明确。
答:20mm。
29、方亭坐凳两种钢管壁厚是多少?请明确。

答:3mm。
30、成品座椅下垫层是否采用150厚碎石垫层?请明确。

答:是。
31、弧形廊架中方钢管厚度是多少?请明确。

答:8厚。
32、围墙栏杆底部预留钢筋如何设置?间距多少?请明确。

答:预留钢筋间距2米。
33、车行铺装区面层是什么做法?请明确。

答:见p09,只是作为车行道铺地时石材厚度选用50mm,总说明中有说明。
34、花池二砖砌体高度、做法是什么?请明确。

答:360宽x700高M7.5水泥砂浆砌MU15实心混凝土普通砖。
35、沥青道路节点大样图做法与说明做法不一,以哪个为准?请明确。

答:不同处为200厚级配碎石和200厚废矿渣,选大样做法中的200厚级配碎石。
36、苗木支撑如何选择?请明确。
答:12cm以上采用井字撑,12cm以下采用一字撑。
37、景观工程中的砖砌体均未标注材质,是否统一为混凝土实心砖?请明确
答:统一为M7.5水泥砂浆砌筑MU15混凝土实心砖。
38、如图所示,钢筋是否为单层双向?防水薄膜是否为0.2mm厚聚乙烯塑料薄膜?C10素砼是否改为C15素砼?请明确。

答:钢筋是为单层双向;防水薄膜为0.4mm厚聚乙烯塑料薄膜;改为C15素砼。
39、景施-21号图纸,排水沟变形缝做法是什么?请明确。
答:用沥青麻丝灌缝,塞实。
40、运动场基准桩如何布置?请明确。
答:足球场中心点布置一个。
41、如图所示,吸震层是什么材料?乳化沥青是什么型号?用量是多少?

答:吸震层采用聚丙烯三维弹性垫,乳化沥青用量1kg/m2
42、是否新增加标志牌一个?
答:新增加标志牌一个,1.2mm厚不锈钢拉丝板(202),600*800mm,四周翻边。样式详见下图。

43、室外景观铜板地雕、主题雕塑、老子、经书等雕像无深化设计图纸是否计入本次招标范围内,请明确?若计入,请提供深化设计后图纸。
答:不计入。
风雨操场
1、结构说明中,屋面采用抗渗混凝土,请明确抗渗混凝土的抗渗等级。
答:p6。
2、填充墙结构总说明和建筑总说明不一致,是否以建筑说明为准。
答:以建筑为准。
3、结构说明中,
,结施中未见后浇带,是否本工程无后浇带。
答:本工程无后浇带。
4、满堂基础埋深5.9m,是否需要基坑支护,请提供基坑支护图纸。
答:无须支护,按大开挖挖土方式计入。
5、基础平面布置图和地下室底板结构平面布置图中,独立基础为C30,满堂基础为C35P6,请明确地下室位置独立基础与满堂基础相交部位的混凝土强度等级。
答:独立基础混凝土等级均为C35.
6、地下室底板平面图纸图中Q1、Q2厚度与大样图和建筑图均不一致,是否厚度均为大样图为准。
答:以大样为准.
7、结构图中的柱子大小和建筑图中的大小不一致,导致布置建筑中窗户与柱子重叠,如二层4轴交E轴处柱子,结构图尺寸为850*850,建筑图尺寸为600*600,其他位置余同。
答:以结构为准。
8、地下室底板结构平面布置图中Q1、Q2大样图中
指的是什么,且无尺寸标注。
答:仅为示意,基础梁.
9、 1~3轴交A~E轴处基础,图纸设计分为独立基础和满堂基础两张图分别设计,请问满堂基础处的独立基础是否相当于柱墩。
答: 不是,是独立基础,板是防水板不是满堂基础.
10、出屋面梯房及天窗结构平面布置图中的DY1的标高是否应该为18.6m。
答:是。
11、FM乙7946中的节能玻璃的厚度是多少。
答:同外窗,传热系数2.20W/m2.K。
12、
是否需要计入,如计入请提供做法。
答:计入。做法参03J926第152页,材质为陶瓷地砖。
13、卫生间隔断是否需要计入,如计入请提供做法。
答:规格做法参02J915第39页GB7及安装做法参02J915第45页,材质为18mm复合板。
14、盥洗台是否需要计入,如计入请提供做法。
答:规格做法参02J915第48页。
15、淋浴间隔断是否需要计入,如计入请提供做法。
答:规格做法参02J915第39页GB11及安装做法参02J915第45页,材质为18mm厚复合板。
16、10.8m高平面图纸图中,7-8轴交B-F轴处的楼面无做法
。
答:1.40厚C20细石混凝土随打随抹,内配双向Φ4@150钢丝网片
2.15厚高密度玻璃棉
3. 20厚1:3砂浆找平
4. 现浇钢筋混凝土楼板。
17、下沉式卫生间装饰层以下未提供做法
。
答:1.5厚1:1水泥砂浆加801胶贴防滑地砖,白水泥填缝
2.最薄处20厚1:2.5水泥砂浆找坡层(掺5%防水剂)
3.50厚400x450C20砼预制板^16@200双向底筋
4. 20厚1:2.5水泥砂浆保护层,找1%坡至沉箱排水器
5.1.2厚JS防水涂膜600高
6.20厚1:2.5水泥砂浆找平层。
18、舞蹈室墙面、顶棚装饰做法装饰一览表与平面图中标注做法不一致;平面图中采用穿孔吸音石膏板见图集08J931图集P62页,图集中本页为材料参数,请提供此吸音板具体构造做法。
答:以平面做法为准,做法参见05J909第278页棚33A,龙骨为T型铝合金龙骨;墙面做法同篮球场。
19、一层平面布置图
,本次坡道是否需要计入,如计入请提供做法。
答:无障碍坡道及室外坡道详12J003第A7页坡2A,坡道扶手做法详12J926第H1页。
20、室外楼梯面无装饰做法,是否同室内楼梯做法。
答:室外楼梯做法参05J909第25页台14-2。
21、屋顶层标高17.8m的屋面和二层的屋面无做法。
答:按保温不上人屋面计入。
22、防滑地砖的规格是多少。
答:800*800*10mm。
23、屋顶砖砌台阶抹灰无做法。
答:20厚1:2水泥砂浆抹面。
24、地下室和厨房的排水沟深度按多少计入。
答:0.3m。
25、厨房的排水沟篦子做法是否同地下室。
答:是。
26、室内篮球场地、乒乓球的地面做法参照JGJT280-2012图集中75页中做法中的哪个。
答:木1。
27、防护网无做法。
答:沙钢不锈钢防护栏安装于窗户室内一侧窗套位置 20*20*1.2不锈钢方管水平间隔150 竖向分格≤1500(根据窗高均分)
28、舞蹈教室、篮球场墙面的木丝板的厚度是多少,基层是否采用超细玻璃丝棉,超细玻璃丝棉的厚度是多少。
答:木丝板厚度20mm,超细玻璃丝棉厚度50mm。
29、墙身大样5中的吊顶做法参照图集05J909图集DP20的哪个节点,面层材料选用哪种。
答:600*600mm铝合金方板吊顶。
30、百叶窗做法参见05j926-1图集P17页,无此图集。
答:百叶窗做法参见05j624-1图集P17页。
31、人流通道满铺钢丝网是否以结构图
为准。
答:是。
综合楼
1、综合楼四层平面布置图中
轻质隔墙无做法,请提供做法。
答:不计入本次招标范围。
2、结构屋顶层结构平面图中的大样1和建筑屋顶平面图中的1/16大样不一致。

答:以结构图为准。
3、甲、乙、丙级的防火门是木质还是钢制。
答:甲、乙钢制,丙级木质。
4、M1821断热铝合金的门的玻璃厚度是多少。
答:同窗玻璃厚度。
5、校史展览厅、电、弱电、门厅、书库、活动室、准备室、活动空间、弱电机房、计算机教室、辅房、报告厅、设备间、心理咨询室和电梯机房房间的,楼地面、天棚、墙面装饰做法应参照一览表中的哪些房间做法。
答:报告厅装修不在本次招标范围内;所有教室含准备室、活动室同教室做法,其余做法同办公室。
6、室外台阶处的花池无做法。
答:15J012-1 B/H3。
7、TC-1处的铝合金穿孔板的厚度是多少,固定方式是什么。
答:铝合金穿孔板厚度3mm,TC-1统一制作安装。
8、报告厅处
这是什么墙体,请提供做法。
答:砖砌台阶。
9、 门窗表中M1821有两种门,是否钢木门是报告厅处的,断热铝合金门是楼梯处的。
答:是。
10、铝合金穿孔板的厚度是多少。
答:3mm。
11、人流通道满铺钢丝网是否以结构图
为准。
答:是。
12、轻钢雨蓬做法是否同风雨操场?
答:是
13、屋面保温厚度建筑做法和节能设计厚度不一致,是否以节能设计为准。
答:是。
门卫一
1、平面图门的规格为M1521,立面图的规格为1500mm*3000mm,请问以哪个为准?
答:此处门的规格为M1530,1500mm*3000mm。
2、请明确外墙保温范围?
答:所有外墙均做保温。
3、门卫一轻钢结构雨蓬做法是否同风雨操场?
答:是。
4、请明确卫生间地面20厚1:3水泥砂浆找平或最薄处30厚C20细石混凝土向地漏找平,使用哪一种做法?
答:30厚C20细石混凝土。
5、女儿墙内侧装饰做法是否同无保温外墙抹灰做法?
答:是。
门卫二
1、请明确外墙保温范围?
答:所有外墙均做保温。
2、门卫二建筑高度为4.5m,板底标高未标注处是否均为3.6m?
答:是,板底标高未标注处均为3.6m。
3、门卫二轻钢结构雨蓬做法是否同风雨操场?
答:是。
4、请明确卫生间地面20厚1:3水泥砂浆找平或最薄处30厚C20细石混凝土向地漏找平,使用哪一种做法?
答:30厚C20细石混凝土。
5、女儿墙内侧装饰做法是否同无保温外墙抹灰做法?
答:是。
6、是否要设置电动伸缩门?
答:设置一套。
(二)安装工程
教学楼A区
1、如下图所示,箭头所指强电井内是否有桥架敷设?若有请明确桥架规格型号?

答复:有桥架500*100竖向强电桥架。
2、配电箱a2AL、a3AL、a4AL出线5个回路,平面6个回路,是否W6管线是是WDZ-YJY-5*6-CT(PC25-WC,CC)请明确?
答:为WDZ-YJY-5*6-CT(PC25-WC,CC)。
3、如下图所示,箭头所指无图例?请明确名称、规格型号、安装高度?

答:第一个为13W防水型荧光灯吸顶安装,第二个为220/24V变压器吊顶内0.1m安装;第三个为13W红外线感应灯,吸顶安装。
4、如下图所示,箭头所指插座是否为单相二、三极暗插座教室插座?


答:是教室插座安装高度+1.8m。
5、如下图所示,箭头所指插座回路平面图无井道插座及管线图,请明确?若有请补充图纸。

答:有井道插座,在电井内设单相二、三极暗插座,距地0.3米,由该回路供电;工程量可参照井道照明。
6、如下图所示,箭头所指是否为应急照明桥架?若是请明确桥架规格型号,一层未见连接至B,C区配电间(设备间)的平面图,请明确?若有请补充图纸。

答:为强电桥架见第一条回复,BC区见教学楼BC区图纸。
7、弱电部分{综合布线系统(网络)、教学广播系统、IP网络电视系统、综合布线系统(语音)、视频监控系统}若计入请提供技术规格书?
答:本次设计仅预留预埋管道、接线盒。
8、图纸无等电位、总等电位,若有请提供图纸?
答:在1至5层强电与弱电井内增设局部等电位。安装参见图集(15D501-2)P15。
9、四层强电平面图箭头所指灯具是否遗漏,请明确?

答:是,与3层相同教室内灯具相同布置。
10、请明确教学楼A、B、C区应急照明系统是否有应急照明控制系统?若有请补充图纸。

答:为现场控制型,无系统图。
11、如下图所示,箭头所指管道埋地深度请明确?

答:贴底板安装。
12、如下图所示,箭头所指管道是否DN400球墨管请明确?

答:球墨铸铁管为埋地使用,地面1m以上为镀锌钢板材质风管。管道DN400。
13、如下图所示,箭头所指是否风管软接头,若是风管软接的材质请明确?

答:是软接头,为防火软接布。
14、如下图所示,箭头所指是否为DN600球墨管请明确?

答:球墨铸铁管为埋地使用,地面1m以上为镀锌风管,风管尺寸为DN600。
15、风机安装见07K103-2第25-29页,是否有误?
答:参图集07K103-2第12-13页。
16、请明确球墨管、UPVC管的连接方式?

答,球墨管承插连接,UPVC管胶粘剂承插粘接。
17、教学楼A区生物实验室、化学实验室内的化验盆及配套龙头是否计入,请明确?若计入,请提供参考的图集。
答:不计入。
18、教学楼A区饮水间设备无详细参数是否计入,请明确?若计入,请提供相应参数。
答:不计入。
19、请明确教学楼A区黑板灯、格栅护眼教室灯的规格、型号?
答:黑板灯1200*115,格栅护眼教室灯1200*300。
20、教学楼A区,如下图所示,箭头所指配电箱ACa是否对应平面配电箱AC?配电箱AC出线WC,CC敷设是否合适?请明确?

答:是的,敷设方式改为WC,FC。
21、请明确教学楼A区建筑图4层,给排水图系统图5层是否有误,请明确?
答:按建筑图,是四层。
22、教学楼A区冷凝水管系统图与平面图不一致请明确以那个为准?

答:以平面图为准。
23、教学楼A区,如下图所示,箭头所指名称规格型号请明确?

答:均是实验室化验盆,不计入本次招标范围。
24、请明确教学楼A区,坐便器参考图集09S303-68是否有误?
答:参图集09S304-68页。
25、请明确教学楼A区洗手台上的水龙头类型?
答:洗手台是感应龙头,感应由电池供电与设备成套。污水盆的是普通龙头。
26、教学楼A区,如下图所示,定风量蝶阀安装的位置及材质请明确?
![说明: B)N37D{}}4H6K6@}]58${PD](/uploadfile/6f30503a-507a-4871-90cc-cc2f778aa5b4/20200904170532723159.jpg)
答,定风量蝶阀、吸气罩是安装在试验台上,与试验桌配套,不在本次招标范围内。
教学楼BC区
1、如下图所示,箭头所指系统图的电源进线柜bATG是否对应平面图的4AP,请明确?


答:是。
2、如下图所示,箭头所指系统图的电源进线柜aATG是否对应平面图的bAPG,请明确?


答:是。
3、设备间无强弱电井的位置图。请补充?电井内是否有垂直桥架,若有请明确桥架规格型号?
答:竖向桥架为强电500*100竖向强电桥架,弱电200*100竖向桥架。
4、如下图所示,箭头所指配电箱b1ALe安装高度无,请明确?

答:安装高度1.5m。
5、如下图所示,箭头所指灯具图例无,请明确?

答:备用照明灯、18WLED,内置蓄电池,备用照明时间不小于90min。
6、平面图两个卫生间是否用同一个卫生间给排水详图,请明确?
答:是均用同一个系统图 ,一个是底层,一个是二到四层。
7、如下图所示,箭头所指给水管规格型号是否有误?系统图与平面图规格型号不一致,以那个为准?请明确?

答:系统图为准.箭头所指De40改为De32。
8、四层平面图未见NL-10、NL-11、NL-12、NL-13是否遗漏,请明确?
答:是的,与3层一致。
9、教学楼A区饮水间排水管是耐热塑料排水管,教学楼BC区未标注是否饮水间排水管也是耐热塑料排水管,请明确?
答:是,饮水间排水管是耐热塑料排水管。
10、教学楼BC区生物实验室、化学实验室内的化验盆及配套龙头是否计入,请明确?若计入,请提供参考的图集。
答:不计入。
11、教学楼BC区饮水间设备无详细参数是否计入,请明确?若计入,请提供相应参数。
答:不计入。
12、请明确教学楼BC区黑板灯、格栅护眼教室灯的规格、型号?
答:黑板灯1200*115,格栅护眼教室灯1200*300。
13、教学楼BC区,如下图所示,箭头所指配电箱ACa是否对应平面配电箱AC?配电箱AC出线WC,CC敷设是否合适?请明确?

答:是的,敷设方式改为WC,FC。
14、请明确教学楼BC区建筑图4层,给排水图系统图5层是否有误,请明确?
答:按建筑图,是四层。
15、教学楼BC区冷凝水管系统图与平面图不一致请明确以那个为准?

答:以平面图为准。
16、教学楼BC区,如下图所示,箭头所指名称规格型号请明确?

答:均是实验室化验盆,不计入本次招标范围。
17、请明确教学楼BC区,坐便器参考图集09S303-68是否有误?
答:参图集09S304-68页。
18、请明确教学楼BC区洗手台上的水龙头类型?
答:洗手台是感应龙头,感应由电池供电与设备成套。污水盆的是普通龙头。
综合楼
1、配电箱系统图ATpt是否对应平面图APpt,若是以那个名称为准,请明确?
答:是。
2、配电箱系统图ATdt是否对应平面图APdt,若是以那个名称为准,请明确?
答:是。
3、配电箱系统图APxf系统图,无配电间照明、插座管线回路,管线规格型号敷设方式,请明确?
答:APxf配电间照明、插座管线回路补充回路图如下
。
4、请明确电梯井道照明灯的规格型号?
答:32W节能灯,壁装。
女生宿舍、男生宿舍
1、请明确下图箭头所指设备相关参数。

![]()
答:消防电源监控传感器相关参数:
2路三相交流电压
开关量输入:2路(通用)
继电器输出:2路(报警、保护输出)
装置电源:DC24V(总线供电)
电气火灾监控器参数:
剩余电流监测回路,不小于8个回路
开关量输入:2路(通用)
继电器输出:2路(报警、保护输出)
剩余电流检测单元为设备配套
2、请明确下图箭头所指管线规格型号。

答:为FF管线。
![]()
3、平面未见下图配电箱,请明确。

答:为图纸标注错误,AP2应为ATE箱。
4、请明确下图箭头所指管线规格型号。

答:WDZN-BYJ-3*2.5-PC20-WC,FC。
5、下图箭头所指入户预埋管系统图与平面图不符,请明确以何为准?


答:以平面图为准。
6、下图管线型号系统图与平面图标注不符,请明确以何为准?


答:以平面图为准。
7、请明确下图箭头所指电缆穿管型号。

答:穿RC40热镀锌钢管。
8、请明确风扇和开关是否计入,若计入,请明确相关参数。

答:风扇为带防护罩的360度旋转风扇,开关为86型无极变速风扇开关。
9、请明确敷设方式是否有误。

答:插座回路敷设方式有误,应为WC,FC。
10、雨水立管未见管径,请明确。

答:雨水立管管径De110。
11、请明确排水系统埋地管道材质及连接方式。
答:室内污水管埋地采用硬聚氯乙烯(PVC-U)管及管件承插连接。
12、请明确下图箭头所指管道管径。

答:管径为De50。
13、下图箭头所指管道大样图与平面图不符,请明确以何为准。


答:排水管接出管为De160。
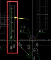
14、管径不符,请明确以何为准?


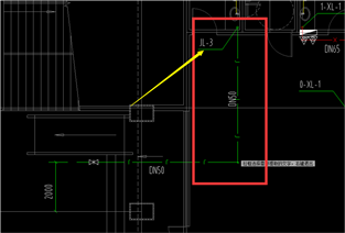
答:左边为JL-1接入管,右边为JL-3管道系统图。
15、请明确下图箭头所指管道管径。

答:如下图所示

16、请明确下图管道材质及连接方式是否与室内污水管一致?

答:是的。
17、请明确下图管道管径。

答:
。
18、请明确屋面水箱配套等阀门及构配件材质。
答:全铜阀门。
19、请明确下图箭头所指构件名称。

答:温度计。
20、下图表格规格数量与平面图不符,请明确以何为准?

答:以平面图为准。
21、请明确下图箭头所指风管尺寸。

答:D150圆管。
22、请明确下图百叶名称及规格型号。

答:单层防雨百叶。
23、请明确淋浴器图集。
答:09S304-P127。
24、请明确盥洗室内的水龙头是否为感应式龙头?
答:普通龙头,陶瓷片密封水嘴。
风雨操场
1、未见下图构配件参数,请明确。

答:风雨操场与食堂内有该设备且参数为火灾警报扬声器,参数参考SCJ-1,如图:
![]()
2、请明确下图箭头所指管线型号。

答:消防报警二总线FS :管线型号为WDZN-RYJS-2x1.5 SC20-CC,WC。
3、请明确下图桥架规格型号。

答:均为耐火电缆桥架200*100。
4、请明确下图所指回路如何连接。


答:电缆埋地敷设至一层配电房外电缆井,与一层配电房内线路同敷设,沿建筑外墙引至负一层配电房,2~3轴交A~B轴处。
5、请明确下图插座名称及相关参数。

答:详见风雨操场与食堂,电施-05,主要设备表序号30:单相二、三极暗插座(安全防水型),IP54。
6、请明确下图电缆穿管型号。

答:穿RC40管埋地敷设。
7、未见下图管线系统图,请明确。

答:详见风雨操场与食堂,电施-02,消防泵配电柜系统图:线缆截面及敷设方式。
8、未见下图箭头所指配电箱系统图,请明确。

答:由设备厂家配套。
9、平面图未见下图箭头所指管线,请明确。

答:详见风雨操场与食堂,电施-06,地下室电气平面图中XAT箱引出部分线缆,自配电房内低压配电柜引入。配电房内设备及回路均由供电公司专项设计,不在本次招标范围内。
10、请明确下图箭头所指灯具名称及相关参数。

答:LED红外感应节能灯。
11、请明确下图开关名称及相关参数。

答:单联翘板式暗开关(防潮防水型),~250V,10A。
12、图纸未见引下线,请明确。
答:引下线如文件内所示:
。
13、下图管径描述不一致,请明确以何为准?

答:以De160为准。
14、未见下图管道系统图,请明确。


答:数量以平面图计入。
15、未见一层给排水管道系统图,请明确。


答:数量以平面图计入。
16、请明确下图箭头所指阀门名称、材质及连接方式。

答:从上向下依次为电磁阀、止回阀、水表、闸阀。
17、请明确水锤消除器规格型号。

答:DN150。
18、太阳能系统平面图与系统图不符,请明确。


答:以平面图为准。
19、下图箭头所指消火栓下未见配置灭火器,请明确消火栓下是否均需要配置灭火器。



答:需配置消火栓。
20、请明确下图灭火器型号。

答:MF/ABC3型(3Kg)磷酸铵盐手提式灭火器2具,详见图纸说明。
21、请明确压力排水管道材质及连接方式。
答:压力排水管采用镀锌钢管,卡箍连接。
22、请明确喷淋管道材质及连接方式。
答:同消防管道。
23、未见下图管道系统图,请明确。

答:补充系统图,详见补充图纸。
24、请明确下图管道附件名称、材质及连接方式


答:左为闸阀,右上为信号阀,下为水流指示器。
25、请明确下图箭头所指干管及支管管径。

答:均为DN65。
26、请明确下图箭头所指管道材质及连接方式。

答:镀锌钢管、丝扣连接。
27、请明确下图构件名称。

答:末端试水装置。
28、未见消防泵房泵的立向阀门管道及管道构配件图纸,请明确。
答:泵的立向阀门及管道及管道构配件均按照下图进行计算。

29、请明确消防泵房管道是否全部采用内外壁热镀锌钢管?
答:泵房的消防喷淋管用内外壁热镀锌钢管,其他的用镀锌钢管。给水管按说明里钢塑复合管考虑。
30、请明确下图阀门及构配件名称。



![说明: ZR85]WGRY@1BGQ(`9HC45M7](/uploadfile/6f30503a-507a-4871-90cc-cc2f778aa5b4/20200904170535432235.jpg)
答:前俩张图内均为闸阀,第三张图内为压力调节阀,第四张图从上到下依次是消声止回阀、压力表、可曲挠橡胶接头、同心异径管。
31、下图管道未见管径标注,请明确。

答:如图所示
。
32、请明确下图箭头所指管道管径。



答:DN65;DN50;DN150。
35、气体灭火系统,电气图纸与给排水图纸不符,请明确以何为准?
答:以给排水图纸为准。
门卫
1、门卫一强电系统,配电箱AL1出线至配电箱AL2的电缆型号与配电箱AL2系统图中的不一致,请明确以哪个为准?
答:以配电箱AL1系统图为准。
室外安装
1、室外给水系统,请明确管沟回填要求?
答:给水管道基础为原状土夯实基础,如果在岩基上,铺设砂垫层300厚,砂垫层暂定量100m3。
2、室外消防给水系统,请明确球墨铸铁管的连接方式?
答:球墨铸铁管采用承插连接。
3、室外生活给水系统,请明确PE管的连接方式?
答:热熔连接。
4、室外消防给水系统,请明确阀门的材质及连接方式?
答:室外消防埋地管道的阀门应采用球墨铸铁阀门,连接方式为法兰连接。
5、室外生活给水系统,请明确阀门的材质及连接方式?
答:采用铜芯阀门,连接方式阀门≥DN50为法兰连接,阀门<DN50为螺纹连接。
6、室外生活给水系统,请提供水表井的做法或者图集。
答:参照图集05S502-42、43。
7、室外景观照明,请明确过路钢管的规格?
答:过路钢管为比配电管大一级。
8、室外景观照明,设计说明中说由甲方自行定购,是否为甲供材?

答:计入,但本次设计仅提供基本参数,灯具样式需建设方确定。
9、室外景观照明,配电箱的出现回路与平面图不符,请明确是否有误?
答:以平面图为准。
10、弱电系统,请明确弱电手孔井参照的图集?
答:07-SD101-8。
11、室外的电力排管、工井、电缆是否计入本次招标范围内,请明确?
答:各单体第一个配电箱以上部分不计入。
注:此补疑视同招标文件的组成部分,与招标文件具有同等法律效力。
涡阳县重点工程建设管理服务中心
安徽诚信项目管理有限公司
2020年9月4日
三、附件
答疑发布日期:2020年09月04日