您现在的位置: 首页 >> 答疑变更 >> 安徽公共资源交易集团项目管理有限公司 >> 工程
一、原公告主要信息
原项目名称: 安徽公安职业学院整体搬迁项目室外运动场及零星道路工程
原项目编号: 2020BFFGZ03560
原公告日期: 2020年12月30日
二、公告内容(更正事项、内容及日期等)
安徽公安职业学院整体搬迁项目室外运动场及零星道路工程招标文件补疑1
项目编号:2020BFFGZ03560
各投标单位:
重要提示
1、人工费执行《关于贯彻执行2018版安徽省建设工程计价依据的通知》(合造价【2018】13号文)。其中定额人工费参与取费、取税,其相对于定额人工费增加的部分 / 元只计取税金。
2、本工程措施项目费率和不可竞争费率按“ 市政工程取费标准”中“道路、排水、桥涵 ”的费率计取;其中房屋建筑、市政工程中挖或填土石方量大于5000m³的大型土石方工程,措施项目费率和不可竞争费率按房屋建筑工程或市政工程相应费率乘0.6系数。
按业主要求,现对本项目招标工程量清单、最高投标限价编制作出如下补充:
第一部分:招标需求
一、招标范围:
本项目分为1个标段,一是与治中路连接的箱涵,包含箱涵主体、挡堵墙,及其配套土方,具体施工措施(包括放坡、支护、导流、高支模);二是室外运动场,运动场区域(以周边道路边线为界)范围内的基础处理(部分土方平衡),结构层、面层施工,及其配套的道排、围网。除特殊说明外,招标文件、工程量清单、图纸以及补充答疑文件全部内容。除特殊说明外,招标文件、工程量清单、图纸以及补充答疑文件全部内容。
土方工程:包括土方挖、运、填等;
运动场工程:包含运动场(含标线)、球场围网、运动场环路支管至第一个收水井及运动场内检查井等;
箱涵工程:包含箱涵混凝土结构、围堰、拉森式钢板桩等;
安装工程:包含运动场投光灯及其进线电缆、电缆保护管敷设等;
补充说明:
图纸上已设计,但不计入本次招标范围的有:运动场成品设施;线性排水沟;总体排水除运动场环路支管至第一个收水井及运动场内检查井以外的所有内容;消防给水系统、喷淋给水系统、生活给水系统、电缆井及井间排管、配电箱、篮球场灯及配电电缆;
二、暂定项目:
(一)以下项目按照业主要求,以暂定工程量计入分部分项工程量清单,投标人综合考虑报价,标后按实际工程量结算:无
(二)按照业主要求,暂列金额为35万元,计入运动场土方单位工程,投标人应按招标人所列的金额计入投标总价。
(三)执行暂估价的材料、设备、专业工程及其金额如下:无
1、材料的名称、规格型号、金额;
2、设备的名称、规格型号、金额;
3、专业工程名称、工程内容、金额;
上述明细投标人应按招标人所列的金额计入投标总价。
4、发包人供应材料、工程设备的采购、保管费,控制价中不再另行计取费用,投标人在总报价中综合考虑此费用。
三、按项列入清单、措施费的内容,标后不予调整:
以下项目按照业主要求,按项计入,投标人自行踏勘现场,综合考虑报价,中标后不予调整:
1.箱涵围堰的修建、维护和拆除(满足施工需要及验收规范要求),按1项列入箱涵主体工程分部分项清单中,投标人自行踏勘现场,综合考虑报价,中标后不予调整。
四、补充图纸及修改图纸的说明:本工程在第一次发放图纸后,有补充图纸,具体详见图纸目录。
五、总承包服务费:总承包服务费在工程量清单、控制价中不再单独计取费用,投标人在投标报价中须综合考虑此项费用,总承包服务费含在总报价中。最终结算均按照投标价的(不含暂列金额)的1%扣除支付给总包单位。。
六、温馨提示:投标人投标报价还须仔细阅读本项目招标文件,慎重报价。
本工程采用商品砼、预拌砂浆。
因施工场地等原因而引起的材料场内重复倒运、搬运,清单不单独列项,投标人自行踏勘现场,综合考虑报价。
施工用临时水电接引,清单不单独列项,投标人自行踏勘现场,综合考虑报价。
与主体结构工程及其他工程交接处的收头及相关补缺、修复处理费用应含在报价内。对其他场区内的既有建筑物和构筑物造成的破坏应无条件修复,否则发生的一切费用将从工程款中扣除。清单不单独列项,投标人自行踏勘现场,综合考虑报价。
中标人施工范围内所有管井在竣工交付时须保证管井通畅无堵塞及垃圾,且符合国家、地方规定的相关验收标准,同时应对于施工范围内的所有管井进行标识(含铺装面)。因施工对其他施工单位或市政管网造成堵(淤)塞的,应无条件进行疏通,造成相关损失的由中标人负责赔偿。清单不单独列项,投标人自行踏勘现场,综合考虑报价。
本工程投标单位须按照全程抢工考虑,措施费用应自行综合考虑在投标报价中,赶工措施方案投标人自行考虑,需满足招标人要求。
凡涉及到本次招标范围内的所有试验、检测、综合竣工验收费用(招标人委托的第三方检测不在内)均由中标人承担;包括但不限于城市道路占用费、城市道路挖掘修复费、建筑垃圾消纳处理费、环境检测费、环境监测费、竣工验收资料备案费(含扫描费)、各种设备和材料的专项检测费等,所有试验、专项检测、综合竣工验收费用均由投标人在投标报价中综合考虑,确保所有试验、检测满足综合竣工验收需要;清单不单独列项,投标人自行踏勘现场,综合考虑报价。
投标报价应考虑施工便道维护修建费、临时围墙修建费(需满足合肥市相关部门最新规定),以及考虑施工、生活废水排放疏通维护费。还应考虑临时设施(临时房屋及其基础、临时道路、场地硬化、临时围挡及其基础、其它为施工服务的临时建筑物和构筑物)的拆除及其拆除后建筑垃圾外运等费用,做到工程竣工时“工完、料尽、场地清”。清单不单独列项,投标人自行踏勘现场,综合考虑报价。
投标单位应认真详细勘察现场,因场地限制,不具备材料堆场、库房、搭设加工区、搭设办公区、搭设生活区的,投标人在投标时应充分考虑,需将临时设施搭设等的所有相关费用充分综合考虑到投标报价中,中标以后不再调整。
中标人后期报送结算审计资料中竣工资料若发生少报漏报或和现场不一致需要增加结算审计价款的,建设单位一律不再签认任何补报资料,中标人自行协商审计部门。
本工程工期紧,任务重,投标人对工程量清单控制价有任何疑问(清单描述不明确的,以施工图设计文件、技术规范书和相关施工验收规范、图集为准;清单与图纸、技术规范书技术标准不一致的,以较优的技术标准为准),应于招标文件规定的疑问提交截止日前提出,否则视为投标人已经认可该工程量清单控制价已包括了招标范围(图纸设计、答疑、相关技术规范等)的全部内容,后期一律不予办理经济签证,均视为中标优惠或列入其他组价中,投标人应认真查看该工程量清单控制价全部内容、仔细踏勘现场,根据自身实力考虑各种潜在的风险,慎重合理报价。
建设单位有权根据实际情况,取消部分工程内容等,审计时据实扣除,中标单位不得以此提出任何索赔等,不增加任何费用。
本项目新旧工程衔接费(新建工程与原有工程衔接费用),清单不单独列项,投标人自行踏勘现场,综合考虑报价。
招标文件中的工程技术经济要求和本补疑不一致的,以本补疑为准。
第二部分 :设计文件及技术补充说明
共性问题:
土方工程:本项目土方为综合类土(含部分杂质土、建筑垃圾、淤泥、石块、岩层等),回填土满足施工图纸设计要求,回填后多余土方全部内倒(满足业主方现场管理要求);箱涵的淤泥全部外弃,工程量一次性包死;包括挖、填、运、内倒等,取土点、弃土点不指定,投标人综合报价应考虑土方施工中的实际运距或超出部分的运距、渣土费、渣土运输清理费、保洁费、弃土场及消纳管理费等所发生的一切费用,中标后不予调整,且严格执行合肥市渣土运输管理规定。
运动场工程:
本项目土方开挖深度按设计标高计算还是按自然标高计算?
回复:运动场区域按设计标高计算。
现场有部分杂填土,是否需要基础处理?如需要基础处理请提供处理范围及处理方案?
回复:运动场回填区(不是原状土区域)采取挖出回填土后分层夯实面积按5000m²计算,投标人自行踏勘现场,中标后根据现场实际情况可采用上述或其他(换填、打灰桩等)措施,如采用其他措施费用按上述措施计费,投标人综合考虑报价,标后量价均不予调整。
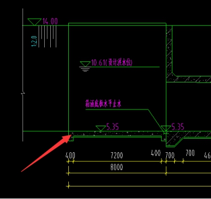
下图中的“业主单独施工”涉及的工程内容是否在本次招标范围?
回复:不在本次招标范围内。
运动场排水沟做法是否参照大样图做法?
回复:是
图纸中所有垫层为C10是否都改成C15混凝土?
回复:是
请提供铝合金道牙的做法及参数?
回复:铝合金道牙不计。
请明确塑胶跑道边石的材质、种类及做法?
回复:预制C30混凝土边石。
请明确起跳板与显示板一体化的材质及做法?
回复:纯实木,一种用红色木板显示另一种加橡皮泥显示板;重量:12kg;
规格:长1220*宽300*厚100(单位:mm);产品特点;松木原木切割无拼接,木料光滑稳固结实,外表喷涂优质树脂白漆,抗腐性强。
球场缓冲区做法是否同塑胶跑道基础结构层作法?
回复:是
球类场地基础结构层中C20混凝土是否改成C25?
回复:是。
下图中的“砂浆”表述是否有误
答:删去“砂浆”两字。60mm厚中粒式SBS改性沥青(AC-20)改为50mm厚。
请明确室外排水的编制范围?
回复:运动场环路主管不算,支管至第一个收水井在本次招标范围。
请明确支管排水管的管径是否为D315?
回复:是的。
请明确检查井规格?
回复:管径400及以下Φ700,400以上Φ1000
箱涵工程:
请明确本次招标范围是否仅为箱涵二?
回复:本次招标仅为箱涵二(桩号0+565~0+632,中心桩号0+598.5)。
请明确箱涵清淤范围和深度?
回复:清淤范围就是箱涵二的范围,平均长度按75米计算,平均清淤深度按照1.1米计算。
请明确土方挖土深度是否按照原地貌计算,挖土平均深度按照多少m计算?
回复:土方挖土平均深度按照4m计算。
回填土深度按照多少m计算?回填土是否全部采用素土回填?
回复:土方回填平齐至箱涵顶标高处。回填土方采用素土回填。
请明确钢板桩的具体型号?
回复:采用四型SP-Ⅳ型拉森钢板桩。
请明确箱涵进水口的底板厚度、混凝土强度等级,配筋详图及配筋工程量表?
回复:底板已新增细部尺寸及配筋图LSH-SG-32。
箱涵进水口处是否有顶板?若有,请明确顶板的混凝土强度等级,配筋详图及配筋工程量表?
回复:箱涵进水口两侧为扶壁式挡墙,箱涵侧为砼挡墙,已形封闭区域,无顶板。
请明确挡土墙盖帽混凝土强度等级,配筋详图及配筋工程量表?
回复:该处为挡墙顶部的盖帽,砼强度等级为C20,无需配筋。
注:此补疑视同招标文件的组成部分,与招标文件具有同等法律效力。
招标人名称:合肥市重点工程建设管理局
地址:潜山路550号
联系人:胡工
联系方式:0551-65991641
招标代理:安徽诚信项目管理有限公司
地址:合肥市滨湖新区南京路2588号(徽州大道与南京路交口)
联系人:安工
联系方式:0551-66223269
2021年1月6日
三、附件
答疑发布日期:2021年01月06日