您现在的位置: 首页 >> 答疑变更 >> 安徽公共资源交易集团项目管理有限公司 >> 工程

项目编号:

项目名称:

一、原公告主要信息

     原项目名称: 合肥市高铁南站小学及幼儿园项目室外附属工程

     原项目编号: 2021BFBGZ00473

     原公告日期: 2021年03月23日

二、公告内容(更正事项、内容及日期等)

    

合肥市高铁南站小学及幼儿园项目室外附属工程项目补疑2

(项目编号:2021BFBGZ00473

各投标人:

重要提示

1、人工费执行《关于贯彻执行2018版安徽省建设工程计价依据的通知》(合造价【201813号文)。其中定额人工费参与取费、取税,其相对于定额人工费增加的部分 / 元只计取税金。

2、本工程取费按“ 园林 工程取费标准”中“ 绿化、景观工程 ”的费率计取;其中园林工程中挖或填土石方量大于5000立方米的大型土石方工程,其企业管理费率8%、利润率8%,措施项目费率和不可竞争费率按园林工程相应费率乘0.6系数。

按业主要求,现对本项目招标工程量清单、最高投标限价编制作出如下补充:

第一部分:开标时间延期

因“ 清单、控制延期发放 ”,本项目开标时间延期至20214211000分,投标文件递交截止时间为20214211000分。开标地点为合肥市滨湖新区南京路2588号要素交易市场A区(徽州大道与南京路交口)314号开标室。

 

第二部分:招标需求

一、招标范围:

本项目为1个标段,位于合肥市包河区,为高铁南站小学及幼儿园配套附属工程。主要建设内容包括智能化(室外预埋及道闸设备系统)、电气、室外安装、给排水、道路、景观及绿化等配套工程;除特殊说明外,图纸设计范围内的所有内容,均按图计入,具体如下:

(一)室外总体及附属工程:

1、土方工程:包括围墙、管沟井土方开挖、回填、外运工程,室外绿化种植土换填、微地形整理等。

2、道路工程:包括路基、路面、侧缘石等。

3、室外景观工程:包含室外铺装、屋面铺装、运动场铺装、侧石、六角亭、地上(地下)标识标线、钢结构雨棚、景观小品等室外附属工程。

4、绿化工程:苗木栽植及养护等设计图纸范围内的所有内容,绿化养护期二年,养护等级一级。

5、室外排水工程:雨、污水管网、检查井、雨水口、雨水回收系统、化粪池、隔油池、水封井;与市政管网连接处理等其他项目,包含图纸设计范围内全部施工内容。

(二)安装工程

1、室外给水及消火栓工程:

1)室外给水及消防管网均按图计至与市政管网对接,市政道路位置主水表不计入,水表井及学校区域内水表全部计入。

2、室外景观(照明、喷灌):

1)室外照明:按图纸计入(含埋地管道、线缆、灯具及灯具基础等)在本次招标范围。配电箱的进线电缆及配管,由自管配电房引入不在本次招标范围。

2)室外喷灌:按图纸计入(含管道、管件、快速取水器、阀门、阀门井等)。

3)雨水收集利用提升系统:按图纸计入。

3、弱电工程:

1)弱电智能化:只计入室外管道、弱电井等预埋,监控杆件及基础不计入。

二、暂定项目:

(一)以下项目按照业主要求,以暂定工程量计入分部分项工程量清单,投标人综合考虑报价,标后按实际工程量结算。

(二)按照业主要求,本项目暂列金额为 20 万元,计入合肥市高铁南站小学及幼儿园项目室外附属工程“11-土石方工程”单位工程,投标人应按招标人所列的金额计入投标总价。

(三)执行暂估价的材料、设备、专业工程及其金额如下:

4、发包人供应材料、工程设备的采购、保管费,控制价中不再另行计取费用,投标人在总报价中综合考虑此费用。

三、按项列入清单的内容,标后不予调整:

以下项目按照业主要求,按项计入,投标人自行踏勘现场,综合考虑报价,中标后不予调整。

四、补充图纸及修改图纸的说明:

本工程在第一次发放图纸后,有补充图纸,具体详见图纸目录。

五、总承包服务费:

总承包服务费在工程量清单、控制价中不再单独计取费用,投标人在投标报价中须综合考虑此项费用,总承包服务费含在总报价中。由中标单位进场后按照中标价(不含暂列金额)的1%自行交付给总包单位。

六、温馨提示:投标人投标报价还须仔细阅读本项目招标文件,慎重报价。

1、本项目采用商品砼及预拌砂浆。

2、施工区域内物探勘察等不单独列项,投标人自行考虑实施措施,综合在投标报价中,中标后不予调整。

3、本项目所有的石材的加工费(包括不限于倒角、圆弧处理、异形加工等)投标人自行考虑报价,清单中不单独列项,中标后不予调整。

4、各类检查井井盖座(含各类管杆线检查井)均采用五防球墨铸铁井盖座,必须安设防坠落安全网,道路位置采用重型、宽边、五防球墨铸铁井盖。执行合重建管[2009]149 号文件要求,由投标人自行报价。

5、本工程含小学和幼儿园两个单体工程,开工时间可能不一致,施工工期按照监理单位下发的开工令计算,期间材料涨价等费用由投标人综合考虑报价,中标后不予调整。

6、中标后不得以任何理由要求增加费用,因事先不勘察现场造成的一切损失,由投标人自行承担。因临时设施影响后期室外附属及管网等施工的,临时设施必须无条件拆除,否则每天处以 10000 元违约金。

7、单体及地下室雨、污、废水、冷凝水管由室外附属单位连接至单体外的第一个检查井、室外雨污水、给水与市政管网连接、路面破复、土方开挖、管道接驳等不单独列项,投标人自行考虑,综合在投标报价中,中标后不予调整。

8、本项目开设2个道口,需按照相关要求办理市政、绿化施工审批手续,并负责道口与市政道路的顺接,包含道口开设的市政道路、侧石等破除及恢复、管线损坏部分的恢复、杂土清运等产生的费用,清单不单独列项,投标人自行考虑,综合在投标报价中,中标后不予调整。

8、清理现场30厘米内的建筑垃圾、灰土、地表杂土等;无条件配合燃气公司施工管道开槽、回填及土方外运;各种管线检查井在地形塑造完成后按照地形的需要进行升、降调整;因施工现场景观调整及交叉施工需要对已经种植的苗木进行迁移等,清单不单独列项,投标人自行考虑,综合在投标报价中,中标后不予调整。

第三部分:设计文件及技术补充说明

一、共性问题:

1、 现场是否有设计室外标高以上多余土方需要考虑?挖土方时产生的土方是否全部外运?用于基础回填的土方是否堆放在现场?

回复:本工程现场可堆土,开挖土方考虑内部倒运利用。取、弃土点由投标人在勘察现场后自行考虑,运距、土源费、弃土场等由投标单位勘察现场后自行考虑,在投标报价中充分考虑施工范围内的垃圾处理、弃土场费、土源费、保洁费、协调费、清表、修建运输通道及地下障碍物破除和拆运等费用,以及市容、路政、环保部门征收的等一切费用,综合考虑在报价中,中标后综合单价一律不予调整。

二、个性问题:

景观工程:

1、请明确小学沥青道路乳化沥青粘层具体做法。

回复:PC-30.5L/平方米、乳化沥青封层(ES-2

2、请明确景墙等部位真石漆做法。

回复:

3、请明确围墙铁艺栏杆、看台栏杆、景墙铁艺部分氟碳漆面层具体做法。

回复:富锌底漆两遍+氟碳漆面漆两遍

4、请明确围墙基础砖胎膜厚度及采用何种材质及砌筑砂浆,内部面层是否抹灰。

回复:厚度12厘米。MU5.0水泥实心砖,M5水泥砂浆砌筑,内壁不考虑抹灰。

5、请明确小学及幼儿园围墙混凝土结构混凝土标号。

回复:垫层C15,其余C30

6、小学进步广场此处位置是否为地雕,若是,其提供基层做法。

回复:详见雕塑节点图。

7、请明确小学进步广场此处台阶处排水管材质。

回复:取消此处排水管。

8、请明确小学渔樵耕读花园水系混凝土抗渗等级。

回复:P6

9、请提供小学确渔樵耕读花园生态卵石草沟反滤土工布具体参数。

回复:400/平方米。

10、请提供小学确渔樵耕读花园生态卵石草沟散置黄蜡石具体数量。

回复:20,材质调整为鹅卵石。

11、请明确小学确渔樵耕读花园六角亭夹胶玻璃胶片厚度及夹胶玻璃固定方式。

回复:夹胶玻璃同地库出入口顶棚玻璃:6+0.76PVB+6钢化夹胶玻璃。成品不锈钢驳接爪链接,硅酮防水胶填缝,缝宽10毫米。

12、请明确小学确渔樵耕读花园六角亭基础埋深。

回复:3.5米。

13、小学看台节点铺装与平面铺装总图不一致,以何为准?请明确。

回复:以平面铺装总图为准。

14、小学运动场足球架及篮球架是否在本次招标范围内?若在,请提供具体参数。

回复:

十一人制足球门 一组

规格:7.32*1.9*2.44

材质:2.5毫米镀锌钢管,足球门表面采用静电环氧基粉末喷涂处理,颜色白色,涂层厚度70-80微米,钢材在喷塑前经过打沙或抛丸等过程除锈。试品经GB1771-91 36小时盐雾试验,涂膜无变化,产品具有耐酸碱、耐湿热、抗老化等特点。

五人制足球门 两组

规格:3.0*1.2*2.0

材质材质:2.5毫米镀锌钢管,足球门表面采用静电环氧基粉末喷涂处理,颜色白色,涂层厚度70-80um,钢材在喷塑前经过打沙或抛丸等过程除锈。试品经GB1771-91 36小时盐雾试验,涂膜无变化,产品具有耐酸碱、耐湿热、抗老化等特点。

篮球架1

15、下图中抵趾板(成品)的材质。

回复:1200*30*10松木整木,表面涂环保树脂漆。

16、铁艺围墙填充区域是双面填充还是单面?

回复:单板。

17、灌注桩未明确护筒及泥浆造壁做法

回复:旋挖干孔。

18、本工程钻孔桩试验桩是否包含在工程桩之内?

回复:是。

19、请提供定制有轨电动伸缩门、健身器材具体参数。

回复:详见设施布置图。

 

20、幼儿园通用花坛压顶石材材质平面图与节点图不一致,以何为准?请明确。

回复:以平面图为准。

21、屋面泡沫混凝土垫层是否调整为素土回填?请明确。

回复:是。

22、图示位置做法未见,请明确?

回复:同大面花岗岩铺装。

23、排水沟索引是否有误,请明确?

说明: IMG_256说明: IMG_257

回复:排水以给排水图中标示为准。

24、环沟沉沙井设置在什么位置,平面图中未见,请明确?

回复:环沟沉沙井在运动场平面图上有标注。

25、图示位置混凝土等级未标注,请明确?

回复:C25

26、请明确无振动止滑坡道具体做法。

回复:面层为0.2公斤/平方米不加水树脂;4厚的止滑层,树脂、水及金钢砂比例为1:1:10(树脂0.6公斤/平方米,金刚砂公斤/平方米)2厚的抗压层,树脂、水及金钢砂比例为1:1:10(树脂0.6公斤/平方米,金刚砂6公斤/平方米)1:1树脂与水比例渗透封闭底层(树脂0.2公斤/平方米)

27、请明确电动卷帘门具体规格及做法。

回复:6000*3000毫米、5900*3100毫米,电动铝合金卷帘门,电动卷帘门电机功率1.5KW

28、幼儿园是否划分车行铺装和人行铺装,铺装基层是否只采用一种做法,请明确?

回复:消防车道所在沥青道路、植草砖停车位及伸缩门外入口广场为车行路。

29、幼儿园是否有垃圾桶,请明确?

回复:有。

30、请明确幼儿园非机动车停车位膜厚度。

回复:4毫米厚。

31、树池一为圆形树池,是否有误,请明确?

回复:树池断面做法一致,仅面层铺装形式及尺寸有差异。

32、图示部分是否有挡墙,请明确?

回复:参考xt-4.03挡墙花池详图。

33、线性排水沟索引的详图位置是否有误,请明确?

回复:给排水内容以给排水图中显示为准。

34、微地形底部是否做塑胶面层及基层,请明确?

回复:微地形上敷种植土及草皮。

35、铺装详图中做法与通用详图做法冲突,是否以通用详图为准,请明确?

回复:小学及幼儿园塑胶做法皆采用预制型橡胶面层。

36、图示贴面石材材质及粘结层均未提供,请明确?

回复:详见平面材质标注,池壁及池底统一为玻璃马赛克。

37、幼儿园屋顶除了铺装部位的其他屋面是否都需要按照种植屋面做法?

回复:箭头所示部分为坡屋面,不在本次设计范围内。

 

绿化工程:

1、苗木平面图与苗木数量表不一致以何为准?请明确。

回复:以平面图为准

2、请明确绿化存活、保存养护、日常管理等级及养护期。

回复:存活养护期1个月、保存养护期3个月、日常管理养护期21个月,养护等级一级。

3、请提供小学及幼儿园景石具体高度。

回复:高度0.6~0.8米。

4、请明确苗木铭牌具体数量。

回复:延道路周边设置,乔木每种树木两个(1304不锈钢不锈钢铭牌10*15厘米)。

5、请明确草石隔离带具体材质。

回复:PE材质。

6、小学苗木是否设置铭牌

回复:设置,做法同幼儿园,数量为130块。

 

排水工程:

1、请明确景观排水管道是否均为De315、中粗砂回填至管顶以上500毫米。

回复:是。

2、请明确屋面排水沟及卵石排水沟具体做法。

回复:300厚卵石,宽度详见图纸。

3、请明确间隙式排水口清扫口具体做法。

回复:C15混凝土垫层、C25P6井壁及井底、内配双层双向C16@150钢筋。

4、请明确溢流口具体做法。

回复:10C15垫层、M7.5砌筑MU10砖、铸铁溢流口

5、请明确景观排水中新建井做法

回复:圆形Ф800毫米,具体详见图集12S522,第2124

6、幼儿园室外废水做法是否按照污水管道做法?请明确。

回复:是。

7、井周加固混凝土及钢筋大样图与设计说明不符,以何为准。

回复:C30钢筋混凝土井圈、HRB400钢筋。

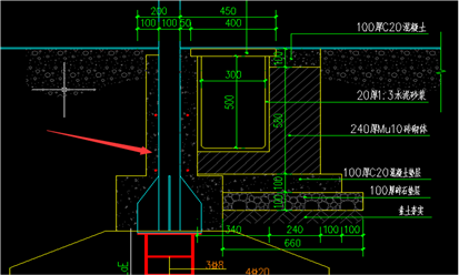
8、下图中刚性防水套管在不在招标范围内,不同尺寸总共有多少个,材料是什么。

回复:刚性防水套管不在招标范围内,

雨污出户支管及压力排水管管材见下表:压力排水采用内涂塑钢管,埋地部分外部采用加强级防腐处理。

9、下图中为哪种管径的管道

回复:管径为DN50,PPR管。

智能化工程:

1、上图所示电动升降柱系统配管规格型号及敷设方式请明确?

回复:设备参数为,基础混凝土等级为C20

2、室外安防箱配管规格及敷设方式请明确。

回复:JDG20

 

室外安装工程:

1、幼儿园室外消防系统湿式报警阀间里面报警阀等是否计入?

回复:总包范围内,不计入

2、小学消防系统灭火器是否计入?

回复:不在本次范围内,室内管道不在本次招标范围内。

3、阀门井、水表井做法,请明确?

回复:参照设计说明中图集做法

4、室外景观喷洒管道材质请明确?

回复:PE给水管

5、屋顶景观洒水图例说明: IMG_256是否也代表洒水栓?

回复:是的

6、幼儿园屋面给排水,给水、排水管道材质请明确?

回复:取消不做,图纸取消。

7、幼儿园屋面给排水,洗手池成品还是砖砌请明确?

回复:取消不做,图纸取消。

8、室外雨水收集系统水管及设备材料(除吸水模块),是否以设计提供厂家专业设备参数数量一览表为准?

回复:是的。

9、室外景观照明配电箱进线电缆引自低压配电房,平面管线布置请明确?

回复:进线供电范围,本次不考虑

10、LED白光柔性灯带固定不锈钢柱内,请明确大样图例或做法?

回复:见景观宇宙花园大样图

11、LED彩色硬灯带平面图中什么位置布置请明确?

回复:见景观宇宙花园大样图

12、路灯照明配电箱是否落地安装,基础接接地做法请明确?

回复:配电箱放入门卫室壁挂安装。

13、幼儿园室外非机动车充电桩是否计入?

回复:只计充电桩,线管等不计入。

14、室外弱电井尺寸做法请明确?

回复:砖砌、铸铁五防、宽边、重型井盖800*800*900毫米,手孔井600*600*700毫米。

 

 

 

招标人名称:合肥市包河区重点工程建设管理中心

地址:合肥市包河大道118

联系人:余工

联系方式:0551-63357659

招标代理:安徽诚信项目管理有限公司

地 址:合肥市滨湖新区南京路2588号(徽州大道与南京路交口)六楼

联系人:张工

联系方式:0551-66223672

 

202142

 

三、附件

      答疑发布日期:2021年04月02日

附件:2021BFBGZ00473项目招标补疑2.pdf