您现在的位置: 首页 >> 答疑变更 >> 安徽公共资源交易集团项目管理有限公司 >> 工程

项目编号:

项目名称:

一、原公告主要信息

     原项目名称: 庐江县余月湖畔安置房二期工程施工

     原项目编号: 2020BFNGZ01601

     原公告日期: 2021年06月03日

二、公告内容(更正事项、内容及日期等)

    


庐江县余月湖畔安置房二期工程施工项目补疑1

(项目编号:2020BFNGZ01601)

     

各投标人:

重要提示

1、人工费执行《关于贯彻执行2018版安徽省建设工程计价依据的通知》(合造价【2019】13号文)。

2、本工程取费按“  建筑   工程取费标准”中“民用建筑”的费率计取;其中房屋建筑、市政工程中挖或填土石方量大于5000立方米的大型土石方工程,其企业管理费率8%、利润率8%,措施项目费率和不可竞争费率按房屋建筑工程或市政工程相应费率乘0.6系数。

按业主要求,现对本项目招标工程量清单、最高投标限价编制做出如下补充:

第一部分:招标文件修改

一、本项目招标文件第四章合同条款及格式第三节专用合同条款12.4.1 付款周期修改为:

关于付款周期的约定:本工程款按工程进度支付(简称“进度款”,工程款不含暂列金额,下同)。

1、工程款支付方式

1)预付款  本工程在开工前7天至开工后28天内预付安全文明措施费(安全施工费、文明施工费、环境保护费、临时设施费)总额的30%,其余部分与进度款同期支付。开工前7天至开工后28天内支付全部的扬尘污染防治费和一个月的工资性工程款。

2)房建工程款  工程进度款支付比例为实际完成合格工程量的75%;进度款支付节点为:±0.00、结构每3层、主体结构封顶、主体结构验收。其中农民工工资根据劳务合同、用工花名册、实名考勤等资料,按月申请支付。

装饰装修和其他附属工程进度款按月支付,支付比例为实际完成后合格工程量的75%。

进度款不足100万元的不予支付,付款顺延,工程竣工验收合格后付至合同价款的85%,完成人防、环保、消防等验收后付至合同价款的90%停止支付,结算审计完成后付至审定价款的97%,其余3%为工程质保金,缺陷责任期按相关法律法规规定,期满付完余款(无息)。如因征地拆迁等外部因素不具备施工条件的,可根据实际施工情况分段按节点支付工程款。

备注:如承包人采用“银行保函或保证保险等方式”提交等额工程质量保证金,则在工程竣工结算完成后招标人应付至最终结算价款的100%(无息)。

2、其他事项

1)审计费用  工程审计以政府审计机关审计结果作为竣工结算的依据。承包人上报的工程结算审计核减额超过送审金额10%的,其超过10%以上部分按5%的审计咨询费用由承包人承担,发包人在支付工程结算款时予以代扣。

审计相关规定参照《安徽省人民政府关于修改〈安徽省政府投资建设项目审计监督办法〉的决定》、《关于印发庐江县财政性投资建设项目跟踪审计暂行办法(试行)的通知》(庐政【2015】44号)等政府文件。

2)造价调整  因设计变更、经济签证等引发工程造价增加的,或涉及约定调整合同价款的情形,待结算审计后支付,进度款不予考虑。

3)扣还经费  若投标人实施的某项工作或提供的货物等不符合合同要求,在支付进度款时,招标人可暂扣相应款项金额,直至符合要求为止。若投标人虚报进度等原因多付或预付进度款的,招标人可在日后的进度款支付中扣还;任何一次付款或退还保函均不代表招标人对相关工作的接受、批准或同意等。

4)工程款支付原则上按上述方式执行;在执行过程中,若有新的政策性规定,从其规定 。

二、本项目招标文件第四章合同条款及格式第三节专用合同条款12.4.7 农民工工资管理中5其他修改为:

其他。项目工程量全部结束,因供电等配套设施未完成等原因影响项目竣工验收时,可按中标价85%申请工程款,款项优先垫付农民工工资。

 

第二部分:招标需求

一、招标范围:

    房建专业: 本项目分为1个标段,其中本标段工程包括15栋住宅楼、1栋地下室(含人防地下室)、3栋配电房、1栋开闭所、1栋幼儿园、1栋门卫室、2栋商业、基坑支护、室外附属工程及前期22#23#楼地下室强电系统施工。总建筑面积130747.45平方米。本次招标内容包含土石方工程、土建工程、安装工程、室外工程等设计图纸及答疑范围内的全部内容(除特殊说明外)。

(一)建筑工程

1、土建工程:包含土石方工程、人防工程、主体钢筋砼结构、墙体、保温、防水、基坑内检修钢梯等;室外台阶和散水、地下室内导向箭头标志、车档、车行道设施、停车位标志、护墙防撞构造、人防指示牌等。

2、装饰工程:包含外墙面装饰工程、室内外门窗工程、内墙面、楼地面及顶棚装饰工程、入口坡道处的栏杆、楼梯栏杆、信报箱等。

(二)安装工程

1、给排水工程:给水工程、排水工程、雨水工程、消防工程等施工范围,单体楼给水自楼层水表后开始计入,水表前仅计入预埋套管。室外给水、生活泵房供水设备和管道均不计入。消防水系统按照图纸设计全部计入。

2、暖通工程:通风、防排烟工程按图纸设计全部计入;

3、电气工程:各单体楼(含地库)自楼内第一个总配电箱(柜)开始全部计入,箱(柜)前仅计入预埋管,预埋管计至室外1.5米。其中电表不计入。电梯按照图纸设计全部计入。

4、弱电工程(含驻地网系统):可视对讲系统按照图纸设计全部计入。综合布线及有线电视系统按照图纸全部计入。水表信号远传仅计预埋,电梯五方对讲按照设计图纸计入。

5、消防电工程:包含火灾自动报警系统、电气火灾监控系统、消防电源监控系统、防火门监控系统;按照图纸设计全部计入。

6、停车管理系统(小区出入口、地库出入口),仅计管道预埋。

7、22#、23#楼地下室本次仅计入强电系统(配电箱,电线电缆,灯具等)。

(三)室外总体及附属工程

1、道路工程:包含土方、基层、铺装、沥青道路、路面、侧石、道路附属工程等设计图纸招标范围内的所有内容(一期与二期之间的沥青道路不在本次招标范围内)。

2、排水工程:包含沟槽管井土方、管道、检查井、雨水口、化粪池、雨水收集系统等设计图纸招标范围内的所有内容。

3、景观工程:包含土方、基层、景观小品、停车位、侧石、围墙、景石、住宅楼一层架空层地面、入户台阶、平台、坡道、休闲健身娱乐设施、垃圾桶等设计图纸招标范围内的所有内容。

4、绿化工程:包括换填土、乔木、灌木、色块、草坪栽植、养护等设计图纸招标范围内的所有内容。

5、路灯工程、监控系统(仅计预埋管)、消防电气、消防水工程;

6、景观给水系统。

(四)人防工程:除临战期安装的材料设备外,其余均计入本次范围。

(五)界限划分:

本次清单编制按水平划分,主楼从正负零顶板(或地下室顶板)开始计算,自行车坡道及其挡墙、自行车与机动车坡道雨棚、采光井、地下室顶板及主楼地下室顶板防水、正负零以下楼梯段计入地下室部分,正负零以上及正负零处的坡道、散水、台阶、地面、室内回填等计入地上部分,正负零处的节点计入地上部分。

二、暂定项目:

(一)以下项目按照业主要求,以暂定工程量计入分部分项工程量清单,投标人综合考虑报价,标后按实际工程量结算。

1、淤泥、淤泥质土方、不良土的挖、运暂定量8000立方米,投标单位需自行勘察现场,运距自行考虑,综合单价包含一切费用,列入土石方工程(建筑工程)分部分项工程量清单中。

2、C15素砼回填暂定量8000立方米列入土石方工程(建筑工程)分部分项工程量清单中。

3、开闭所旋挖钻成孔灌注桩桩长设计图纸说明约6~7米,桩长暂定 7 米。

4、S1#S2#商业楼旋挖钻成孔灌注桩桩长设计图纸说明约6~7米,桩长暂定 7 米。

5、地下室旋挖钻成孔灌注桩桩长设计图纸说明按实际最小桩长应保证6米,桩长暂定 7 米。

(二)以下项目按照业主要求,暂列金额为 1000万元,计入庐江县余月湖畔安置房二期工程施工土石方工程(建筑工程)其他项目清单内,投标人应按招标人所列的金额计入投标总价。

(三)执行暂估价的材料、设备、专业工程及其金额如下:

1、材料的名称、规格型号、金额;无

2、设备的名称、规格型号、金额;无

3、专业工程名称、工程内容、金额;无

上述明细投标人应按招标人所列的金额计入投标总价。

4、发包人供应材料、工程设备的采购、保管费,控制价中不再另行计取费用,投标人在总报价中综合考虑此费用。

三、按项列入清单的内容,标后不予调整:

以下项目按照业主要求,按项计入,投标人自行踏勘现场,综合考虑报价,中标后不予调整。

四、补充图纸及修改图纸的说明:

本工程在第一次发放图纸后,无补充图纸,具体详见图纸目录。

五、总承包服务费:无

六、温馨提示:投标人投标报价还须仔细阅读本项目招标文件,慎重报价。

1、地基及复合地基承载力静载检测、桩的承载力检测、锚杆锁定力检测、建筑物沉降监测、建筑物倾斜监测等各项检测费用包含在本次招标范围内,工程量清单不单独列项。投标报价时需充分考虑该部分费用。

2、机械钻孔桩、抗拔锚杆均按设计图纸有效桩长计入清单,投标人根据设计图纸、地勘等相关资料,综合考虑后报价,中标后桩长及入岩增加等费用均不予调整。

3、土方回填至场区室外设计标高,同时拆除场内施工期间使用的临时道路、硬化地面及设备基础后,达到业主要求后移交给其他后期工程的施工单位。

4、工程施工应完全按照《合肥市住宅工程质量通病防治导则》和省地标DB34/1659-2012执行,当二者不一致时,从严执行。当图纸未设计或图纸设计未明确时均应按照导则计入。投标人应综合考虑相关费用,自行报价,中标后施工单位不得以任何理由办理经济签证。

5、土方平衡总平面图的平整后土方标高如果与图纸设计室外标高有部分偏差,此部分偏差由投标人自行踏勘现场,综合考虑,自行报价,中标后不予调整。

6、现场工地围墙及施工便道建设、维护、拆除等费用(包括但不限于工地围墙、周边场地及施工便道需按要求进行美化维护,包括围墙彩绘、广告、硬质围墙内部粉刷、临时设施修补、施工便道养护、维护、保洁等,以及设置文明施工或绿色施工要求的其他临时设施和施工过程中临时检查用的广告、标语、宣传标语的更换张贴等),投标人自行踏勘现场,综合考虑报价,中标后不予调整,不单列项目。

7、已完工程(含建设单位直接分包的单位工程)的成品保护及有特殊要求的费用由承包人负责承担,费用应包含在报价之中,中标后不予调整,不单列项目。

8、投标报价除考虑临时设施费用外,还应考虑工程完工后临时设施的拆除、及其拆除后建筑垃圾外运等费用,承包人应做到“工完、料尽、场地清”。包括施工现场的临时房屋及其基础、临时道路、场地硬化、临时围挡及其基础、塔吊等设备基础及其它为满足施工需要的临时建筑物和构筑物等应全部破除、清理,工程所产生建筑垃圾应全部清运出现场(不得堆放在场区周边),恢复施工场区及周边区域原状,由此发生的费用由投标单位综合考虑在投标报价中,中标后不予调整,不单列项目。

9、本工程所有剪力墙穿墙螺栓不回收,一次性使用;由此发生的费用(含割除螺栓后墙面处理费)由投标单位综合考虑在投标报价中,中标后不予调整。

10、本项目所处地域根据以往经验,在挖土方时有可能会出现岩石、流沙等不利因素,由此发生的费用由投标单位综合考虑在投标报价中,中标后不予调整,不单列项目。

11、弃土运距、弃土点及外借土运距、借土点(包括取土场清表、便道、弃土场平整等)由投标人自行踏勘现场综合考虑后报价,含土源费,结算时不予调整。场内外弃土方确保须随挖随运,不得堆放施工现场,同时必须满足合肥市、庐江县文明创建及扬尘污染相关规定。工程土方、建筑垃圾等外运须符合庐江县有关部门及招标人对渣土运输及弃土相关规定。渣土运输及道口开设时须提前到城管局办理相关手续,方可施工。

12、涉及本项目所有的专家评审、专家论证费用,包含在投标总价中,投标人综合考虑,自行报价,标后不予调整,不单列项目。

13、施工单位中标后需无条件配合业主办理施工许可证直至竣工备案结束的一切相关手续所产生的费用,费用包含在投标总价中,投标人综合考虑后报价,标后不予调整,不单列项目。

14、投标单位自行踏勘现场,应做好周边建筑物、构筑物(含管网)等的安全防护工作,安全防护费用包含在投标总价中,投标人综合考虑后报价,标后不予调整,不单列项目。

15、室外水、电管道的覆土厚度不满足规范要求,需要采用砼包管的措施费用,不单列费用,投标人自行报价,费用含在投标报价中,中标后不予调整。

16、所有与设备调试相关产生的人工、材料、机械等费用,费用包含在投标总价中,投标人综合考虑后报价,标后不予调整。

17、施工进场道路使用时可能未移交交警和城管等进行管理,需投标单位进行道路综合管理养护,包括但不限于道路清扫、洒水、维修、路口交通指挥、道路安全保障、夜间照明等;费用包含在投标总价中,投标人综合考虑后报价,标后不予调整。

18、基坑应急措施处理费,含坡顶水平位移及竖向沉降、深层水平位移、管线应急处理措施等,费用包含在投标总价中,投标人综合考虑后报价,标后不予调整。

19、地下室照明费、外墙后浇带先回填外围留置工作井费、大体积砼浇筑专项措施费,费用包含在投标总价中,投标人综合考虑后报价,标后不予调整。

20、地库所有穿墙、板的预留洞口、预留钢套管、管道穿墙板的开洞、封堵等费用,费用包含在投标总价中,投标人综合考虑后报价,标后不予调整。

21、室外综合管线及地下管线交叉较多、各投标人应综合考虑管线避让等技术处理措施引起的工程量变化等费用,费用包含在投标总价中,投标人综合考虑后报价,标后不予调整。

22、控制柜、配电柜、箱后期安装调整位置、修复及加固费用,费用包含在投标总价中,投标人需综合考虑后报价,标后不予调整。

23、若现场施工场地狭小,无办公区、生活区等场地,投标人须勘察现场充分考虑上述因素,费用包含在投标总价中,投标人综合考虑后报价,标后不予调整。

24、施工围墙铺挂绿篱,费用包含在投标总价中,投标人综合考虑后报价,标后不予调整。

25、地下室人防封堵除图纸设计外,其他平时及战时封堵需满足人防验收要求,保证人防验收合格,新增的封堵费用,费用包含在投标总价中,投标人综合考虑后报价,标后不予调整。

26、电梯安装验收合格后至工程竣工交付使用期间,总包单位不得以任何理由拒绝附属单位使用电梯,期间电梯发生故障及定期的维护保养产生的相关费用,费用包含在投标总价中,投标人综合考虑后报价,标后不予调整。

27、本工程基坑支护地下室部分按图纸计入;投标人应全面勘察现场并完善深基坑支护工作,投标人应将涉及到的基坑支护所有费用(含专项设计费、专家论证费、检测费、施工费用等一切费用)在投标文件(商务标)中综合考虑报价,所有费用均含在投标报价中,一次性包死,中标后不予调整。进场时须组织专业基坑支护进行施工,不得以任何理由增加工程造价。中标单位进场须经专家论证后方可施工,涉及到专家意见对图纸的任何调整及细化,后期施工不再增加任何费用,以上费用:包含在投标总价中,中标后不予调整。

28、危险性较大的分部分项工程;投标人根据图纸设计,综合考虑报价 (含专项设计费、专家论证费、检测费、施工费用等一切费用)在投标文件(商务标)中综合考虑报价,所有费用均含在投标报价中,一次性包死,中标后不予调整

29、本工程采用商品砼和预拌砂浆。

30、临时施工用水接引及安装:临时用水接引至项目现场,满足设计及业主要求,费用均含管网建设费、增容费、破路、恢复、水表、管道、报装及内部接引等所有费用,费用还需包括开户、施工、一直到最终通水整个期间的一切费用(含调试阶段);必须保证证件齐全、手续合法,其他见招标文件说明;施工用水按后期正式用水管径报装;由此发生的费用由投标单位综合考虑在投标报价中,清单控制价中不单独列项,中标后不予调整。

31、临时施工用电接引及安装:包括供电设计、开户报装、管线铺设、项目完成后的拆除、涉及管道沿线铺设的场地复原、相关设施需进行的安全防护等所有相关费用(含调试阶段);本施工项目结束后其相关设备、配套杆、电缆等残值归投标人所有;由此发生的费用由投标单位综合考虑在投标报价中,清单控制价中不单独列项,中标后不予调整。

32、市政道路开道口与小区出入口位置的协调及处理、新旧道路接头处理:开设正式道口与临时道口均由中标单位自行申报,中标单位需按照合肥市、庐江县市政和园林绿化管理部门相关要求办理市政、绿化施工审批手续,并负责临时施工便道与市政道路的顺接费用,由此发生的费用由投标单位综合考虑在投标报价中,清单控制价中不单独列项,中标后不予调整。

33、小区内外管道(雨污水、给排水、消防、弱电等)成品保护、衔接等:小区内外各种管道的衔接(含市政管井高低调整等)、成品保护等一切费用;由此发生的费用由投标单位综合考虑在投标报价中,清单控制价中不单独列项,中标后不予调整。

34、场地清理:现场内水塘排水,清理现场地表水、树根、杂草,原有建筑和构筑物老旧基础、道路、硬化、绿化移植及其他障碍物等的拆除、清理及建筑垃圾外运;由此发生的费用由投标单位综合考虑在投标报价中,清单控制价中不单独列项,中标后不予调整。

35、因各种杆管线(强弱电、通讯、供水、燃气、供热、排水等杆管线)影响施工,需按照产权单位相关规定加固保护所引起的临时支护等保护费用,施工单位如果在施工过程中造成地上地下杆管线损坏,恢复及维修费用由施工单位自行负责。投标人勘察现场,综合考虑报价,所有费用均含在投标总价中,清单不单独列项,中标后不予调整。

36、施工便道费用已综合考虑在投标总价中,由投标人自行考虑,清单不单独列项,标后亦不予调整。

37、施工单位中标后需无条件配合业主办理施工许可证直至竣工备案结束的一切相关手续所产生的费用,费用包含在投标总价中,投标人综合考虑后报价,标后不予调整,不单列项目。

38、电梯轿箱防护(采用16毫米厚木工板)不单独列项,费用包含在投标总价中,投标人综合考虑后报价,标后不予调整。

39、所有项目开洞、堵洞、恢复(含管洞、墙洞、板洞等在内的各种穿墙、穿楼板管道封堵;包括但不限于防火封堵、给水、排水、供水、电气、弱电、燃气、消防等配套单位的洞口预埋、开洞、封堵),费用均包含在投标总价中,清单不单独列项,中标后不予调整。

40、消火栓、配电箱背面粉刷加固费用均包含在投标总价中,清单不单独列项,中标后不予调整。

41、屋面排气管及透气管费用均包含在投标总价中,清单不单独列项,中标后不予调整。

42、沉降观测费用均包含在投标总价中,清单不单独列项,中标后不予调整。

43、电梯机房防鼠措施费用均包含在投标总价中,清单不单独列项,中标后不予调整。

44、大体积砼施工增加费均包含在投标总价中,清单不单独列项,由投标人自行考虑报价,中标后不予调整。

45、给排水、电气、消防及通风等所有抗震支吊架费用(含前期22#23#楼地下室)包含在投标总价中,清单不单独列项,由投标人自行考虑报价,中标后不予调整。

第三部分:设计文件及技术补充说明

一、 土建共性问题

室外附属工程(绿化,道排,围墙,雨污水等)是否在本次招标范围内,若在请提供具体图纸?

答:计入

2、本工程土方外运、弃土费如何考虑?

答:场内外土方确保随挖随运,土方不得堆放施工现场,土方回填全部考虑外运回填。投标人自行勘察现场,综合报价中标后不予调整。挖运包括土方开挖(含建筑垃圾)、装车、场内运输、场外运输(投标人需自行考虑弃土场及运距)、弃土场卸土及整平、场内及弃土场土方运输车辆临时便道修建及养护、场内回填、场内及弃土场地面积水排除等全部施工内容。外运运距由投标人自行踏勘现场后综合报价,该报价应包含土源费、弃土场费用、办理渣土证费用、城市道路卫生清扫保洁费用等一切可能发生的相关费用,并且中标人负责办理渣土外运等相关行政许可手续并承担相关费用,中标后不得调整。

3、本工程直径6的钢筋是否采用直径6.5的钢筋计入?

答:是的。

4、本项目中永久性工程竣工铭牌、楼号牌、楼层牌、单元牌、门牌是否计入,若计入请明确具体做法?

答复:计入,答按合建质安〔2011〕34号文要求,字体统一采用凹刻宋体,保存年限应为建筑物的使用年限,尺寸及要求详见设计图纸。

5、二次构件及楼地面砼是否采用非泵送商品砼?

答:是。

6、电梯召唤孔无具体规格及做法请明确?

答复:现场预留复合后期电梯安装要求。

7、信报箱是否计入,若计入请明确具体做法?

答:计入,不锈钢成品信报箱  常规型:长220*高140*宽300。

8、屋面女儿墙内外侧节点无保温,节能节点有保温以何为准?

答:以节能节点为准。

9、 屋面排烟帽无具体做法请明确?

答:

 

 

10、阳台晾衣架由用户选购成品是否不计入?

答:不计入。

11、女儿墙内侧装饰做法是否同外墙?

答:详见图纸说明4.2.3条:上人屋面女儿墙内侧罩外墙涂料,外墙涂颜色同“饰面三”。

12、空调百叶内侧外墙装饰做法是否同外墙?

答:是的,详见说明4.9(1):格栅后部外墙面做法及颜色同相邻外墙面做法。

13、太阳能热水器安装业主自理是否不计入,支架是否不计入?

答复:不计,本次招标只计入预埋件。

14、室内胶合板门,玻璃内门由建设单位选型定购是否计入?

答:室内木门不计入,厨房推拉门不计,阳台推拉门计入。

15、不同基体交接处钢丝网及网格布搭接宽度建筑说明及结构说明冲突,建筑说明外墙搭接宽度为500内墙搭接宽度为300,结构说明搭接宽度为400,具体以何为准?

答:以建筑说明1.3.7条为准:砌体填充墙与混凝土柱、梁、剪力墙等不同材料接处,外墙面采用热镀锌电焊网(直径≥1.0毫米)抹聚合物砂浆并锚固的加强带进行抗裂处理,加强带距接缝部位每边宽度不小于250。内墙面采用加强型耐碱玻纤网格布抹聚合物砂浆并锚固的加强带进行抗裂处理,加强带距接缝部位每边宽度不小于150。楼梯间和人流通道的砌体填充墙应满铺热镀锌电焊网(直径≥1.0毫米),砂浆面层加强。内外墙体砌筑砂浆应饱满,做好分格缝,防止粉刷开裂。

16、飘窗内侧矮墙结构节点显示为砼墙,建筑节点显示为砖墙以何为准?

答:以结构图为准。

17、空调百叶外侧栏板结构图显示为砼节点建图显示为砖墙加砼压顶,以何为准?

答:按照结构为准。

18、外墙非保温墙面做法请明确?

答:详见建筑说明4.3条。

19、 底层外窗及阳台门防盗措施具体做法请明确?

答:不计入。

20、 电梯门套具体做法?

答:电梯门套计入,具体详13J404第40页1做法,不锈钢板厚度为1.2毫米

21、 屋面保温板具体厚度?

答:详节能一览表。

22、 外墙保温做法与节能节点大样不符,以何为准?

答:以保温说明为准

23、 关于砌体种类建筑说明与结构说明不符以何为准?

答:以建筑图为准。

24、 建筑说明3.4.2.1厨卫防水埂砼等级为C20与结构说圈梁为C25不符,以何为准?

答:以建筑图为准

25、建筑说明厨卫墙体1.45m以上材质为加气混凝土实心砌块,结构说明为外墙和卫生间墙体为为非承重煤矸石空心砖,墙体材质划分以何为准?如厨卫墙体材质调整是否仅内隔墙材质调整还是四周维护墙体材质均应调整?

建筑说明

结构说明

 

答:1.45米以下为煤矸石空心砖,1.45米以上为加气混凝土实心砌块
26、主楼客餐厅楼地面配筋地面具体做法请明确?

答:40厚C20细石砼找平层内配∅4@100双向钢丝网片(4.5X4.5米设分仓缝,缝内嵌硅酮建筑密封胶)

27、外门窗纱网是否计入?

答:不计入。

28、外墙装饰图纸设计为外墙装饰砂浆,一期为真石漆,是否统一?

答:做法修改为真石漆,做法及颜色与前期22#23#楼保持一致。

29、 建筑工程一切险是否计入?

答:计入,费用按65万计入土方工程其它项目清单内,由投标人自主报价、自行购买,中标后不予调整,招标人不再另行支付。

30、 设计图纸室内房间、阳台、机房等顶棚图纸无粉刷层,有腻子及涂料装饰层,此部分顶棚是否做清水模板?

答:按清水模板施工。

 

二、 土建个性问题

1、1#配电房

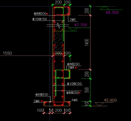
1)结施-06/7中下挂节点是否伸至框架柱边?

答: 仅门窗洞口位置。

2)一层坡道无具体做法是否参照2#配电房做法?

答:是,详12J003-A7-1A节点。

3)架空层电缆沟做法待供电公司工艺确定后配合设计是否暂不计入,室内回填是否暂不考虑电缆沟部分?

答:是。

4)屋面防水上翻高度图纸未明确,请明确具体高度及做法?

答:500毫米。

5)雨棚防水做法选用图纸12J201-1-W16/A7是否有误,是否应为12J201-1-A16/A7?

答:是。

6)所有外窗装不锈钢防盗网,不锈钢管材具体规格及型号?

答:按此做法计入。

 (7)女儿墙内侧装饰做法是否同外墙?

答:是。

(8)门窗表中C1220门窗洞口尺寸为1200*2500毫米与立面不符,是否修改为1200*2000毫米?

答:一层为1225,二层为1220。

(9)室外楼梯底板及侧边装饰做法是否同外墙?

答:是。

(10)空调板底板防水砂浆厚度及等级图纸未明确,请明确具体做法?

答:20厚1:2水泥砂浆(掺5%防水剂)。

 

(11)吊装平台屋面防水做法选用图集12J201-A7-A16保护层未涂料保护层,图纸标注为防水砂浆找坡2%,以何为准?

答:按防水砂浆找坡2%。

2、2#配电房

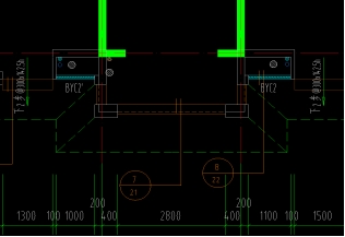
(1)门窗表中有C0926建筑平面图无,是否应为C1226?

答:平面南北侧均为C0926,消防救援窗为1226。

3、自管配电房

(1)-0.8米板下是否有砼垫层,板下梁侧边是否采用砖胎膜,请明确具体做法?

答:-0.8米板下有混凝土垫层,板下梁侧边可以采用200厚砖胎膜(MU5.0煤矸石实心砖M5水泥砂浆)。

 (2)-0.8米处KL5无配筋及截面尺寸是否同KL4?

答:KL5编号有误,改为KL4。

(3)屋面层梁WKL4是否应为WKL2(配筋及截面尺寸)?

答:WKL4编号有误,改为WKL2。

4、开闭所

(1)旋挖钻成孔灌注桩桩长设计图纸说明约6~7米,是否暂定7米?

答:暂定7米。

(2)-0.8米板下是否有砼垫层,板下梁侧边是否采用砖胎膜,请明确具体做法?

答:-0.8米板下有混凝土垫层,板下梁侧边可以采用200厚砖胎膜(MU5.0煤矸石实心砖M5水泥砂浆)。

(3)结施07/07节点4挡土墙顶标高-0.6米,高度是否有误,是否应为0.0米?

答:结施07/07节点4挡土墙顶标高改为±0.000。

(4)门窗表中有C0926建筑平面图无,是否应为C1226?

答:平面南北侧均为C0926,消防救援窗为1226。

5、13~15#楼

 

(1)窗下口压顶宽度是否为250毫米图示部位是否应为100毫米?

答:是。

(2)机房顶结构板图图示有梁,梁图没有以何为准?

答:板图中有梁,梁线与线脚线重叠,按梁图为准。

(3)如图所指部位是否均安结施4/28节点10a~c【砖墙部分】,15a~c【砼墙部分】,16a~c【砖墙部分】施工,若是砼墙附墙垛砼等级是飞砼墙还是统一按C30?

答:按节点详图做法,并配合建施图,混凝土等级按C30。

(4)屋面图示部位女儿墙做法是否同外围女儿墙做法?

答:详建施图。

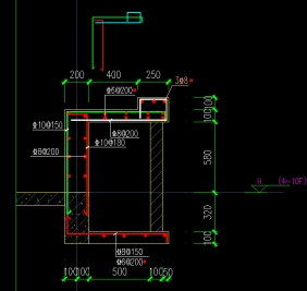
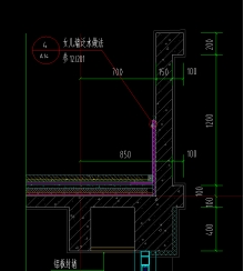
(5)一层风井外围防护栏杆无具体做法请明确?

答:栏杆位置由外侧移至内侧,详见下图。

 

(6)11层室内顶铝板封堵无具体做法请明确?

答:修改为纸面石膏板,具体做法参05J909《工程做法》图集棚16/DP11。饰面颜色同卧室。

(7)13#14#楼机房层墙柱图有四个柱子

梁板图有6个柱子,以何为准,是否参15#楼为6个柱子?

答:是。

(8)13#~15#楼130板厚板底筋钢筋多大,图纸未明确,请明确具体做法?

答:φ6@110,HRB400级钢筋。

6、地下室

(1)主楼内不同厚度筏板变截面尺寸做法是否参地库做法?

答:按图集16G101-3页92中相应做法,a取45度。

(2)12#楼坡道结构做法图纸未明确,请提供具体做法?

答:12#楼坡道结构做法在单体图中明确具体做法。

(3)16#楼夹层梁板图中,16/D轴处以及11轴梁无具体配筋及规格尺寸请明确?

答:16#楼结构图中明确配筋。

 

 

 

 

 

 

 

 

(4)20#楼夹层梁图中,5-7/A-B轴,17-18/C-F,13-16/E-F梁无具体配筋及规格尺寸请明确?

答:20#楼结构图中明确配筋。

 

 

 

 

 

 

 

 

 

(5)25#楼夹层梁中,13/H-M轴梁无具体配筋及规格尺寸请明确?

答:25#楼此缺失梁配筋详26#楼同楼层同位置处梁截面及配筋。

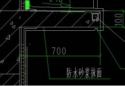
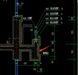
(6)建筑说明要求外墙防水中保护层与防水层之间用砂填实,填实厚度为多少?

答:填实。

(7)建筑说明中顶板防水材料为4厚自粘聚合物改性沥青防水卷材(聚酯胎),但在下面做法中说明为3厚,具体厚度为多少?

答:4厚

(8)地下室桩采用什么材质做法请明确。

答:详见旋挖钻孔灌注桩设计说明。

(9)消防水池及吸水槽的具体建筑做法是什么?

答:混凝土浇筑。

(10)车库内应设置行车减速带、反光带等停车辅助设施,应设置各类交通标志及标线,坡道出入口应设置车道分隔带、反光条及其他安全设施。以上设施由业主于工程主体完工后根据实际使用情况安装。本次招标是否计入?若计入具体材质做法是什么请明确。

答:计入,按图纸及所选图集做法。

(11)地下室的标志标线是否计入?

答:计入。

(12)一期二期地库交接处如何处理?

答:一期图纸中已留有后浇带

(13)标志标线图中的定位器是否为车档?

:是。

(14)防撞立柱中的橡胶防撞板高度为多少?

:1米。

(15)配电房中防霉涂料墙裙2米,2米以上再设石膏板墙面?

答:是。

(16)地下室设备等用房顶棚图纸未注明做法,是否设建筑做法?

答:白色防水防霉涂料。

(17)地库中机动车坡道高差处如何处理?

答:采用C20素混凝土回填。

(18)12#、16#、18#等主楼边非机动车入口无结构做法?

答:补充12#、16#、18#等主楼边非机动车入口结构做法。

 

 

 

 

 

 

 

 

(19)主楼出地下室顶板外墙防水做法是否同地下室外墙?

答:是。

(20)旋挖钻成孔灌注桩桩长设计图纸说明约6~7米,是否暂定7米?

答:暂定7m。

7、12#楼

(1)建施及结施墙身详图1显示飘窗板挑出650,结构板图中飘窗示意线显示飘窗板挑出600,此挑板尺寸是否参照墙身大样计入?

结构墙身详图1

建筑墙身详图1结构板图

 

答:建筑与结构是对应的。

(2)12#楼首层无架空建筑墙身大样首层无误,结构墙身图首层为架空层大样图与平面图不符符合处理?

 

 

 

答:12#楼首层无架空。按照建筑所示修改。

(3)建筑说明中砌体墙厚度为200厚和120厚,建筑平面图中显示卫生间隔墙为100厚,平面图中与说明墙体厚度不一致的如何处理?

 

答:按100厚计入。

(5)结施10/30屋顶板面~构架顶剪力墙平面图,D轴交7~9轴处剪力墙与建施12/24机房平面图D轴交7~9轴处门BFM乙1121位置冲突,此处是否为剪力墙开洞?

 

答:按修改后的图

 

(6)说明中散水处外墙面防水层高出室外地面500是否为地下室顶板防水上翻?

答:是的。

(7)墙身详图3结构节点与建筑节点不符以何为准?

 

答:12#楼墙身详图3结构节点按照建筑修改。

 

 

 

 

 

 

 

 

(8)风井仅有建筑节点图无结构节点图请提供?

 

答:提供12#楼风井结构节点。

 

9)墙身详图8屋面层空调百叶外侧栏板结构节点与建筑节点不符以何为准?

 

答:12#楼墙身详图8屋面层空调百叶外侧栏板结构节点按照建筑修改。

 

 

 

 

 

 

 

(10)墙身详图9空调板二层、四层及以上节点结构与建筑不符如何处理?

 

答:12#墙身详图9空调板二层、四层及以上结构节点按照结构施工。建筑按照结构尺寸调整。

(11)平面图中150厚外墙外侧附墙垛是否按节点50厚空隙加100厚砖墙和计入还是按150厚砖墙计入?请明确砖墙材质;

 

答:结构按照下面的截图调整。

8、16#20#21#27#楼

(1)机房层电梯门洞FM甲1221与结构墙柱图中此处砼墙位置存在冲突,如何处理?

答:按修改后的图

 

(2)机房层5轴与C轴交口的门洞DK2930位置与结构墙柱图中异形柱存在冲突,如何处理?

答:洞口下移,见建筑修改后的图

(3)请明确机房层C055-15窗户的具体尺寸及离地高度。

答:此窗取消。

(4)结构图中未见节点索引,且结构节点大样与建筑节点大样序号对应不上,请补充结构索引图纸?

答:结构补充索引。

(5)机房层出屋面台阶请明确尺寸及做法是否参照13#楼?

答:同13#楼。

 

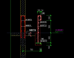
6)飘窗处矮墙建筑节点与结构节点不一致,且材质不同,如何处理?

答:结构按照下面的截图施工。尺寸与建筑相同。

 

 

 

 

 

 

 

7)飘窗处空调板节点建筑与结构不一致,且材质不同,如何处理?

答:结构按照下面的截图施工。尺寸与建筑相同。

 

 

 

 

 

 

(8)门厅女儿墙建筑与结构节点墙体尺寸不一致,如何处理?

答:按照下面截图施工。

 

 

 

 

 

 

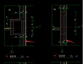
(9)阳台外侧节点砖墙厚度为100还是150厚,请明确?

答:此处13b节点设置构造柱。

如下图所示。

 

 

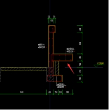
(10)机房层A轴交5/12轴处空调百叶平面图与节点图纸对应不上,且此处顶板标高结构节点有误,如何处理?

答:按照下图施工。

 

 

(11)机房层楼梯旁天井女儿墙无节点大样,请补充大样节点。

答:结构按照下面的截图施工。设置1.5米高女儿墙。

 

(12)一层楼梯处防火隔墙仅楼梯踏步处还是整体楼梯间100厚墙体全为防火隔墙,请明确?

答:按平面图,剖面与平面也吻合。

(13)请明确屋顶平面图中设备基座尺寸?

答:

(14)结构节点首层处均为架空层节点示意,但16#首层并无架空,如何处理?

答:16#首层无架空,详见最终的结构图纸。

(15)20#楼建筑图门窗表中BYC3尺寸为1000*1700,平面图中尺寸为800毫米,如何处理?

答:按800*1700尺寸。

(16)20#楼门窗表中无BY1208尺寸、离地高度,如何处理?

答:架空层内风井百叶均做至二层板下,百叶平梁底。

(17)20#楼一层平面图5/7轴交A/B轴无百叶标注,如何处理?

答:按此图尺寸。架空层内风井百叶均做至二层板下,百叶平梁底。

 

(18)飘窗处结构节点1与建筑节点1对应不上,如何处理?  

答:结构按照下面的截图施工。

 

(19)屋面墙身节点7中结构标注屋面造型高度为2400毫米,图示尺寸相加得2200,如何处理?

 

答:如下图所示。

 

 

9、S1-S2商业问题汇总

1)建筑说明卫生间地面防水上翻1.8米与装修做法表中墙面防水1.8米冲突且防水材料及厚度不同,1.8米防水上翻参考地面防水材料还是墙面防水材料?

答:按照装修表做法

(2)墙身节点16-2/3/4/5/7建筑结构屋面处节点不同,如何处理?

 

 

答:以结构图为准

(3)基础强度等级未见说明,请明确?

答:旋挖钻孔灌注桩设计说明已说明,本工程地基基础设计等级为乙级

(4)电梯基坑砖胎膜厚度不详,请明确?

答:控制价按240毫米厚计入,投标单位自行考虑报价。

(5)卫生间门洞DK1021及DK1221尺寸未标注,请明确具体尺寸。

 

 

答:洞口1021为1000毫米×2100毫米(h),洞口1221为1200毫米×2100毫米(h)

 (6)S1楼梯处卫生间墙体,反坎及门窗是否计入,若计入,请明确门洞尺寸。

答:商铺卫生间仅作上下水预留,用户自理

(7)S1电梯门洞尺寸未注明,二层无门洞示意,是否有误,请明确。

答:二层不设置开门

(8)女儿墙处保温是否按照外墙面节点示意计入。

答:是

(9)卫生间化妆镜无具体做法?

答:具体做法详02J915-50-2节点

 

10、18#楼

1)结施13/35屋顶板面~构架顶剪力墙平面图,C轴交8轴处剪力墙与建施13/30机房平面图C轴交8轴处门FM甲1221位置冲突如何处理?

 

答:按修改后的图

 

 

2)建施8/30二层平面图A轴交8轴处百叶BYC2’在门窗表中无标注BYC2’尺寸如何确定?且此处未标注身大样是否参照相邻百叶BYC2处墙身大样布置?

 

答:,节点做法同相邻百叶BYC2处墙身。

(3)建施8/30二层平面图C轴交6轴处门FMD乙1221和E轴交10轴处门FMD乙1021在门窗表中无标注,尺寸如何确定,是否为钢制乙级防火防盗安全入户门?

 

答:

 

(4)建施13/30机房平面图中A轴交8轴和9轴处窗C055-15无尺寸标注如何处理?

 

答:取消此窗。

(5)建筑平面图C轴交15~22轴处卫生间无门进入如何处理?

 

答:

 

(6)建筑平面图显示屋面楼梯间与室外连接的门FM乙1221处有台阶但无具体节点标注,如何处理?

 

答:出屋面做法统一为:

 

(7)建筑平面图显示屋面电梯机房与室外连接的门FM甲1221处有台阶但无具体节点标注,如何处理?

 

答:出屋面做法统一为:

 

(8)建施13/30机房层平面图中C轴交5轴和11轴处墙洞DK2930尺寸未注明如何处理?且平面图显示的墙洞与结构图中柱LZ1冲突如何处理?

 

答:洞口下移,见建筑修改后的图

(9)结施F01/35节点详图1中结构墙身详图1显示架空层底有挡墙,对应的建施墙身详图1未显示挡墙,以何为

答:结构按照下面的截图调整。

 

 

 

(10)墙身大样1女儿墙节点结构与建筑不符,以何为准?

 

答:结构按照下面的截图调整。

 

 

(11)墙身节点5结构节点与建筑节点不符且建筑节点示意与平面图不符,是否暂按结构节点计入?

  

答:结构按照下面的截图调整。

 

 

 

11、 幼儿园

(1)图纸中显示“用户自理/面层业主自理/二次设计”等字样是否不在本次招标范围内?

答:按图纸做法计入。

(2)结构设计总说明中外围护墙、卫生间隔墙为非承重煤矸石空心砖,建筑施工图设计说明中外围护墙为蒸压砂加气混凝土砌块,卫生间为蒸压砂加气混凝土实心砌块,结构与建筑说明材料不同以何为准?

答:以建筑图为准。

(3)建筑施工图设计说明中部分内隔墙为120厚蒸压砂加气混凝土砌块,建施1-3层平面图中6、7轴交E、F轴处及3、4轴交E、F轴处有100厚内隔墙,此处隔墙按平面图厚度计入还是按建施说明计入?

答:平面图纸为准

    

          

(4)结施08/22一层板面~二层板面柱平面定位图中8轴交D轴处框架柱未注明编号,是否参照相邻框架柱KZ2b布置?

            

答:按KZ2b。

(5)建施1-3层北立面中3、4轴交G轴处以及7、8轴交G轴处内衬1米实体墙是否为高为一米?

            

答:高度同净高,宽度为1米。

(6)建施6/20一层平面图中1轴交A、B轴处ZJMC-1在门窗表和门窗大样中均没有该编号,ZJMC-1是否是门窗表中的ZJMLC-1?并按ZJMLC-1尺寸计入?

              

           

答:此处转角门联窗编号为ZJMLC-1,已在门窗明细表和门窗大样中表示

(7)  建筑说明中餐梯门洞尺寸为1000*1200与建施6/20、7/20、8/20图中6轴交E轴附近餐梯平门洞面尺寸不符,是否按照建筑说明中的尺寸布置?

答:按图施工

 

                

 

(8)  墙洞DK1021、DK1221、DK1321在门窗表及门窗大样中没有尺寸,请明确墙洞的洞口尺寸。

答:根据编号1000米*2100米;1200米*2100米;1300米*2100米

(9)  门窗表中C-1洞口尺寸为22400*6300与门窗大样中的洞口尺寸22400*5400不符,应按哪个尺寸布置?

答:应为22400*5400

 

              

 

(10)建施1-3层平面图北立面中5轴、6轴交G轴处防雨百叶800*400-顶部贴梁底无具体剖面图做法,该部位如何施工?(其他部位防雨百叶问题等同)

                

答:详见暖施

(10)  建施6/20一层平面图中D、E轴交1轴处节点7/17与结施11/22一层结构平面布置图中D、E轴交1轴处节点7/F02不符,应如何处理?

答:以建筑图为准

     

(11)  建施6/20一层平面图中1、2轴交H轴处节点8/17与结施11/22一层结构平面布置图中1、2轴交H轴处节点8/F02不符, 应如何处理?

 

 

答:见修改图。 

 

(13)结施12/20二层结构平面布置图中1、2轴交H轴处节点8/F02梁加宽后梁外边未抵到外墙边,梁宽度是否应加宽到墙外边?

        答:否,按梁中线与柱子中线对齐为原则。

(14)结施1-3层结构平面布置图中3、4轴交A轴,5、6轴交A轴,7、8轴交A轴处GZ2平面尺寸与大样尺寸不符,是否按大样尺寸计入?

   

 

答:是

(15)门窗洞口尺寸大于3500毫米时,过梁的高度h和伸入墙内的搁置长度Ln尺寸各为多少?

   

 

(16)建筑说明中厨卫间1.45米以下墙体材质是什么?请明确

   

建筑说明与结构说明中钢丝网和网格布的加强带宽度不同,应按哪种尺寸计入?

   

   

(17)  建筑说明的室内装修一览表中厨房位置未做防水,在建筑说明3.3室内防水中厨房与卫生间防水做法相同,问:(1)厨房房间(楼地面、墙面、天棚)是否按建筑说明3.3内容计入防水?(2)卫生间房间防水工程在建筑说明3.3条防水材质、翻遍高度与装修做法表中显示的材料、高度不一,已何为准?(如下截屏所示)

答:厨房卫生间均依照装修表做法。

  

   

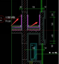
(18)  建施7/20二层平面图中2、3轴交A轴处节点1/16、2/16,女儿墙防水翻边高度未明确,请明确防水上翻高度。

答:完成面以上250mm

          

(19)  建施7/20二层平面图中D、E轴交1轴处节点7/17,女儿墙防水翻边高度未明确,请明确防水上翻高度。

答:完成面以上250毫米

 

(20)  建施1-3层平面图中内墙门窗无压顶节点大样,结构说明中也无内墙压顶尺寸说明,请明确压顶尺寸为多少?

答:详见结构总说明。

   

  

(21)  本工程构造柱圈过梁是否按结构图标注计入?

答:详见结构总说明。

(22)  基础承台混凝土强度等级不详,请明确。

答:详见基础说明

 

(23)  寝室、活动室、衣帽间、办公室、园长室、美工室等楼面做法装修一览表为40厚C20细石混凝土砼(内配筋),配筋无具体规格及型号请明确?

答:按Φ6Ⅰ级钢双向@200

(24)  阳台栏杆无具体做法请明确?

答:详见图集15J403-1第B14页B1

    

12、17#19#24#25#26#28#楼

1)节点中空调间,中间层反梁结构图中显示为200*400,底层显示为200*280,在建筑图中显示为200*200,建筑节点与结构节点矛盾时以哪个计入?

答:以建筑为准。

(2)节点大样中显示空调板及空调间内侧保温全做,在节能设计一览表内空调间仅计外侧,空调板不做保温,具体以哪个计入?

:按照节点大样

 (3)与结构相连接的栏板线条等砼构件砼标号是否同相应楼层标号?

答:是

(4)19#,24#楼130板厚板底筋钢筋多大,图纸未明确,请明确具体做法?

答复:φ6@110,HRB400级钢筋。

12、 门卫室

(1)  门卫室建筑层高标注3.3米,结构标注3.6米,是否按建筑图标高?

:按建筑图

(2)  卫生间是否设防水返梁?

答:设200高C25砼返梁。

(3)  地面做法装修一览表选用2014J301,图纸有A~C三种做法,请明确具体选用做法?

答:门卫外地面选用2014J301-5A/11,卫生间选用6A/12页节点。

(4)  雨棚防水做法图纸未明确?

答:参主楼

(5)  卫生间顶棚做法图纸未明确具体做法?

答:详图集05J909节点38C/DP21

三、 安装部分

1)给水系统是否从水表后开始计入?水表前仅计套管及预留洞?

答:是

2)雨污水系统是否计至室外第一个检查井,不含井?

答:室内外全部计入。

3)卫生洁具是否计在本次招标范围?

答:马桶、洗浴盆、洗菜盆计入。

4)太阳能系统是否在本次招标范围?

答:不在,只计预埋。

5)电梯(含机房空调)是否在本次招标范围?如计入,请明确机房空调的参数?

答:计入,机房空调为1.5匹壁挂空调。

6)宽带、电话、电视系统是否按图示内容全部计入?还是仅计桥架及管盒预留?

答:计入

7)可视对讲系统是否按图示内容全部计入?

答:计入

8)消防报警系统、电气火灾监控系统、消防电源监控系统、防火门监控系统是否按图示内容全部计入?

答:计入

9)各单体强电电表箱之前(含电表箱)是否仅计管道预留及桥架安装?电表箱之前(含电表箱)不计入?

答:各单体楼(含地库)自楼内第一个总配电箱(柜)开始全部计入,箱(柜)前仅计入预埋管,预埋管计至室外1.5米。其中电表不计入。

10)请提以下设备的规格型号?

 

答:可参考如下:

11)给排水图纸说明穿越卫生间、厨房、阳台、水井的排水立管穿楼板处是否均设置刚性防水套管?

答:是

12)卫生器具等排水点只预留孔洞还是需要设置塑料防水套管?

答:排水管穿楼板应预留孔洞,塑料管安装时应设置止水环,安装完后将孔洞严密捣实,立管周围应设高出楼板面设计标高20毫米的阻水台。

13)管材表中描述排水立管采用中空壁消音UPVC管,是否所有部位的污废水立管均采用中空壁消音UPVC管?

答:户内排水立管为中空壁消音UPVC管,管井立管及通气管采用建筑排水用PVC-U管。

14)通气管采用PVC-U管还是中空壁消音UPVC管?

答:建筑排水用PVC-U管。

15)幼儿园广播系统是否计入?

答:不计入,与消防报警广播合用

16)此灯具无图例,请提供

 

答:红外感应灯头,LED光源13W

17)此灯具无图例,请提供

 

答:平圆罩吸顶灯(防水型),LED光源13W

18)此灯具无图例,请补充

 

答:3x14W T5三管荧光灯

19)强弱电间是否需要设置干粉灭火弹?

答:每栋单体住宅-2.900表高层的强电间和弱电间,按照每个房间设置一个充装量3kg的悬挂式超细干粉灭火弹设计。

20)水表远传系统预埋管图纸未设计,是否考虑?

答:考虑,按PC25计入

21)智能化系统是否全部按图计入?

答:除视频监控及出入口控制系统不计入,其余全部计入,三网图纸里仅计入室外管网工程。

22)从消防控制室引至各单体及地下室的线缆是否计入?

答:计入。

23)三网地下室图纸上的桥架是否计入?

答:计入。

24)消防地下室总图图纸上的桥架是否计入?

答:计入。

四、 室外附属工程

1)绿植养护期养护图纸中建议一级养护两年是否按图计入?

答:二级养护

2)室外污水管管材是否改为镀锌铸铁管(当地相关部门有要求)?

答:改为同管径镀锌铸铁管。

3)绿化中色块、地被类苗木深翻30厘米,拌合30%泥炭土,泥炭土含量是否过高?

答:修改为色块、地被类苗木深翻30厘米,拌合20%泥炭土。

4)成品设施中健身器材、成品儿童游乐设施具体样式、规格不全,无法询价?

答:健身器材参考扭腰器、双杠等钢制健身器材,成品儿童游乐设施参考户外滑梯规格540*410*550厘米。

招标人名称:庐江县重点工程建设管理中心、庐江县冶父山镇人民政府

地址:庐江县交通路23号

联系人:周建

联系方式:0551-82563663

招标代理:安徽诚信项目管理有限公司

址:合肥市滨湖新区南京路2588号(徽州大道与南京路交口)六楼

联系人:张工

联系方式:0551-66223672

 

2021年6月8日

 

 

 

 



三、附件

      答疑发布日期:2021年06月08日

附件:2020BFNGZ01601项目招标补疑1.pdf