您现在的位置: 首页 >> 答疑变更 >> 安徽公共资源交易集团项目管理有限公司 >> 工程
一、原公告主要信息
原项目名称: 合柴记忆文创园正心学校建筑改造及室内装饰工程
原项目编号: 2021BFBGZ01422
原公告日期: 2021年07月06日
二、公告内容(更正事项、内容及日期等)
招标文件补疑1
项目编号:2021BFBGZ01422
各投标人:
重要提示
1、人工费执行《关于贯彻执行2018版安徽省建设工程计价依据的通知》(合造价【2018】13号文)。其中定额人工费参与取费、取税,其相对于定额人工费增加的部分 0 元只计取税金。
2、本工程取费按“ 房屋修缮 工程取费标准”中“ 房屋修缮工程 ”的费率计取。
按业主要求,现对本项目招标工程量清单、最高投标限价编制作出如下补充:
第一部分:招标需求
一、招标范围:
本项目分为一个标段,其中本标段工程包括正心学校建筑改造及室内装饰工程施工(建筑面积约4100㎡,主楼4层,门厅1层)。除特殊说明外,图纸设计范围内的所有内容,均按图计入。
1、建筑工程:包括拆除工程、土方工程、加固工程、屋面及防水工程、保温工程、门窗工程、楼地面工程、墙柱面工程、天棚工程、油漆涂料工程、其他工程等。
2、安装工程:
1)、电气工程:户内第一级配电箱后按图全部计入(含配电箱);变配电房至户内第一级配电箱配线按图计入,变配电房内按半周长预留;室外电力排管本次不计入,单体出室外保护管就近接入出室外一个电力工井处。
2)、弱电智能化工程:按图仅计取预留、预埋、桥架安装、穿墙开孔及封堵等,不含井。
3)、给水工程:户内给水立管按图计入,分支管道一层按图计入,二层以上分支管道计至卫生间截止阀处;室外给水自接市政给水接引点处水表后图示位置接至本工程所在位置,包含接入其它单体分支管道,计至水表井(含水表及井)。
4)、排水系统:单体按图计至出室外第一个雨、污水井处。
5)、消防工程:按图全部计入;室外消防水系统仅计取本工程一周及引至主体文化酒店预留管道且接入主干管(含阀门及井)。
6)、暖通工程:一层按图计入。
7)、电梯工程本次按图计入。
3、室外雨污水工程:包括土方工程、管网工程(含管道垫层、管道铺设、检查井砌筑、化粪池、隔油池)。
4、补充说明:
图纸上已设计,但不计入本次招标范围的有:
1、二至四层卫生间内拖布池、蹲便器、固定式梳妆镜、洗面台、地漏、卫生间隔断、纸巾盒、挂钩、淋浴间隔断、大便器抓杆、洗手盆抓杆、无障碍专用厕所做法、烘手器;
2、暖通工程:二至四层;
3、景观给水;
4、室外地上式消火栓连接管网;
5、卫生间二~四照明及卫生洁具感应器电源。
二、暂定项目:
(一)以下项目按照业主要求,以暂定工程量计入分部分项工程量清单,投标人综合考虑报价,标后按实际工程量结算。 无
(二)按照业主要求,暂列金额为 53.00 万元,计入土建装饰工程单位工程其他项目清单中,投标人应按招标人所列的金额计入投标总价。
(三)执行暂估价的材料、设备、专业工程及其金额如下:
1、材料的名称、规格型号、金额; 无
2、设备的名称、规格型号、金额; 无
3、专业工程名称、工程内容、金额; 无
上述明细投标人应按招标人所列的金额计入投标总价。
4、发包人供应材料、工程设备的采购、保管费,控制价中不再另行计取费用,投标人在总报价中综合考虑此费用。
三、按项列入清单的内容,标后不予调整:
以下项目按照业主要求,按项计入,投标人自行踏勘现场,综合考虑报价,中标后不予调整。
1、
室外围墙、岗亭拆除:围墙(含岗亭)拆除长度为80m、高度2.2m、墙宽0.24m,包含拆除、拆除垃圾清理、内倒、外运。按1项列入土建装饰工程单位工程分部分项清单中,投标人自行踏勘现场,综合考虑报价,中标后不予调整。
2、
正心学校南侧铁皮屋顶构筑物拆除:正心学校彩钢板房长度为21m、宽10m、高度4.2m、墙宽0.24m,包含拆除、拆除垃圾清理、内倒、外运。按1项列入土建装饰工程单位工程分部分项清单中,投标人自行踏勘现场,综合考虑报价,中标后不予调整。
3、
加固支撑:加固方案、措施投标人自行考虑,施工前需报监理单位、建设单位审批和组织专家论证,与之相关费用均含在报价内。按1项列入土建装饰工程单位工程分部分项清单中,投标人自行踏勘现场,综合考虑报价,中标后不予调整。
4、
道路、绿化破除及恢复:本项目中因室外管网施工,涉及的原有道路、铺装、草坪破除以及破除后的垃圾清理、内倒、外运、施工结束后按原状恢复所需的所有费用。按1项列入室外雨污水工程单位工程分部分项清单中,投标人自行踏勘现场,综合考虑报价,中标后不予调整。
5、
抗震支架:内容包括本项目风、水、电各专业所涉及到的所有抗震支架, 按1项列入安装工程单位工程分部分项清单中,投标人自行踏勘现场,综合考虑报价,中标后不予调整。
6、
开洞及孔洞的防火防水修补:包含本工程施工的桥架及管道的穿墙、穿楼板等涉及的开洞、及孔洞的洞口防水防火封堵、墙面修复等完成此项工做的一切工序,按1项列入安装工程单位工程分部分项清单中,投标人自行踏勘现场,综合考虑报价,中标后不予调整。
四、补充图纸及修改图纸的说明:
本工程在第一次发放图纸后,图纸有修改,具体详见图纸目录。工程量计算依据为2021年5月27日发放的“正心学校招标图纸5.27最新版汇总”。
五、总承包服务费:无
六、温馨提示:投标人投标报价还须仔细阅读本项目招标文件,慎重报价。
第二部分:设计文件及技术补充说明
一、共性问题
1、
请明确弃土(含建筑垃圾、淤泥、清表土石方等)运距、渣土费如何考虑?
答:弃土运距按10km计入,实际运距或超出部分的运距、渣土费、弃土场等费用投标人需现场勘察后在投标报价中综合考虑,包括建筑垃圾、排水、场内遗留物、房屋基础挖运及场地清理、装车、场内运输、场外运输、卸土后整平等涉及到的弃土场费用、城市道路卫生清扫保洁费用等一切可能发生的相关费用,中标单位负责办理渣土外运等相关手续并承担相关费用且严格执行渣土运输管理规定,以上费用:投标单位综合考虑,自行报价,中标后不予调整。
2、
挖出的基础土方是否可利用回填?
答:可以利用回填。
二、个性问题
土建装饰工程
1、
请提供原屋面防水做法,是否原防水做法自上而下全部拆除?
答:铲除至原屋面结构层,拆除内容由投标单位勘察现场,自行考虑。
2、
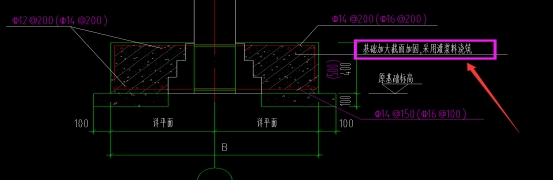
基础加固后,请明确一层地面恢复的具体做法?
答:一层房间内地面50mm厚C20细石混凝土+10mm厚1:2水泥砂浆抹平至现状地面;
一层卫生间内地面按室内外工程做法表一中“地B17防滑地砖地面”;
一层走道内地面50mm厚C20细石混凝土+10mm厚水泥砂浆找平层+15mm厚水磨石面层;
3、
楼面加固后,请明确楼面恢复的具体做法?
答:二层及以上房间内楼面10mm厚1:2水泥砂浆抹平至现状地面;
二层及以上走道内楼面10mm厚水泥砂浆找平层+15mm厚水磨石面层;
4、
请明确墙面、柱面、顶棚加固后装饰做法?
答:一层除卫生间外的房间:墙、柱面、顶棚做法按水泥砂浆抹灰(厚度及配比见图纸设计)+满批耐水腻子两遍+乳胶漆(底漆一遍+面漆两遍);
一层卫生间墙面按室内外工程做法表一中“内墙16A釉面砖防水墙面;
一层卫生间顶棚按室内外工程做法表一中“棚36B铝合金方板吊顶;
二层及以上墙、柱面、顶棚做法:水泥砂浆抹灰(厚度及配比见图纸设计)。
5、
楼梯栏杆是否按图纸内节点做法进行更换?
答:室内楼梯栏杆保留不更换,靠墙一侧栏杆加固必须拆除时,必须是保护性拆除并在加固做好后原样恢复。
6、
卫生间内,如下图所示内容是否均计入本次招标范围?
答:以上内容仅一层施工,二层及以上不做。
7、
请明确本项目门、窗采用何种系列及型材壁厚?
答:65系列。门主型材壁厚不低于2.2mm、窗主型材壁厚不低于1.6mm。
二层及以上普通内门不计。
8、
请明确本项目保温的的具体范围?
答:仅外墙内侧做保温。
9、
新窗规格与原洞口规格不符,原窗无法保留。
答:原窗拆除。
10、
M1021、M1524、WM1023是否均为断热铝合金门框,门板具体材质请明确。
答:是断热铝合金门框、蓝色铝板门板。如下图
11、
WM2230、WM2030、WM1730是否为断热铝合金门框,玻璃种类、规格请明确。
答:是断热铝合金门框。如下图
答:是断热铝合金门框。玻璃参设计说明(6+12A+6low-E安全玻璃)
12、
WM1121无大样请提供。
答:详见详图右下角,如下图
13、
甲FM1524、乙FM0821、乙FM1024、乙FM1223、乙FM1824均为钢制防火门,大样图中显示均为铝合金框是否有误?
答:删除门框,防火门不表示门框材质,图纸已删除边框铝合金框标注。甲级防火门,乙级防火门为钢制,丙级防火门为木门。门框标注修改后如下图:

14、
丙FM0620、丙FM1220均为木制防火门,大样图中显示均为铝合金框是否有误?
答:删除门框,防火门不表示门框材质,图纸已删除边框铝合金框标注。甲级防火门,乙级防火门为钢制,丙级防火门为木门。
15、
请复核FM1824乙是否有误?
答:已删掉电动防火卷帘门。FM1824乙不是电动开起。
16、
请明确下图中所示,耐火极限1.5h、耐火极限1h、耐火极限0.5h是否分别对应甲级、乙级、丙级防火门?
答:是,按门窗表中对应备注。
17、
本项目外窗是否设置纱窗,若需要,请明确材质。
答:不设置。
18、
请明确下图中所示“金属穿孔板”具体材质以及节点大样做法?
答:门头大样如下,门厅其他部位参照节点。
19、
请提供百叶大样做法。
答:成品方孔冲孔板空调百叶,镀锌冲孔板,方孔,孔洞率70%,外喷氟碳漆。
20、
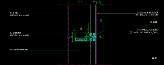
请明确下图中玻璃幕墙是否在本次招标范围内,若在,请提供具体做法。
答:是,其余参照附件
21、
外立面图中,仅B-B-A-A轴立面图、A-A-B-B轴立面图中显示有外墙乳胶漆,其他位置是否均无,工程量是否按下图中所示范围计算?
答:除图示范围外,外墙需加固部分立面图未能体现部分(A-B轴交A-1至A-3,A-B轴交A-5至A-7),需计算在内,并按保留的原墙面做旧。
22、
电梯基坑深度建筑与结构不符,以何为准?
答:以结构图为准。
23、
散水做法一层平面图中与建筑说明室外工程做法表中不符,以何为准?
答:素土夯实,夯实系数≥0.90,向外找坡4%+50mm厚碎石垫层+60mm厚C20细石混凝土,随打随磨,撒1:1水泥沙子压实赶光+300mm厚种植土。
24、
请明确坡道做法?
答:素土夯实+100mm厚碎石垫层+100mm厚C20混凝土+30mm厚1:3干硬性水泥砂浆结合层+100mm厚毛面花岗岩板。
25、
请明确首层室外台阶做法?
答:素土夯实+100mm厚碎石垫层+60mm厚C20混凝土,台阶面向外坡1%+素水泥浆一道(内掺建筑胶)+30mm厚1:3干硬性水泥砂浆粘结层,上撒素水泥(洒适量清水)+20mm厚芝麻灰花岗岩。
26、
请明确原基础总宽度、大放脚各阶宽度、高度、基础底标高。
答:
27、
请明确2/3/4层1-1剖面图是否同1层1-1剖面图的位置?
答:是。
28、
明确柱中植筋的直径及间距。
答:C8钢筋;拉筋数量按图所示,间距同箍筋间距。
29、
请明确新建剪力墙(电梯井壁)混凝土是否为普通C30
答:C30灌浆料。
30、
请明确图示角钢是否有误。
答:已修改为L75*10。
31、
请明确logo是否在本次招标范围内。
答:不在。
32、
请明确镜子高度?
答:高度80cm。
33、
图纸说明内基础加固采用C30混凝土,大样做法中采用灌浆料,请明确以何为准?
答:采用C30灌浆料。
34、
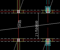
请明确楼板JB1\JB2\JB3碳纤维加固是否都是横纵方向双层加固?
回复:JB1、JB3按图示方向加固,垂直方向布置1T-150@500的构造布置;JB2横纵方向均按图示加固。
35、
请明确过梁是否锚固至两端柱内?
回复:是。
36、
请明确墙面穿墙孔采用何种材料填实?
回复:环氧树脂砂浆填实。
室外雨污水工程
1、
请明确管道基础大样做法?
回复:参见:06MS201-2第54页,100mm厚中粗砂垫层。
2、
请明确本项目室外雨、污水检查井具体做法。
回复:采用Ø700砖砌井、球墨铸铁井盖,具体做法参见图集内相关节点。
3、
请明确下图中化粪池具体做法。
回复:详见图集03S702,G4-9SQF。
4、
请明确下图中隔油池池具体做法。
回复:详见图集04S519,GG-3S。
5、
请明确本次雨污水招标范围。
回复:下图中黄色线框内。
雨水工程:
污水工程:
6、
请明确沟槽使用何种材料回填?
答:管底至管顶以上300mm采用中粗砂回填,其余土回填至设计高程。
安装工程
1、
室外给水计入范围请明确
回复:如下图自箭头所示接引点后计入,至各单体计至水表井处,含水表及井,接至景观给水计至水表井处(含井)。
2、
室外消防水系统计取范围请明确
回复:如下图自红色箭头后按图计入,黄色箭头所示管道不计入 ,白色箭头位置设置阀门及阀门井。
3、
室外给水引入管规格与户内不一致以何处为准?
回复:室外管道规格按室外图纸计入,室内管道按室内计入,水表组阀门后变径。
4、
户内第一级配电箱进线电缆引至何处?
回复:如下图所示变配电房
5、
消控室设备本次是否计入?若计入请设计提供消控室设备数量及相应参数
回复:消防室设备本次计入,需计入设备如下
| 设备
|
型号
|
参数
|
| 火灾报警控制器/消防联动控制器
|
JB-QTL-TX3016A
|
最大16回路,每回路最大242点。
|
| 壁挂电话系统
|
YJG3008
|
8路配置。
|
| 广播控制盘/MP3
|
TG3100
|
|
| 广播功率放大器
|
TG3300-300W
|
300W
|
| 应急照明控制器
|
TS-C-6000
|
|
| 电气火灾监控设备
|
TE3004
|
共4个回路,每回路200个地址点
|
| 消防设备电源状态监控器
|
TP3000B
|
系统容量200点
|
| 图形显示装置
|
TX3820A
|
|
| 防火门监控器
|
TM3500
|
|
| 电动通风排烟窗控制器
|
设备成套
|
|
6、
本次新增消控室是否须与其它消控室联动,若需要请提供相应工程量
回复:正心学校消防控制室不需要与园区消防控制室联动.
7、
如下图所示同一位置处电缆规格不一致,以何处为准请明确。
回复:以WDZN-YJV22-4x25-SC50-FC为准。
8、
请设计明确如下图所示6类非屏蔽双绞线保护管规格
回复: S:6类非屏蔽双绞线铜缆, SC15/JDG20 SCE(WC);DY:RVV 2x1.0 SC15/JDG20 SCE(WC)。
9、
请设计明确综合布线系统保护管规格
回复:见讯施-107-003 弱电设计说明三、图例。图中未标注者表示:2根6类非屏蔽双绞线铜缆SC20/JDG25 WC(SCE); 图中标n表示: n根6类非屏蔽双绞线铜缆,其中1根穿SC15/JDG20管,2根SC20/JDG25管,3~4根穿SC32/JDG40管,WC(SCE); 图中标F表示:1根2芯单模皮线光缆,JDG20 WC(SCE)。
10、
火灾自动报警系统中保护管规格未明确,请设计补充。
回复: h: 消防电话插孔线 NH-RVS-2x1.5 ,JDG15 CC(WC);输入监测信号线m,控制输出信号线c:NH-RVS-2x1.5,JDG15 CC(WC); 平面图导线超过4根需分管敷设。
11、
火灾自动报警系统如下图所示位置是否需增设竖向广播线槽?若增设请明确 规格。
回复:竖向增加广播线槽 规格为100x50,与消防报警线槽分槽敷设。
12、
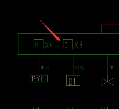
请设计明确如下图所示火灾自动报警系统中模块名称
回复:c为输出模块。
13、
如下图所示火灾自动报警系统中设备是否为消防端子箱。
回复:消防模块箱。
14、
公共广播系统中消防广播模块数量是否按系统图中数量计取
回复:按3个计入。
15、
请设计明确室外阀门井做法图集页数。
回复:详见05S502-68~88页。
16、
请明确卫生间地漏材质
回复:304不锈钢材质。
17、
火灾自动报警系统如下图所示配线引至泵房控制箱图中未见消防泵房位置,请设计提供相应工程量。
回复:配线、保护管均按200米计入,保护管规格SC20。
18、
如下图所示灯具、开关名称及型号未明确,请设计明确。

回复:分别为单管荧光灯(应急)1*36W 、单联翘板式暗开关10A ~250V、双联翘板式暗开关10A ~250V、单管荧光灯1*36W。
19、
消防控制室内未见布设桥架,是否增设。
回复:按原有规格半周长增设。
20、
室外给水系统如下图所示图集是否有误?
回复:调整为2016S101,2016S101中无参考图集的参见 05S502
21、
单体楼内保护管是否调整?
回复:户内焊接钢管除入户管道外均调整为相应规格JDG管。
注:此补疑视同招标文件的组成部分,与招标文件具有同等法律效力,请投标人及时下载。
招标人:合肥滨投文化创意发展有限公司
地 址:合肥市徽州大道1388号
联系人:赵晓锋
电 话:0551-63457790
招标代理机构:安徽诚信项目管理有限公司
地 址:合肥市滨湖新区南京路2588号(徽州大道与南京路交口)六楼
联系人:吴工
电 话:0551-66223230、66223831
2021年7月6日
三、附件
答疑发布日期:2021年07月06日