您现在的位置: 首页 >> 答疑变更 >> 安徽公共资源交易集团项目管理有限公司 >> 工程
一、原公告主要信息
原项目名称: 合肥庐北至池州高压天然气管线工程庐江至枞阳段(罗河-枞阳)管道安装及阀室建设
原项目编号: 2021BFFGZ01870
原公告日期: 2021年08月28日
二、公告内容(更正事项、内容及日期等)
合肥庐北至池州高压天然气管线工程庐江至枞阳段(罗河-枞阳)管道安装及阀室建设
招标文件补疑2
(项目编号:2021BFFGZ01870)
各投标人:
重要提示
1、人工费执行《关于贯彻执行2018版安徽省建设工程计价依据的通知》(合造价【2018】13号文)和《关于合肥市建设工程人工价格信息发布及计价应用工作的通知》(合造价【2021】8号)。其中定额人工费参与取费、取税,人工信息价相对于定额人工单价增加的部分26.3元只计取税金。
2、本工程取费按“市政工程取费标准”中“给水、燃气工程 ”的费率计取;其中市政工程中挖或填土石方量大于5000m3的大型土石方工程,其企业管理费率8%、利润率8%,措施项目费率和不可竞争费率按市政工程相应费率乘0.6系数。
按业主要求,现对本项目招标工程量清单、最高投标限价编制作出如下补充:
第一部分 招标需求
一、招标范围:
本项目分为一个标段为合肥庐北至池州高压天然气管线工程罗河—枞阳段,包含1、罗河—枞阳段主管道规格为Φ610×10.3和Φ610×11.9,总长50.88km;2、沿线新建金社阀室;具体内容详见图纸及工程量清单。除特殊说明外,图纸设计范围内的所有内容,均按图计入。
(一)
土石方工程:管道、管道附属、阀室工程所有的土石方工程均计入本次招标范围内;
(二)
土建工程:阀室主体工程及附属均计入本次招标范围内;
(三)
管网工程:管道焊接、安装、敷设、顶管、定向钻等内容全部计入本次招标范围;
(四)
室外附属工程:阀室厂区内的道路铺设、围墙砌筑、绿化栽植均计入本次招标范围内;
(五)
其他:青苗补偿及临时用地补偿计入本次招标范围内,包括但不限于田地、菜地、鱼塘、虾塘、大棚、坟迁等涉及的青苗及临时占地补偿(不含已办理生产经营许可证、工商手续并符合土地流转政策的大型园林基地),最高投标限价中青苗补偿费用按《合肥市人民政府关于调整庐江县被征收土地上房屋其他附着物及青苗补偿标准的通知》合政秘〔2021〕5号和《2020年关于枞阳县青苗及地上附着物补偿标准调整的批复》铜政秘〔2020〕64号中补偿标准的3季计入,临时用地补偿按照皖政〔2015〕24号文件的1.5倍计入;施工单位须勘查现场后综合考虑报价,中标后不予调整,具体要求详见招标文件。
| 序号
|
名称
|
单位
|
工程量
|
综合单价
|
| 1
|
粮地(庐江)
|
亩
|
117.6
|
3900.00
|
| 2
|
露地菜地(庐江)
|
亩
|
16.4
|
4500.00
|
| 3
|
精养鱼塘等(庐江)
|
亩
|
3.6
|
5400.00
|
| 4
|
坟迁(庐江)
|
座
|
1
|
3000.00
|
| 5
|
临时用地(庐江)
|
亩
|
137.6
|
2550.00
|
| 6
|
粮地(枞阳)
|
亩
|
737.4
|
3270.00
|
| 7
|
露地菜地(枞阳)
|
亩
|
70.6
|
6300.00
|
| 8
|
精养鱼塘等(枞阳)
|
亩
|
56.4
|
3960.00
|
| 9
|
坟迁(枞阳)
|
座
|
23
|
6000.00
|
| 10
|
临时用地(枞阳)
|
亩
|
864.4
|
2520.00
|
二、
暂定项目:以下项目按照招标人要求,以暂定工程量计入清单,投标人综合考虑报价,标后按实际工程量结算:无
三、
按项列入清单、措施费的内容,标后不予调整:无
四、暂列金额: 600 万,列入 管道安装工程 其他项目清单中,计取税金;
五、总包服务费:无
六、补充图纸及修改图纸的说明:具体详见图纸目录。
七、甲供材:
直缝焊接钢管、螺旋缝焊接钢管、无缝钢管、弯头、三通(含清管三通)、变径管、法兰、法兰盖、盲板、管帽、绝缘接头、阻火器、热收缩套、补伤胶和补伤片、警示牌、标志桩、PE警示保护板、燃气阀门、现场仪器仪表、收发球筒、电缆等主材为甲供材,相应控制价组价中不含主材。
八、业主的其他要求及提示:
1、
土石方工程:包括挖、填、运、内倒、外弃等,取土点、弃土点不指定,投标人综合考虑,自行报价,综合考虑施工中的运距、土源费、渣土费、堆土场、渣土运输等一切费用,且严格执行相关渣土运输管理规定,中标后不予调整。
2、
施工临时用水、临时用电、现场施工便道、施工作业带清理、作业带施工道路碾压、施工现场的杆管线保护及拆除恢复、临时堆场的平整及看护、线路GIS测绘、沉井及深基坑的专家评审费等工程内容,控制价中不再另行计取费用,投标人在总报价中综合考虑此费用。
3、
投标单位需考虑疫情常态化防控费用,制定并实施疫情常态化防控方案及措施,控制价中不再另行计取费用,投标人在总报价中综合考虑此费用。
4、
图纸设计及招标清单控制价按现状考虑(包死工程量),投标单位应对现场进行详细深入勘查,并考虑现状可能发生的变化,慎重报价,所有费用含在投标报价中,中标后不得以任何理由调整价格。
第二部分
:设计文件及技术补充说明
一、
共性问题
1、
本项目土方开挖、运输及运距
(1)
本项目工程量清单土方按全利用方案计算;
(2)
本项目最高投标限价限价余土外弃运距按1km计算,借土运距按1km计算,投标人应自行踏勘现场并结合项目周边取、弃土点情况及管理部门相关要求,综合考虑报价,费用包干,中标不予调整。
(3)
本项目土方运输中产生的涉及渣土消纳处置、土场费、土源费、保洁费及项目管理部门收取的管理费等所有费用均由投标人自行考虑并含在投标报价中,中标人不得以任何理由提出索赔。
二、管网及安装部分
1、
电缆是否为甲供材?
答:甲供材
2、
管道安装作业带宽度设计大样图为18m,设计说明为15m,请问清单编制以何为准
答:15m
3、
土工格室植被护面设置部位及工程量?
答:管线不涉及此部分工程量
4、
撬装监控小屋是否成套甲供?
答:成套甲供
5、
本项目管道补伤工程量是否按设计提供工程量计入;
答:管道补伤不在本次招标范围内(若施工时因施工单位造成的管道补伤由施工单位自行负责)
6、
阴极保护及排流保护是否在本次招标范围内;
答:不在
7、
防护层(环氧玻璃钢)是否在本次招标范围内;
答:不在
8、
仪表工程中防闯入系统是否在本次招标范围内;
答:材料表中七孔蜂窝管、振动检测光纤 9/125μm单模光纤、分布式振动光纤周界入侵报警系统主机不在本次招标范围内;
9、
灭火器是否在本次招标范围内
答:不在
10、
直埋式混凝土套管缺少“检漏措施”工程量,图号(Y-6)为带混凝土套管穿越公路通用图,图纸材料表内“套管检漏措施”工程量是否有误?直埋段共涉及9处钢筋混凝土套管(含枞阳最后5公里),材料表内的工程量仅4处(含枞阳最后5公里),请明确回复。
回复:当套管长度小于12米时,钢管对焊焊口应留在套管外,不另设套管检漏措施。直埋段共设计9处套管,其中8处套管长度仅为10米,不需要加检漏措施。材料表中应改为1处。
11、
甲供材进场运输费是否在本次招标范围内;
答:在;本项目为长输管线施工,施工场地多为田地、山地,甲供材物流车无法将材料运输至施工现场,由施工单位在施工沿线就近省、县道设置若干堆管场,并由施工单位卸管后从堆管场运输至施工现场;甲供材进场运输费计入管道安装工程分部分项清单中,施工单位须勘查现场后综合考虑报价,中标后不予调整。
三、土建部分
个性问题:
阀室:
1、
道路结构图的有15厚级配碎石,但12J003做法35页节点4中没有级配砂石只有天然级配砂石垫层,是否以道路结构图为准?
答:站内道路按12J003做法,站外道路按道路结构图。
2、
透水砖规格是否按200*100*60?混凝土缘石的截面是否按结构图15*35*79?
答:透水砖规格是按照200*100*60。站内道路缘石按12J003做法,站外道路缘石按道路结构图。
3、
胀缝处的传力杆是否为钢直径32?
答:直径25mm
4、
胀缝与缩缝的填料和盖板材料不详,请明确。
答:填料选用橡胶沥青类或改性沥青类填缝料
5、绿化是否用马尼拉草皮?
答:是
6、砖砌围墙地上的材料结构与总图不一致,以何为准?
答:结构只设计地下的是实心砖,地上的按总图。
7、铁艺围栏基础
图中的站外地坪与站内地坪相差多高?
答: 内外高差不一致,最高600.
8、砖砌围墙的砖材料规格?
答:实心砖240*115*53,多孔砖240*240*115
9、铁艺围栏规格没有节点做法,请补充。
答:
10、
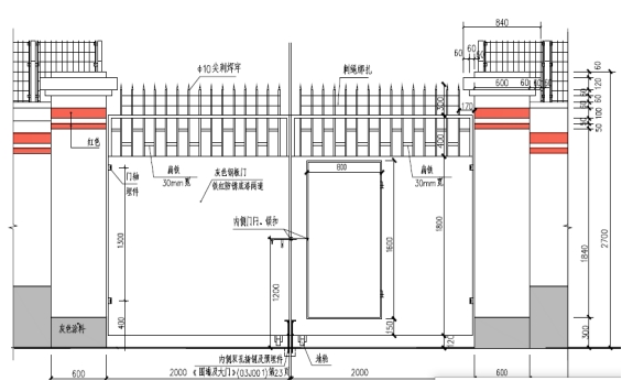
围墙大门没有详图,请明确。
答:大门高2.5m如下图,不需要门上栏杆。
11、
围墙的排水管间距是多少?
答:2.4m
注:此补疑视同招标文件的组成部分,与招标文件具有同等法律效力。
招标人:合肥燃气集团有限公司
地 址:合肥市蜀山区合作化南路466号
联系人:胡启竞
电 话:0551-65191932
招标代理机构:安徽诚信项目管理有限公司
地 址:合肥市滨湖新区南京路2588号(徽州大道与南京路交口)六楼
联系人:张工
电 话:0551-66223831、66223928
三、附件
答疑发布日期:2021年09月01日