您现在的位置: 首页 >> 答疑变更 >> 安徽公共资源交易集团项目管理有限公司 >> 工程
一、原公告主要信息
原项目名称: 长丰县公安局警务技术中心及北城综治中心建设
原项目编号: 2021BFCGZ02363
原公告日期: 2021年10月23日
二、公告内容(更正事项、内容及日期等)
长丰县公安局警务技术中心及北城综治中心建设
招标文件补疑1
招标项目编号:2021BFCGZ02363
各投标人:
本项目在清单文件窗口上传了本项目清单和最高投标限价,请投标人注意下载查看。
现对本项目招标文件作出如下补充
重要提示
1、
人工费执行《关于贯彻执行2018版安徽省建设工程计价依据的通知》(合造价【2018】13号)和《关于合肥市建设工程人工价格信息发布及计价应用工作的通知》(合造价【2021】8号),其中定额人工费参与取费、取税,人工价格信息相对于定额人工单价增加部分 31.79元只计取税金。
2、本工程措施项目费率和不可竞争费率按“ 建筑 工程取费标准”中“ 民用建筑 ”的费率计取;其中房屋建筑挖或填土石方量大于5000m3的大型土石方工程,其企业管理费率8%、利润率8%,措施项目费率和不可竞争费率按房屋建筑工程相应费率乘0.6系数。
按业主要求,现对本项目招标工程量清单、最高投标限价编制作出如下补充:
第一部分:招标需求
本项目为1个标段,该项目位于合肥市长丰县双墩镇,占地面积26.7亩,总建筑面积约2.93万平方米,包含公安局业务技术用房、特巡警、社会治理运行调度中心、地下车库、门卫及相关室外配套设施工程等。本次招标内容包含土石方工程、土建工程、安装工程、室外工程等设计图纸及答疑范围内的全部内容。
(一)建筑工程
1、土建工程:包含土石方工程、主体钢筋砼结构、墙体、防水、保温、室内外台阶和坡道、散水等。
2、装饰工程:含单体住宅的外墙面、地面、内墙面及顶棚装饰工程、门窗工程、栏杆、钢结构雨棚、铝合金成品百叶等。
(二)安装工程
1、给排水工程:地库废水处理间内设备不计,管道算至断管处,厨房内的厨具设施不计,其余按图纸设计范围全部计入。
2、暖通工程:通风、防排烟、空调系统等按图纸设计范围全部计入。
3、电气工程:配电房内的变压器、高低压柜、电缆沟、预埋铁件、10Kv进线、厨房内的烹饪电器不在本次招标范围,其余按图纸设计范围全部计入;从配电房引至各单体动力配电箱的电缆在配电房内的按30米预留并必须保证满足后期接电需求。
4、弱电工程:基础弱电按图计入,从市政引入弱电机房的配管本项目红线外加50米考虑;智能化系统不在本次招标范围。
5、消防工程:从市政引入本项目消控室的管线按本工程红线外加50米考虑,其余按全图纸设计范围计入。
6、人防工程:除战时战时区域电源进线、临战明敷、战时水箱、战时给水泵组、盥洗区给水龙头、战时移动泵、干厕内的干式马桶、盥洗槽不计;其余按图纸设计范围全部计入。
(三)室外总体工程
1、道路工程:包含土方、基层、路面、侧石、附属工程等设计图纸招标范围内的所有内容;
2、雨污水工程:包含沟槽管井土方、管道、检查井、雨水口、化粪池、雨污水附属工程等设计图纸招标范围内的所有内容;
3、景观工程:包含土方、基层、铺装、景观小品、停车位、侧石、围墙、景墙等设计图纸招标范围内的所有内容。
(四)其他工程
1、沉降观测不在本次招标范围内,但观测点预埋费用在本次招标范围内;
2、大门字体不计入本次招标范围;
3、社会治理运行调度中心三层(除卫生间、1#、2#楼梯间、电梯厅、管井、杂物间、配电间外)及四层观摩区的装修(含玻璃隔断)不在本次招标范围,毛坯具体做法参照业主技术用房专业厂家二次设计房间做法为准,室内门及栏杆计入本次招标;
4、电梯轿厢装饰计入本次招标。
(一)以下项目按照业主要求,以暂定工程量计入分部分项工程量清单,投标人综合考虑报价,标后按实际工程量结算。无
(二)以下项目按照业主要求,暂列金额为 100 万元,计入大型土石方工程单位工程,投标人应按招标人所列的金额计入投标总价。
(三)执行暂估价的材料、设备、专业工程及其金额如下:
1、材料的名称、规格型号、金额:无
2、设备的名称、规格型号、金额:无
3、专业工程名称、工程内容、金额:无
4、发包人供应材料、工程设备的采购、保管费,控制价中不再另行计取费用,投标人在总报价中综合考虑此费用。
三、按项列入清单、措施费的内容,标后不予调整: 无。
四、补充图纸及修改图纸的说明:本工程在第一次发放图纸后,有补充图纸,具体详见图纸目录。
五、甲供材:无。
六、总承包服务费(总承包配合费):详见招标文件。
七、温馨提示:投标人投标报价还须仔细阅读本项目招标文件,慎重报价。
八、业主的其他要求及提示:
1、
临时用电:临时用电按设置2台400KVA变压器,考虑管线铺设、项目完成后的拆除、涉及管道沿线铺设的场地复原及青苗补偿、报装等,投标人需在中标后在一个月内通电,相关的设施需进行安全防护,本项目结束后其相关设备、配套杆、电缆等的残值归投标人所有,费用包含在投标报价中,投标人综合考虑,标后不予调整。
2、
临时用水:临时用水接引至项目现场,管径不小于Φ80,满足总包单位及后期附属单位进场后的总用水量,费用含管网建设费、增容费、破路、恢复、水表、管道、报装及内部接引等所有费用,费用还需包括开户、施工、一直到最终通水整个期间的一切费用,必须保证证件齐全、手续合法,施工用水按后期正式用水管径报装,费用包含在投标总价中,投标人综合考虑,标后不予调整。
3、
临时道路:场区外施工临时道路,从市政道路到现场以及现场施工道路、材料堆场、现场办公及生活区必须采用C30等级砼硬化场地,(其中临时道口断面结构做法:基础处理、碎石基层25CM、C30砼面层20CM,内口宽6M,外口宽12M,转角3M),路面宽度为6m,道路边必须设排水沟并铺盖板,路基做法、排水沟做法要满足施工期间重型施工机械及车辆通行要求,投标人负责通道的日常维护至工程完工并无偿提供给其他单位使用,投标人自行勘察现场,对建设期维护保养及项目完成后的恢复等费用给予综合考虑后自行报价,中标后不得以任何理由要求调整费用。
4、
地面硬化拆除、房屋基础拆除、砖渣外运及其他影响后期施工的构筑物处理,费用包含在投标总价中,投标人综合考虑,标后不予调整。
5、
地上地下杆管线拆除、迁移及保护费用:在红线内所有地下、地上的管线、明沟、市政预埋等,后期开挖时要做好保护措施及迁移改造(保证原功能正常使用);费用包含在投标总价中,投标人综合考虑,标后不予调整。
6、
清表费(菜地赔偿、苗木移植),费用包含在投标总价中,投标人综合考虑,标后不予调整。
7、
洞口开洞、封堵:含门洞、室内管、井、砖墙遇通窗缝隙、露明管线等在内的各种封堵:包括但不限于防火封堵、给水、排水、供水、电气、弱电、燃气、消防等配套单位的洞口预埋、开洞、封堵(含一次封堵及二次封堵)、修复、清理等一切工序及费用,满足防火构造及防火封堵要求,费用包含在投标总价中,投标人综合考虑,标后不予调整。
8、
抗震支吊架:各投标单位在投标报价时应充分考虑抗震支架后期专业厂家深化设计并完成制作、安装等一切相关费用,验收要满足符合《建筑机电工程抗震设计规范》GB50981-2014、《建筑机电设备抗震支吊架通用技术条件》(CJ/T 476-2015)、《建筑抗震设计规范》GB50011-2010等规范要求,确保整个抗震支吊架验收通过;费用包含在投标总价中,投标人综合考虑,标后不予调整。
9、
严格根据(合建质安监[2011]64号)文件执行,投标人必须在施工过程中,达到规范及验收要求,费用投标报价中综合考虑,施工过程中不得因连接方式不同、工艺调整等原因,提出影响造价的要求。
1、
本工程图纸标注直径6钢筋,按6.5计入。
1、
墙柱砼强度等级高于梁时浇注应用钢丝网隔离,浇筑时所采取的相关措施,包含在投标报价中,清单中不单独列项,投标人在投标报价中综合考虑,中标后不予调整。
2、
土方平衡总平面图的平整后土方标高与图纸设计室外标高有偏差,此部分偏差由投标人自行踏勘现场,费用包含在投标总价中,投标人综合考虑,标后不予调整。
3、
请投标单位对现场进行详细深入勘查,对于现场实际与设计或投标文件及招标清单不相符的,或者可能导致施工顺序、施工工期、施工成本发生改变的,在投标之前提出,否则,认为该费用已综合考虑在投标报价中,中标后不得以任何理由提出工期和费用索赔。
4、
所有的专家评审及论证费用,包含在投标总价中,投标人综合考虑,标后不予调整。
5、
电梯轿箱防护费用(采用16mm厚细木工板)及电梯井道与有安静要求的用房贴临布置需采取隔声措施,费用包含在投标总价中,投标人综合考虑,标后不予调整。
6、
施工单位中标后需无条件配合业主办理施工许可证直至竣工备案结束的一切相关手续所产生的费用,费用包含在投标总价中,投标人综合考虑,标后不予调整。
7、
投标单位自行踏勘现场,应做好周边建筑物、构筑物(含管网)等的安全防护工作,安全防护费用包含在投标总价中,投标人综合考虑,标后不予调整。
8、
钢结构及幕墙工程,投标人慎重报价,后期施工因需满足设计需求及质量验收要求,可能需进行局部优化设计,因此造成费用增减,投标人综合考虑,标后不予调整。
9、
室外水、电管道的覆土厚度不满足规范要求,需按照相关规范采取保护措施,费用包含在投标总价中,投标人综合考虑,标后不予调整。
10、
控制柜、配电柜、箱后期安装调整位置费用,费用包含在投标总价中,投标人综合考虑,标后不予调整。
11、
请投标单位综合考虑临时设施等需要的场地租赁费用,费用包含在投标总价中,投标人综合考虑,标后不予调整。
12、
基坑支护工程里,基坑顶3米范围内原有砖砌围墙需要拆除改为轻质围挡,施工完成后围墙需按要求恢复或对围墙进行加固处理,费用包含在投标总价中,投标人综合考虑,标后不予调整。
13、
投标报价除考虑临时设施费用外,还应考虑临时设施的拆除、及其拆除后建筑垃圾外运等费用,做到工程完工时“工完、料尽、场地清”。临时设施包括:施工现场的临时房屋及其基础、临时道路、场地硬化、临时围挡及其基础、塔吊等设备砼基础及其它为满足施工需要的临时建筑物和构筑物,费用包含在投标总价中,投标人综合考虑,标后不予调整。
14、
现场施工场地狭小,无办公区、生活区等场地,投标人须勘察现场充分考虑上述因素,费用包含在投标总价中,投标人综合考虑,标后不予调整。
15、
不论施工单位采用何种施工方法及调整施工顺序造成脚手架、垂直运输机械相关费用的增加均不得以任何理由办理签证,所有费用一次性包死,中标后不予调整。
16、
施工临时围墙满足安全文明施工要求,费用包含在投标总价中,投标人综合考虑,标后不予调整。
17、
地下室人防封堵除图纸设计外,其他平时及战时封堵需满足人防验收要求,保证人防验收合格,新增的封堵费用,费用包含在投标总价中,投标人综合考虑,标后不予调整。
18、
电梯预留洞口封堵、二次粉刷费用包含在投标总价中,投标人综合考虑,标后不予调整。
19、
电梯安装验收合格后至工程竣工交付使用期间,总包单位不得以任何理由拒绝附属单位使用电梯,期间电梯发生故障及定期的维护保养产生的相关费用,费用包含在投标总价中,投标人综合考虑,标后不予调整。
20、
所有与设备调试相关产生的人工、材料、机械等费用,费用包含在投标总价中,投标人综合考虑,标后不予调整。
21、
施工进场道路使用时可能未移交交警和城管等进行管理,需投标单位进行道路综合管理养护,包括但不限于道路清扫、洒水、维修、路口交通指挥、道路安全保障、夜间照明等;费用包含在投标总价中,投标人综合考虑,标后不予调整。
22、
基坑应急措施处理费,含坡顶水平位移及竖向沉降、深层水平位移、锚杆内力、管线应急处理措施等,费用包含在投标总价中,投标人综合考虑,标后不予调整。
23、
供水、供电、燃气、三网、有线等管线外接,需破除和修复市政道路接引点的,相关破复费用、手续的办理费用由总包单位负责;费用包含在投标总价中,投标人综合考虑,标后不予调整。
24、
供水、供电、燃气、三网、有线电视等附属单位进场施工,总包单位需无条件配合,包含土方回填及多余土方、垃圾的外运,二次施工、拆除、修补、封堵、开孔、开槽、清理、布管穿线、局部改造、室外交叉施工所导致的破复等为满足后期安装以及主管部门验收要求的全部整改,并及时提供临时材料堆放仓库、提供人货电梯、室内电梯、电源接引点等服务;总包单位不得以任何理由阻挠施工,不得以任何理由拒绝提供供水、供电、燃气、三网、有线电视等电源接引点,不得以任何理由拒绝提供临时材料堆放仓库,不得以任何理由拒绝提供人货电梯及室内电梯使用;配合费及水电费包含在投标总价中,投标人综合考虑,中标后不予调整。
25、
雨污排水管与市政接口连接、疏通费用(含道路破除申报、破除、恢复等费用)包含在投标总价中,投标人综合考虑,中标后不予调整。
26、
项目的开道口、新旧道路接头处理、拆除清理费用、绿化移植恢复等费用均包含在投标总价中,投标人综合考虑,中标后不予调整。
27、
消防配套服务费:根据消防检测要求,符合验收规范及使用功能要求,涉及的材料、设备、系统等一切相关消防检测费用、验收费用及防雷检测费;费用包含在投标总价中,投标人综合考虑,标后不予调整。
28、
消防、防雷、雨污水、充电桩等项目需进行检测并满足验收需求,相关费用包含在投标总价中,投标人综合考虑,标后不予调整。
29、
混凝土剪力墙穿墙螺栓、地下室施工照明费、通风费、外墙后浇带先回填外围留置工作井费、大体积砼浇筑专项措施费,费用包含在投标总价中,投标人综合考虑,标后不予调整。
30、
地库所有穿墙、板的预留洞口、预留钢套管、管道穿墙板的开洞、封堵等费用,费用包含在投标总价中,投标人综合考虑,标后不予调整。
31、
室外综合管线及地下管线交叉较多、各投标人应综合考虑管线避让等技术处理措施引起的工程量变化,综合报价,中标后不得以此为由增加相关费用。
32、
暖通机房、空调机房、风机房、空调风井内壁等房间需做隔声处理,费用包含在投标总价中,投标人综合考虑,标后不予调整。
33、
基础不良地基、基础超挖换填处理费:基础开挖中如遇不良地基、基础超挖,需要施工单位提供专项方案并经专家论证,所产生费用不单独列项,投标人综合考虑,标后不予调整。
34、
智慧工地建设系统及设备:执行《关于落实建筑工地安装智能围挡喷雾降尘系统的通知》计入相关费用;由投标人自行踏看现场,费用包含在投标总价中,投标人综合考虑,标后不予调整。
35、
智慧工地软件/硬件包含但不限于实名制通道、集成扬尘检测系统、项目喷淋控制系统、集成机械检测系统、远程监控系统、项目总控中心硬件设备、调试、培训等详见智慧工地设备清单,必须满足市城乡建设局人脸识别系统、扬尘检测等规范要求,相关费用由投标人综合考虑在投标报价内,清单控制价中不单独列项,投标人根据现场实际情况、实施方案综合考虑报价,中标后不予调整。
36、
临时围墙拆除、清理、残渣外运、拆除后的临时围挡及相关安全措施费用均包含在投标总价中,投标人综合考虑,标后不予调整。
37、
高大模板支撑及论证费用由投标单位自行考虑,包含在投标报价中,清单中不单独列项,投标人在投标报价中综合考虑,中标后不予调整。
38、
幕墙样板以建设单位要求为准,投标单位综合考虑在报价中,此清单不单独列项,综合考虑样板区幕墙位置、类型、面积、高度、制安、拆除等及由此涉及的一切相关费用等,自行报价,中标后不予调整。
39、
本工程精装修所有楼地面的找平层或粘贴层的厚度需要满足建筑完成面的设计标高,不因设计的厚度达不到建筑完成面的标高要求而办理签证,厚度达不到设计标高要求的需要用C20细石混凝土找平,包含在投标报价中,清单中不单独列项,投标人在投标报价中综合考虑,中标后不予调整。
第二部分:设计文件及技术补充说明
1、
本项目土方开挖、运输及运距如何考虑计入?
答:(1)本项目工程量清单土方按现场利用方案计算,实际情况投标单位自行考虑报价;
(2)本项目最高投标限价余土外弃运距按1公里计算,实际运距自行考虑报价,投标人应自行勘察现场并结合项目周边取、弃土点情况以及管理部门相关要求,综合考虑报价,费用包干,中标后不予调整;
(3)本项目土方运输中产生的涉及渣土消纳费、土场费、土源费、保洁费及相关管理部门收取的管理费等所有费用均由投标人自行考虑并含在投标报价中,中标后不得以任何理由提出索赔。
2、
现场是否全部采用预拌砂浆和商品砼。
答:是。
3、
地下室用的都是钢质防火门,地上门用的木质防火门,是否需要统一?
答:统一,均为钢质防火门。
4、
建筑说明中砌体填充墙与钢筋混凝土梁、柱、剪力墙墙肢等两种不同基体交接处,外、内墙面均采用直径不小于1.0mm、网眼尺寸不大于10mmx10mm热镀锌电焊网或加强型耐碱玻璃网格布抹聚合物砂浆并锚固的加强带进行抗裂处理,加强带距接缝部位的宽度每边不应小于250mm,请明确具体选择何种材料?
答:热镀锌电焊网。
5、
建筑底层外门窗防盗设施是否在本次招标范围?
答:不计入。
6、
屋面是否增加最薄30厚LC5.0轻集料混凝土找坡层?
答:增加。
7、
楼面2保温楼地面是否增加0.2厚聚乙烯膜浮铺?
答:增加。
8、
门窗表说明中所有护窗栏杆做法见15J403图集第D19页做法PA6,而楼梯护窗栏杆参考15J403-1 H3/C15,是否需要统一?
答:所有护窗栏杆均参照图集15J403-1 H3/C15。
A、业务技术用房
1、
结构说明4.2 混凝土强度等级与平面图中楼层表砼等级不一致,以何为准?
答:以楼层表为准,地上梁板均为C30。
2、
实验室风井未见结构大样?
答:参见机房顶结构平面布置图中风井大样,顶标高详见建筑。
3、
下图空间是否敞开?
答:东西方向此位置均200厚砖墙封堵,详见下图:
4、
一层值班室的门和窗未见标注?
答:补充MLC2421大样:
5、
卫生间DK1524标注是否有误?
答:有误,为DK1224。
1、
机房层C1215标注是否有误?
答:有误,调整为C1815。
2、
六层、十层及十一层水井FM丙0824标注是否有误?
答:有误,调整为FM丙0821。
3、
建施图中与内装设计中门洞的大小很多不一致,以何为准?
答:所有门洞大小及标注均以建施为准。
4、
装饰图纸中的9F电动门没有具体做法,建筑图纸标注的为普通木门?
答:门代号标注以建施为准,所有木门均为成品木纹钢质门,钢制门的门头板按装饰大样计入。
5、
9F视频侦查中心DM1224为何种门?
答:电动感应玻璃门,设计修改通知单。
6、
请明确排烟机房装修做法?
答:同风机房装修做法。
7、
顶棚2中9厚108胶水掺黑水泥腻子满批2遍与白水泥腻子满批2遍是否重复?
答:9厚108胶水掺黑水泥腻子满批2遍调整为封底漆一道(干燥后再做面涂)。
8、
机房层平面图中的电梯机房爬梯及栏杆未见大样?
答:因高差较小,此处取消爬梯及栏杆。
9、
台阶栏杆未见具体做法?
答:参见国标图集15J403-1 B1/B14。
10、
1F花坛没有建筑做法?
答:花坛大样参照台阶挡墙做法。
11、
外立面警徽是否计入本次招标?
答:计入,不锈钢骨架,优质铸造铝合金,厂家成品订购及安装。
B、综治中心
1、
结施07中,挡土墙墙顶标高详景观施工图,但无景观图纸,参考图集中墙高H=4500mm,是否按图集高度计入?
答:是。
2、
挡土墙的混凝土强度等级是否按C30计入?
答:是。
3、
楼层表标高有误,是否应将8.92m改为8.94m?
答:结构标高比建筑标高低80mm,应为8.92。楼层表中层高4.56应为4.58。柱平面图中的8.94应改为8.92。
4、
结施17中设备基础高度与建施11中设备基础高度不一致,请明确以何为准?如以建施为准,请明确水箱基础尺寸。
答:以结施图纸为准。
5、
请明确设备基础的混凝土强度等级是否按C30计入?
答:是。
6、
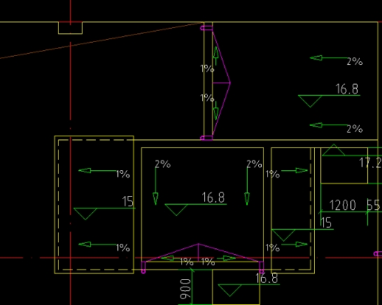
建施12中,下图部位的16.8m屋面是否按屋面三计入?15.0m的屋面是否标示有误,应为洞口?
答:按照屋面三,15.0的屋面为管井上面的顶板,按照屋面3考虑。
7、
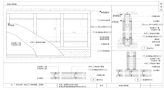
请提供电梯基坑防水及保护层的详细做法?
答:电梯基坑内壁防水做法:1)基层混凝土墙面修补平整;2)刷聚合物水泥砂浆一道;3)10厚聚合物防水砂浆抹平。
电梯基坑外侧防水做法:1)防水钢筋混凝土墙体打磨修补平整;2)刷基层处理剂一道;3)1.5厚JS防水涂料2道;4)粘接剂粘贴30厚挤塑聚苯板(保护层);5)素土分层夯实。
8、
请提供挡土墙外装饰详细做法?
答:按不保温外墙真石漆计入。
9、
挡土墙上部栏杆做法?
答:按室外台阶栏杆做法计入。
1、
装修表中设备管井参照内墙1和顶棚1做法,是否有误?
答:设备井道(无门的)参照内墙1和顶棚1做法,设备井道(有门的)调整为内墙2和顶棚2做法。
C、门卫室
1、
请明确花池基础埋深及做法?
答:为20CM深,采用MU10.0煤矸石实心砖,M10.0混合砂浆砌筑。
2、
电动伸缩门材质以及高度请明确?
答:304不锈钢材质,高度1.5m。
3、
②~③轴交B轴处屋面是否按照屋面二计入?
答:是。
4、
外墙不保温做法请明确?
答:混凝土墙面刷素水泥浆一道,内掺5%的108胶,12厚1:3水泥砂浆掺5%防水剂,8厚1:2水泥砂浆找平。
5、
底层架空或外挑楼板保温做法请明确?
答:参照业务技术用房建筑节能设计专篇说明3.3架空楼板构造做法。
D、地库
1、射击靶场墙面石膏板后包无具体做法?
答:补充如下做法:
2、消防水池钢爬梯无大样?
答:同防爆波电井爬梯做法。
3、门窗表中HFM1220(6)数量为4樘,是否正确?
答:修改为1樘。
4、如下图,此处防火卷帘FHJ5025标注宽度为5100,是否正确?
答:仅此处防火卷帘门调整为FHJL6025。
5、室内外装修做法索引表面砖内墙面都设有踢脚线,是否正确?
答:取消面砖内墙面对应踢脚线做法,无墙砖的地砖地面增加相应踢脚2(块料踢脚)做法:H=120mm; 5厚1:3水泥砂浆打底划出纹道;8厚1:2水泥砂浆粘结层(内掺建筑胶);10厚地砖踢脚,稀水泥浆擦缝。
6、地下室地面的的建筑与结构高差为100厚,有的地面未到100厚,是否有误?
答:有误,调整做法如下:
地面3增加素水泥浆一道(内掺建筑胶) ,60厚C20细石混凝土找平层;
地面4中30厚调整为100厚;
楼面5为楼梯间斜段做法,地面增加地面5(楼梯间地面)做法,为水泥浆一道(内掺建筑胶),100厚C20细石混凝土收光地坪;
地面6中30厚调整为100厚;
地面7中增加70厚C20细石混凝土找平层。
7、地面1中0.5厚普通环氧树脂地坪漆(加入金刚砂)为何种理解?
答:有误,此描述调整为5厚金刚砂耐磨面层(加混凝土密封固化剂),找平层内掺金刚砂骨料,强度达标后表面撒布金属骨料,地面1需结合柱网间距,按不大于6米*6米设分格缝。
8、请明确地面变电所地面的回填材料?
答:泡沫混凝土回填。
9、墙面面层做法防霉无机涂料1道及乳胶漆一道是否有误?
答:有误,调整为封底漆一遍,刷白色防霉无机涂料两遍。
10、请明确集气室、人防储藏室、废水处理间、应急储备库、柴油发电机房、水井、空腔、射击靶场及观摩区装修做法?
答:集气室装修做法同风井,人防构件储藏室装修做法同机动车库,废水处理间装修做法同生活泵房,应急储备库装修做法为地面7、踢脚2、内墙1、顶棚2,柴油发电机房做法同风机房,水井装修做法参照地上主楼做法,空腔部位原结构层即可,射击靶场及观摩区装修做法为内墙5做法,地面及天棚均不处理,MLC7323(专业公司二次设计)不计入。
11、生活泵房、消防泵房、报警阀间室内外装修做法索引表中防霉涂料顶棚描述是否有误?
答:有误,为吸声板顶棚。
12、采光顶为二次设计,未见具体做法?
答:采用Q235B,钢柱采用200*200*8矩形管,钢梁采用250*150*8矩形管,玻璃规格为8+1.52+8mm钢化夹胶玻璃,不锈钢点爪,钢构件表面均应进行抛丸除锈处理,除锈等级不低于Sa2,表面涂刷红丹防锈底漆两度,面漆为氟碳喷涂。
13、请明确风井顶板找平做法?
答: 1.0mm厚聚氨酯防水涂料,20mm厚(最薄处)1:3水泥砂浆保护层兼找坡层抹面压光。
14、坡道护栏详见景观设计,请明确具体做法?
答:300高钢护栏,具体做法详见15J403-1 PA1/D13。
15、室外工程做法表中花岗岩台阶选用图集12J003 9B/17是否有误?
答:有误,调整为11B,取消垫层及结构层。
16、地下室标志及标线是否以长丰县公安局地库交通设施数量表计入?
答:是。
E、基坑支护
1、1-1剖面喷射砼面层为80厚,而挂网喷浆面层详图中喷射砼面层为60厚,以何为准?
答:80厚。
2、未见排水沟和集水坑大样?
答:补充大样:
F、特巡警
1、晾衣房钢结构槽钢【10a长度200mm,GZ1尺寸为150×150×8方钢管,GL1尺寸为150×150×8方钢管,GL2全部改为GL1,50×4方钢管沿高度方向设置四道。
A、业务用房内装
1、
地面门槛石未标材质。
答:20mm厚中国黑大理石。
2、
一层此处地面未标材质(其他楼层相同)。如图:
答:同过道地面材质,900*900*20mm厚奥特曼灰石材。
3、
七层淋浴室、更衣室、洗衣房未明确装修做法。
答:地面600*600*10mm厚防滑地砖,墙面600*600*10mm厚墙砖,顶面9.5厚双层轻钢龙骨防水石膏板刷白色无机涂料。
4、
八层交换机房地面未明确装修做法。
答:地面800*800*10mm厚仿大理石地砖,墙面乳胶漆,顶面乳胶漆,不锈钢踢脚线。
5、
十四层会议室楼梯无材质。
答:800*800*10mm仿大理石防滑地砖设防滑槽。
6、
二层会议室不锈钢凹槽请提供节点。
答:详见补图DT-补01会议室吊顶节点。
1、
九层软膜天花吊顶请提供节点。
答:15mm阻燃板基层,9.5mm石膏板基层,软膜天花饰面。
1、
请提供业务用房一层法医候诊区此处隔断做法,如图:
答:已补立面,节点同DT-17玻璃隔断节点图。
1、
二层走廊立面图与平面图不匹配(立面图无玻璃隔断,平面图中显示有玻璃隔断),请明确。如图:
立面图
平面图
答:以最终版建筑为准。
1、
二层侦查用房C立面与平面图不符,请明确。如图:
立面图
平面图
答:以最终版建筑为准。
2、
七层以上原始平面图窗户型号与平面布置图窗户型号不一致,是否有误?如图:
a)
原始平面图
b)
平面布置图
答:以最终版建筑为准。
3、
八层C-D/11-12轴处的视频会议室平面布置与顶面地面布置图范围不一致,请明确。
c)
平面图地面铺装图
答:此空间应业主要求调整,以修改单为准。
4、
八层A-B/11轴处的国保用房平面布置与顶面地面布置图范围不一致,
请明确。
答:此空间应业主要求调整,以修改单为准。
5、
九层视频侦查中心、数据分析中心+新型犯罪研究中心、互联网监控中心墙面均显示有显示屏,请问显示屏背后墙面是否需要8mm静电钢板?
答:显示屏为外挂,显示屏背后需做8mm静电钢板。
6、
九层视频侦查中心和侦查指挥分中心玻璃隔断采用什么材质,请明确。
答:防火玻璃隔断。
7、
九层物证保管间做法表墙面是白色涂料,立面图LM-17做法是8mm抗静电钢板,以那个为准?如果以立面图为准,请提供背景墙节点做法。
答:按照立面图为准。
1、
十~十一层备勤房间对走廊处门有的是M1021,有的是M1024,请问是否有误?
答:以最终版建筑图纸门窗表为准。
1、
金属板墙面有两个节点,两个节点做法不一样,请问以哪个为准?
答:以专用节点为准,特巡警大楼报告厅墙面在专用节点基础上,加50%吸音岩棉。
2、
地下室的电梯门套的做法是否参照地上主楼电梯门套做法(特巡警与调度中心同问)。
答:参照。
3、
请明确卫生间成品抗倍特板的厚度(特巡警与调度中心同问)。
答:18mm厚。
4、
请明确定制蜂窝铝板的厚度。
答:定制蜂窝铝板厚度30mm,铝板面层厚度不低于1.0mm。
B、巡特警用房内装
1、
二层综合训练场地地面未标材质。
答:详见001-建筑修改单(特巡警综合训练馆楼面做法)。
2、
二楼男更衣室和淋浴与女更衣室和淋浴区域地面材质不统一,男区为300*600地砖,女区为600*600地砖,是否需要统一?
答:统一,600*600*10防滑地砖。
3、
二楼报告厅此处地面材质未标注,如图:
答:600*600*3.2mm厚仿地毯石塑地板。
4、
学习交流室立面图中“定制成品书柜”,请问成品书柜是否需要计入?
答:计入。
5、
一层另外2个包厢墙面是否参照12人包厢墙面做法?
答:是,相同空间做法相同。
6、
请核查原始图纸与装饰平面图窗户的型号标注,,如原始图纸为C3433,装饰图纸标注为C2414,请明确是标示错误还是窗户改造。
答:以最终版建筑平面为准。
7、
一层后堂此部分原始图纸为墙体,现装饰图纸此处为玻璃隔断,请问玻璃隔断是否在本次计算范围内?如需计算,请提供做法。如图:
原始图
装饰图
答:以最终版建筑图纸为准,此处为玻璃隔断做法。
8、
二层公共卫生间、男女更衣室及男女淋浴间墙面采用什么材料?
答:详见装饰材料表,二层更衣室含盥洗区,墙砖贴面,一层更衣室为无水房间,使用白色无机涂料墙面。
9、
请提供二层报告厅墙面节点图。如图:
答:详见补图节点DT-补02 二层报告厅剖面图。
1、
二层电梯厅兼过厅墙面为石材,请明确此处走廊的墙面材质。如图:
答:白色无机涂料+不锈钢踢脚线。
2、
是否所有的窗户处都设置窗台板?
答:除石材墙砖、金属吸声板墙面外,其他无机涂料及壁纸墙面均设置窗台板。
C、调度中心内装
1、
调度中心一楼无机房电梯处的门厅无立面说明,请明确。
答:1800*900*20mm厚安哥拉浅灰石材干挂+50宽1.0厚黑钛金不锈钢踢脚线,做法参考其他电梯厅空间做法。
2、
二层16层包厢请提供50mm宽仿木纹铝方管墙面的节点图。
3、
二层包厢立面图有16人包厢和10人包厢,请问12人包厢参照那个做法?
答:参照16人包厢做法。
4、
洗碗间墙面是否采用600*600面砖粘贴?
答:后厨区域采用300*600*10mm厚通体墙砖湿贴。
5、
三层过厅墙面为石材,请明确石材是粘贴还是干挂?请明确石材的挂贴范围。
答:石材干挂,红框范围为石材干挂墙面,其余过道为白色无机涂料+不锈钢踢脚线。
6、
是否所有的窗户处都设置窗台板?
答:除石材墙砖、金属吸声板墙面外,其他无机涂料及壁纸墙面均设置窗台板。
7、
门口处是否设置门槛石,图纸未标注。
答:20mm厚中国黑大理石。
8、
大屏背后的基层是否需要计入?
答:计入。
D、幕墙
1、
长丰县公安局业务技术用房请提供机房层以上的屋面层平面图。
答:补充屋面层平面图。
2、
请提供业务技术用房14-6轴立面此处节点。如图:
答:补充幕施32/3。
3、
请提供一处横向幕墙节点图。如图:
答:此处节点见幕施28
4、
调度中心幕墙缺少12墙身大样图。
答:标注错误,已改。
5、
调度中心幕墙JD20-1与立面不符,请明确。如图:
节点图
大样图
答:标注错误,已改。
6、
巡特警幕墙大样此处标注是否有误?如图:
答:标注错误,已改。
7、
巡特警幕墙大样12-06 ,请提供H=4.5米处的节点详图。如图:
答:此处立柱做法同幕施14。
8、
巡特警幕墙,请注明E-J轴此处铝百叶的规格。如图:
答:此处为100x100x3铝方通,间距为中到中700mm。
9、
特巡警连廊处幕墙无做法,请明确。
答:详见补图,横向钢梁(GL-2)铝单板包饰。
E、电梯轿厢:
1、
电梯轿厢的原电梯门是否要包饰?
答:要包饰,具体做法:原电梯门钢制哑光拉丝黑钛金粘贴。
2、
请明确电梯轿厢黑镜与钢制哑光拉丝黑钛金的基层做法。
答:15mm阻燃板基层。
3、
请明确电梯轿厢整块石材的做法及石材的品种。
答:20mm鱼肚白大理石,石材专用胶粘贴。
4、
请明确电梯轿厢吊顶的做法。
答:8#吊杆,60系列吊顶龙骨,15mm阻燃板基层,亚克力面层。
共性问题
1、
基础弱电的配管没有规格型号,请明确?
答:1*JDG20。
2、
特巡警、综合调度中心火灾报警系统竖向未设计桥架,请明确规格?
答:100*50防火金属桥架。
3、
感应洗脸盆、小便器的感应电源从何如引来,请明确?
答:就近引自灯具,管线规格同照明。
4、
基础弱电交换机规格请明确?
答:核心交换机采用48口千兆级,普通交换机采用24口千兆。
个性问题
A、业务技术用房
1、
一层门厅,线条轨道灯,是否为一盏,参数是否为150W,色温5700k,请明确?
答:是。
2、
七层视频会议室,线条轨道灯,是否为一盏,参数是否为150W,色温5700k,请明确?
答:是。
3、
八层会议室,如截图所示,是什么灯具,请明确名称及参数?
答:300*1200 LED面板灯,LED/28W。
4、
电气二层电力平面图中,如下图所示,插座图例中未设计,请明确该插座的名称型号、参数及安装方式。
答:安全型二三孔地面插座,250V/10A,地面暗装。
5、
电气十~十一层电力平面图中,如下图所示,代号为“B”的插座图例中未设计,请明确该插座的名称型号、参数及安装方式。
答:安全型二三孔插座(桌面),250V/10A,底距地1.1m暗装。
6、
照明平面图和内装平面材料图中二、七、九层部分灯具设计有不一样的地方,以哪个为准,请明确。
答:以装饰图纸为准。
7、
请提供开水器参数?
答:70L/H,6KW/380V。
8、
九层电子数据勘验中心、侦查指挥分中心大屏的预留电缆未设计,请明确?
答:每个显示屏预留开关箱,电源从本层电源箱9AL1引来,开关vigi DPN-C40A-4P/30mA,电缆WDZ-YJY-5*10。
B、特巡警
1、
楼梯间位置,如截图所示,是什么灯,请明确名称及参数?
答:人体感应LED吸顶灯,24W。
2、
一层学习交流室,如截图所示,是什么灯,请明确名称及参数?
答:LED吸顶灯,24W。
3、
一层视频教学室,如截图所示,是什么灯,请明确名称及参数?
答:100x1200格栅线条灯,LED/24W。
4、
电气二层电力平面图中,如下图所示,代号为 “C”的插座图例中未设计,请明确该插座的名称型号、参数及安装方式。
答:该插座为双层床上铺插座,安全型二三孔暗装插座,250V/10A,底距地1.8m暗装。
5、
电气一层应急疏散照明平面图中,如下图所示,灯具的名称规格型号、参数及安装方式未知,请明确。
答:吸顶消防应急照明灯具,A型,DC36V,LED,6W。
6、
电气三层照明平面图中,如下图所示,灯具的名称规格型号、参数及安装方式未知,请明确。
答:金卤灯,150W,顶板下1m吊杆安装。
7、
电气一层电力平面图中,如下图所示,残卫呼叫按钮及报警器的的名称规格型号、参数及安装方式未知,请明确。
答:
C、调度中心
1、
三层过厅照明,线条轨道灯,是否为一盏,参数是否为150W,色温5700k,请明确?
答:是。
2、
调度中心三层电力插座平面图中,如下图所示,插座的名称规格参数及安装方式材料表中未设计,请明确。
答:安全型二三孔地面插座,250V/10A,地面暗装。
D、地下室
1、
配电箱系统图中1AP/1APE、2AP/2APE消防总箱的各回路出线的敷设方式都为WC.FC,是否有误,请明确。
答:敷设方式为沿桥架敷设,进入房间后沿顶面及墙面明敷至分配电箱。
2、
电施平时动力平面图中,排污泵ACw2电源进线配管系统图未标注规格型号,如下图箭头所示,请明确。
答:电源及配管为:WDZN-YJY-4x4+PE4-CT.SC32 CE.WE。
3、
电施消火栓泵及喷淋泵系统图中,消防泵房的照明配电箱XAL、风机配电箱ACpf出线回路未设计,请明确配管、配线规格型号及敷设方式。
答:详见下图
4、
火灾报警及联动系统图中,手动联动干线标注为10根,平面图中只有6台控制设备,工程量如何计取,请明确?
答:以平面图为准。
5、
火灾报警及联动系统图中,手动联动干线标注为WDZN-BYJ-4x1.5与消防线型名称、规格一览表(支线)标注为WDZN-BYJ-3x1.5不一致,工程量如何计取,请明确?
答:取WDZN-BYJ-4x1.5。
6、
室内空气质量监控系统,如下图所示箭头所指,线缆配管规格型号未设计,请明确。
答:配管采用JDG20。
7、
火灾报警及联动平面图中的黄色虚线,消防线型名称、规格一览表未说明配管配线规格型号,请明确。
答:黄色虚线为消防电源线WDZN-BYJ-2x2.5 JDG20 +消防专用电话线:WDZN-RYJY-2x1.5 JDG20 。
8、
电气防火门监控系统图中,双扇常开防火门平面图未设计,工程量如何考虑,请明确?
答:以建筑平面图为准,按实计入。
1、
充电桩配电箱系统图出线回路设计为沿桥架敷设,充电桩设备至桥架段是否也采用桥架敷设,如采用请明确规格型号。
答:充电桩设备至桥架段采用100*100mm桥架。
E、门卫室
1、
电施图中,如下图所示,PL配电系统图出线回路平面图中未设计,工程量如何计入,请明确。
答:出线回路各预留15m线缆。
F、室外
1、
火灾报警系统,从市政引入业务技术房消控室的配管、配线规格未设计,请明确?
答:配线为NH-KVV22-2x2.5-FC,配管为2xφ50无缝钢管。
2、
弱电系统,从市政引入地下室弱电间的配管的规格请明确?
答:4xφ89无缝钢管。
1、
本项目苗木工程量是否按苗木表计入?
答:因本项目现场情况,图纸难以表述明确,导致详图工程量与量表不一致,按照业主要求,以苗木表工程量表品种及数量为准,投标人应综合考虑,标后不予调整。
2、
请明确绿化工程养护等级及养护期?
答:等级一级,绿化工程养护期为2年(24个月),其中成活养护期1个月、保存期养护0.25年(3个月)、日常管理期养护1.67年(20个月)。
3、
如下红色划线图示,请明示?
答:删去金边六月雪。
4、
是否考虑换填种植土和泥炭土?如考虑,请分别提供种植土、泥炭土工程量?
答:考虑换填种植土和泥炭土,种植土与泥炭土比例为7:3,大小乔木、花灌木树穴长宽深为1.6米*1.6米*1.6米,地被草坪种植土深度为30厘米,种植土与泥炭土工程量为1.6*1.6*1.6*172+0.3*3554=1770.71m3。
5、
请提供等高线微地形m3工程量?
答:等高线微地形工程量为721.82m3。
6、
草地(沙培百慕大加黑麦草混播草皮卷)下是否铺设中粗砂垫层?请明确?
答:草坪下铺设30mm厚中粗砂垫层。
1、
请明确粘层的用量参数?
答:乳化沥青PC-3,用量0.3-0.5L/m2。
1、
管道基础采用何种形式?
答:150mm厚中粗砂垫层,中粗砂包管至管顶以上300mm。
2、
管道基础以上部分回填采用何种材料?
答:采用素土。
3、
设计说明雨水口与检查井的连接管管径均为DN250,由于市场无DN250钢筋砼Ⅱ级承插管,建议采用DN300?
答:采用DN300钢筋砼Ⅱ级承插管。
4、
设计说明5.1本图凡未标注的雨水口连接管均为d200钢带增强聚乙烯螺旋波纹管,与上部设计说明不一致,如何考虑?
答:采用DN300钢筋砼Ⅱ级承插管。
5、
设计说明5.5排水管道在绿化带下满足不了覆土500mm,在车行道下满足不了700mm的地方采用混凝土包裹保护,采用C25素混凝土包裹后辗压施工,请提供满包砼工程量?
答:d300,长度76m,做法详见图纸。
6、
设计说明雨水口、检查井加固采用皖98J001图集,可否修改为2015S2019?
答:检查井加固做法参见图集皖2015S2019第83页,雨水口加固参见2015S2019第93、94页。
7、
设计说明检查井规格与05SS522规格不一致,请明示?
答:φ1000的用图集φ1100的;φ1250的用图集φ1300的。
8、
如下图示,雨水口规格样式是否一致?
答:均为带截污功能雨水口。
9、
如下图示,检查井采用何种规格?
答:排水沟出水口,按图集07J306-P2中混凝土篦子计入。
1、
如下图示,请提供排水监测装置相关参数?
答:污水,介质20度,直接固定在检查井内,远传,DN50,检测仪浮标式。
1、
如下图示,请提供破坏人行道工程量?
答:按管道周围2m范围28m2。
1、
如下图示,请明确沉泥井做法?
答:排水沟出水口,按图集07J306-P2中混凝土篦子计入。
1、
围墙结构是否以结构图纸计入?
答:是。
2、
挡土墙下碎石垫层厚度请明确?
答:500mm。
3、
景墙平均高度是否按照1.5m计入?
答:是。
4、
景墙材质是否为C30钢筋混凝土,含配筋?
答:是。
5、
如下图示,请提供做法详图?
答:同道路结构。
6、
请明确停车位标线材料品种等相关参数?
答:热熔性道路专用漆,宽度150mm,厚度1.8mm(不含粘结剂层,其中减速震荡线涂刷厚度为2.0mm),按4.0kg/m2计;标线表面撒玻璃微珠,应该分布均匀,含量为0.3~0.34kg/m2。
7、
道路结构图:缩缝满铺自粘式防裂贴,请明示宽度?
答:宽度50cm。
8、
塑胶场地通用做法详图8厚水性EAU无硫净味耐磨防滑层与篮球场及围网做法详图9厚EPDM塑胶面层不符,请明示?
答:请以塑胶场地8厚水性EAU无硫净味耐磨防滑层做法图为统一,删除EPDM塑胶面层内容。
9、
成品篮球架是否在招标范围内?
答:计入,为成人标准室外移动式篮球架。
1、
设计补充的机动车植草砖车位详图,请明确具体平面位置?
答:场地外增加490m2植草砖停车位,具体位置符合业主要求。
注:此补疑视同招标文件的组成部分,与招标文件具有同等法律效力。
招标人:长丰县重点工程建设管理中心
地 址:水湖镇南一环行政服务中心大楼15楼
联系人:李跃武
电 话:13349186169
招标代理机构:安徽诚信项目管理有限公司
地 址:合肥市滨湖新区南京路2588号(徽州大道与南京路交口)六楼
联系人:张工
电 话:0551-66223831、66223928
2021年10月27日
三、附件
答疑发布日期:2021年10月27日